5-Bedroom, 3085 Sq Ft French Plan with Main Floor Master

Front view of French home (ThePlanCollection: House Plan #170-1893)

Images/Plans copyrighted by designer. Photos may reflect homeowner modifications.

About House Plan #170-1893

Sq Ft
3085
Sq Ft
Bedrooms
5
Bedrooms
Bathroom
4
Baths
Half Baths
0
Half Baths
Bedrooms
2
Cars
Bedrooms
2
Stories
Bedrooms
54' 0'
Width
Bedrooms
55
Depth
Starting at$1520.00What's included
STEP 1Bedrooms
STEP 2Bedrooms
STEP 3Bedrooms

Subtotal:$0
Plan Collection

How much will it cost to build?

Estimate your costs based on your location and materials.

Free Cost Instant Estimator

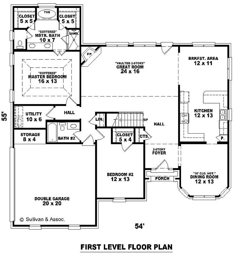
Floor Plans

FIRST LEVEL
FIRST LEVEL
SECOND LEVEL
SECOND LEVEL
Plan Collection

Can I modify this plan?

Yes! This plan can be customized—contact us for a free quote.

Additional Notes from Designer

PLEASE NOTE: The designer's office will be closed from 10/21/2022 to 11/1/2022. All orders and modification requests for this designer will be fulfilled when the designer resumes office on 11/2/2022. Some plans may take 2-3 weeks to receive! Additionally, not ALL plans from this designer are available in CAD or PDF, some additional charges may apply. Contact us with any questions or concerns BEFORE ordering! Thank you!

House Plan Description

This alluring French style house design has 3,085 square feet of living space. The two-story floor plan includes 5 bedrooms and 4 bathrooms.

Home Details

Summary
Plan #:170-1893
Starting at:$1520.00
Floors:2
Bedrooms:5
Full Baths:4
Half Baths:0
Garage:
Square Footage
Heated Area:3085 Sq. Ft.
First Floor:1882 Sq. Ft.
Second Floor:1203 Sq. Ft.
Unheated Area:
Dimensions
Ridge Height:30' 0''
Architectural Styles
Exterior Wall Material
Brick
Roof Pitch
10/12Other
Ceiling Height
8 Foot Ceiling
Garage Type
Attached Garage
Fireplaces
One Fireplace
Exterior Wall Framing
2x4

What’s Included

Most plan sets include the following:

icon text-secondary-400 includedFoundation

icon text-secondary-400 includedFloor Plans

icon text-secondary-400 includedFraming

icon text-secondary-400 includedRoof

icon text-secondary-400 includedCabinet

icon text-secondary-400 includedStair Detail

icon text-secondary-400 includedElevation

icon text-secondary-400 includedElectrical layout

What’s Not Included

These items are  NOT included:

icon text-secondary-400 includedArchitectural or Engineering Stamp - handled locally if required.

icon text-secondary-400 includedSite Plan - handled locally when required.

icon text-secondary-400 includedMechanical Drawings (location of heating and air equipment and duct work) - your subcontractors handle this.

icon text-secondary-400 includedPlumbing Drawings (drawings showing the actual plumbing pipe sizes and locations) - your subcontractors handle this.

icon text-secondary-400 includedEnergy calculations - handled locally when required.

Related House Plans

Plan Collection
Plan Collection
Plan Collection
Plan#126-1168
Starting at$2230
3126
Sq Ft
2
Story
5
Bed
4.5
Bath
2
Car
Plan Collection
Plan Collection
Plan Collection
Plan#198-1068
Starting at$1445
3314
Sq Ft
2
Story
5
Bed
4
Bath
2
Car
Plan Collection
Plan Collection
Plan Collection
Plan#106-1173
Starting at$1695
3698
Sq Ft
2
Story
5
Bed
4
Bath
3
Car
View All

Other Plans By This Designer

Plan Collection
Plan Collection
Plan Collection
Plan#170-1006
Starting at$1920
5625
Sq Ft
2
Story
7
Bed
4
Bath
3
Car
Plan Collection
Plan Collection
Plan Collection
Plan#170-1701
Starting at$770
1057
Sq Ft
1
Story
2
Bed
2
Bath
0
Car
Plan Collection
Plan Collection
Plan Collection
Plan#170-2772
Starting at$1105
2386
Sq Ft
2
Story
3
Bed
2
Bath
0
Car