4-Bedroom, 2527 Sq Ft European Plan with Peninsula/Eating Bar

Main image for house plan # 11156

Images/Plans copyrighted by designer. Photos may reflect homeowner modifications.

About House Plan #135-1174

Sq Ft
2527
Sq Ft
Bedrooms
4
Bedrooms
Bathroom
4
Baths
Half Baths
0
Half Baths
Bedrooms
3
Cars
Bedrooms
2
Stories
Bedrooms
89' 0'
Width
Bedrooms
45
Depth
Starting at$1725.00What's included
STEP 1Bedrooms
STEP 2Bedrooms
STEP 3Bedrooms

Subtotal:$0
Plan Collection

How much will it cost to build?

Estimate your costs based on your location and materials.

Free Cost Instant Estimator

Floor Plans

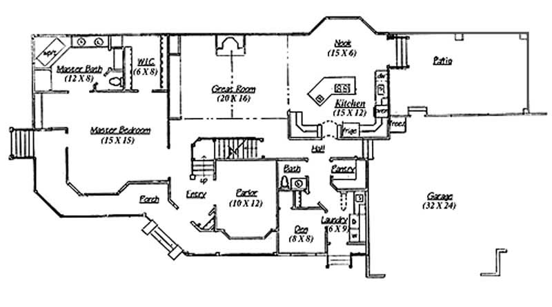
Floor Plan First Story
Floor Plan First Story
Floor Plan Second Story
Floor Plan Second Story
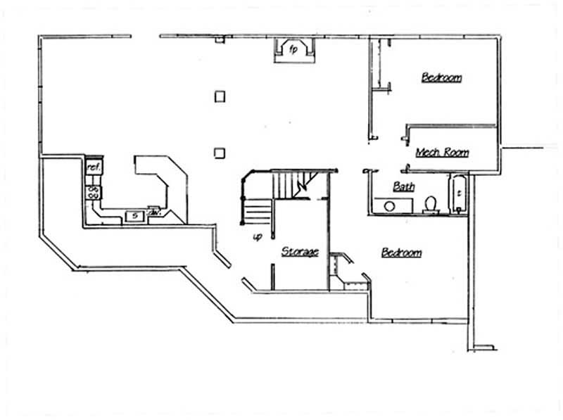
Floor Plan Basement
Floor Plan Basement
Plan Collection

Can I modify this plan?

Yes! This plan can be customized—contact us for a free quote.

House Plan Description

1st Floor Plateline: 9'0 2nd Floor Plateline: 9'0 Exterior Wall Structure: 2x6 studs Roof Framing: Truss Primary Roof Pitch: 8:12 Roof Peak: from Front Door Floor Level 29 feet

Home Details

Summary
Plan #:135-1174
Starting at:$1725.00
Floors:2
Bedrooms:4
Full Baths:4
Half Baths:0
Garage:
Square Footage
Heated Area:2527 Sq. Ft.
First Floor:1780 Sq. Ft.
Second Floor:747 Sq. Ft.
Unheated Area:
Dimensions
Architectural Styles
Exterior Wall Material
BrickStucco
Special Feature
Color Photos
Garage Type
Attached Garage

What’s Included

Most plan sets include the following:

icon text-secondary-400 includedCover

icon text-secondary-400 includedGeneral notes

icon text-secondary-400 includedFoundation/Footing plan

icon text-secondary-400 includedBasement plan

icon text-secondary-400 includedFloor framing plan

icon text-secondary-400 includedMain level plan

icon text-secondary-400 includedUpper-level floor framing (if applicable)

icon text-secondary-400 includedUpper floor plan (if applicable)

icon text-secondary-400 includedRoof framing plan

icon text-secondary-400 includedBuilding sections/details

icon text-secondary-400 includedElectrical layout

What’s Not Included

These items are  NOT included:

icon text-secondary-400 includedArchitectural or Engineering Stamp - handled locally if required.

icon text-secondary-400 includedSite Plan - handled locally when required.

icon text-secondary-400 includedMechanical Drawings (location of heating and air equipment and ductwork) - your subcontractors handle this.

icon text-secondary-400 includedPlumbing Drawings (drawings showing the actual plumbing pipe sizes and locations) - your subcontractors handle this.

icon text-secondary-400 includedEnergy calculations - handled locally when required.

Related House Plans

Plan Collection
Plan Collection
Plan Collection
Plan#108-1708
Starting at$1050
2686
Sq Ft
2
Story
4
Bed
4
Bath
2
Car
Plan Collection
Plan Collection
Plan Collection
Plan#141-1092
Starting at$1795
3000
Sq Ft
2
Story
4
Bed
4
Bath
3
Car
Plan Collection
Plan Collection
Plan Collection
Plan#109-1020
Starting at$1395
2493
Sq Ft
2
Story
4
Bed
4
Bath
3
Car
View All

Other Plans By This Designer

Plan Collection
Plan Collection
Plan Collection
Plan#135-1015
Starting at$0
5022
Sq Ft
2
Story
5
Bed
5
Bath
4
Car
Plan Collection
Plan Collection
Plan Collection
Plan#135-1081
Starting at$1725
2759
Sq Ft
1
Story
5
Bed
3.5
Bath
3
Car
Plan Collection
Plan Collection
Plan Collection
Plan#135-1018
Starting at$0
3102
Sq Ft
1
Story
5
Bed
3.5
Bath
3
Car