Impressive Duplex with 4 Bedrooms & 2727 Living Sq Ft Per Unit

Front elevation of Duplex/Multi-Unit home (ThePlanCollection: House Plan #153-1884)

Images/Plans copyrighted by designer. Photos may reflect homeowner modifications.

About House Plan #153-1884

Sq Ft
5454
Sq Ft
Bedrooms
8
Bedrooms
Bathroom
4
Baths
Half Baths
2
Half Baths
Bedrooms
4
Cars
Bedrooms
2
Stories
Bedrooms
125' 4'
Width
Bedrooms
81
Depth
Starting at$1550.00What's included
STEP 1Bedrooms
STEP 2Bedrooms
STEP 3Bedrooms

Subtotal:$0
Plan Collection

How much will it cost to build?

Estimate your costs based on your location and materials.

Free Cost Instant Estimator

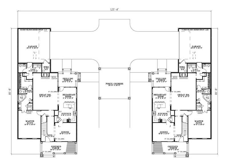
Floor Plans

FIRST FLOOR PLAN
FIRST FLOOR PLAN
SECOND FLOOR PLAN
SECOND FLOOR PLAN
Plan Collection

Can I modify this plan?

Yes! This plan can be customized—contact us for a free quote.

Additional Notes from Designer

Plans by this designer do NOT usually come with FRAMING - some plans may have framing available for an extra fee - please contact us to find out about a specific plan & we will check with the designer!! Additionally: For this designer, if you choose optional features such as but not limited to: 2x6 framing, reverse or optional basement, the designer will need an additional 2-5 business days to adjust the plan accordingly. Please keep this in mind when choosing your shipping option. If you would like Express or Priority shipping, the designer will ship the plan to you using the method you choose but you will still have the 2-5 business day waiting period BEFORE they ship! Please feel free to contact us with any questions! PLEASE NOTE: Multi-licenses are available. The plans do not come with ICF specifications. If ICF construction method is desired, the CAD plan can be purchased and then forwarded to the ICF dealer and they’ll do a takeoff to assist with that specific projec

Living Per Unit Figures: 2727 total living sq ft; 1675 main level living sq ft; 1052 upper level living sq ft

Total Living Square Feet Per Unit: 2727 living sq ft

Unfinished Per Unit Figures: 285 bonus room sq ft; 465 garage sq ft; 588 porch sq ft

Total Under the Roof Per Unit: 4065 square feet

House Plan Description

The outside of these attractive traditional duplex home plans only hints at the comforts inside. The large kitchen features an island bar and a breakfast room perfect for casual family meals. For more formal occasions the dining room is conveniently accessed through a swinging doors. In a short hallway leading to the garage you'll find a generously sized laundry room and half bath. The warm glow of the fireplace will draw everyone to the great room. Step past the fireplace on to the grilling porch. When bedtime beckons retreat to your luxurious master suite with the...

Home Details

Summary
Plan #:153-1884
Starting at:$1550.00
Floors:2
Bedrooms:8
Full Baths:4
Half Baths:2
Garage:
Square Footage
Heated Area:5454 Sq. Ft.
First Floor:3350 Sq. Ft.
Second Floor:2104 Sq. Ft.
Unheated Area:
Bonus Room:570 Sq. Ft.
Garage:930 Sq. Ft.
Dimensions
Width:125' 4''
Depth:81' 8''
Ridge Height:33' 0''
Architectural Styles
Exterior Wall Material
Vinyl SidingBrick
Roofing Type
Hip
Roofing Material
Wood Shakes
Roof Pitch
10/12
Ceiling Height
9 Foot Ceiling
Special Feature
Mother in law apartmentDining RoomBonus RoomMain Level LaundryStorage
Garage Type
Attached GarageCourtyard EntrySide Entry
Exterior Wall Framing
2x4
Kitchen Features
Nook/Breakfast AreaWalk-in PantryPeninsula/Eating Bar
Porches and Exterior Features
CourtyardCovered Front PorchCovered Rear PorchPorte-Cochere
Master Suite Features
Main Floor MasterMaster BathroomWalk In Closet

What’s Included

Most plan sets include the following:

icon text-secondary-400 included floorplan

icon text-secondary-400 included 4 side exterior elevations,

icon text-secondary-400 included electrical plan,

icon text-secondary-400 included birds-eye view of the roof,

icon text-secondary-400 included foundation plan,

icon text-secondary-400 included and some miscellaneous details. Please Note We do not offer plumbing, HVAC, or window scheduling. This will have to be done on a local level, probably by your building team!

What’s Not Included

These items are  NOT included:

icon text-secondary-400 includedArchitectural or Engineering Stamp - handled locally if required.

icon text-secondary-400 includedSite Plan - handled locally when required.

icon text-secondary-400 includedMechanical Drawings (location of heating and air equipment and ductwork) - your subcontractors handle this.

icon text-secondary-400 includedPlumbing Drawings (drawings showing the actual plumbing pipe sizes and locations) - your subcontractors handle this.

icon text-secondary-400 includedEnergy calculations - handled locally when required.

Other Plans By This Designer

Plan Collection
Plan Collection
Plan Collection
Plan#153-1432
Starting at$1200
2096
Sq Ft
1
Story
3
Bed
2.5
Bath
3
Car
Plan Collection
Plan Collection
Plan Collection
Plan#153-1744
Starting at$800
1800
Sq Ft
1
Story
3
Bed
2
Bath
2
Car
Plan Collection
Plan Collection
Plan Collection
Plan#153-1608
Starting at$700
1382
Sq Ft
1
Story
3
Bed
2
Bath
2
Car