5-Bedroom, 4348 Sq Ft Luxury Plan with Wrap Around Porch

Luxury home (ThePlanCollection: Plan #157-1645)

Images/Plans copyrighted by designer. Photos may reflect homeowner modifications.

About House Plan #157-1645

Sq Ft
4348
Sq Ft
Bedrooms
5
Bedrooms
Bathroom
2
Baths
Half Baths
2
Half Baths
Bedrooms
2
Cars
Bedrooms
2
Stories
Bedrooms
58' 0'
Width
Bedrooms
51
Depth
Starting at$1550.00What's included
STEP 1Bedrooms
STEP 2Bedrooms
STEP 3Bedrooms

Subtotal:$0
Plan Collection

How much will it cost to build?

Estimate your costs based on your location and materials.

Free Cost Instant Estimator

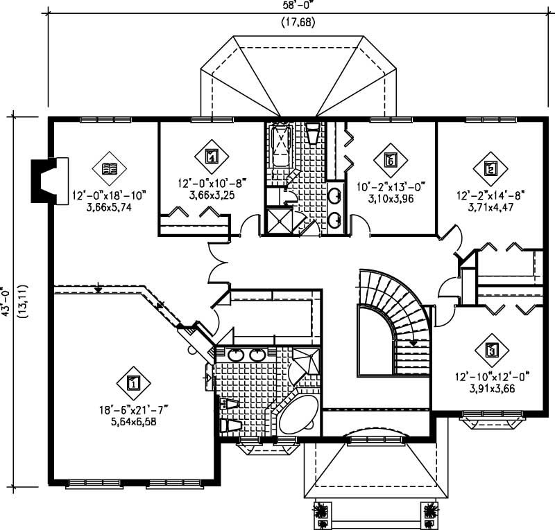
Floor Plans

MAIN FLOOR PLAN
MAIN FLOOR PLAN
UPPER FLOOR PLAN
UPPER FLOOR PLAN
Plan Collection

Can I modify this plan?

Yes! This plan can be customized—contact us for a free quote.

Additional Notes from Designer

This designer doesn't offer electrical layouts with their plans! For our Ontario customers - BCIN is available for this designer's plans. Please submit a modification request to receive a free quote.

House Plan Description

This extraordinary luxury home has 4,348 square feet of living space. The two-story floor plan includes 5 bedrooms and 2.5 bathrooms.

Home Details

Summary
Plan #:157-1645
Starting at:$1550.00
Floors:2
Bedrooms:5
Full Baths:2
Half Baths:2
Garage:
Square Footage
Heated Area:4348 Sq. Ft.
First Floor:2083 Sq. Ft.
Second Floor:2265 Sq. Ft.
Unheated Area:
Dimensions
Architectural Styles
Exterior Wall Material
Aluminum SidingBrick
Garage Type
Attached GarageFront Entry
Fireplaces
Two Fireplaces

What’s Included

Most plan sets include the following:

icon text-secondary-400 includedExterior elevations

icon text-secondary-400 includedFoundation plan

icon text-secondary-400 includedFloor plans

icon text-secondary-400 includedCross sections

icon text-secondary-400 includedStaircase section

icon text-secondary-400 includedRoof truss drawings

icon text-secondary-400 includedSpecifications

icon text-secondary-400 includedConstruction details

icon text-secondary-400 includedSize of structural elements (posts, beams, concrete pads, etc.)

What’s Not Included

These items are  NOT included:

icon text-secondary-400 includedArchitectural or Engineering Stamp - handled locally if required.

icon text-secondary-400 includedSite Plan - handled locally when required.

icon text-secondary-400 includedMechanical Drawings (location of heating and air equipment and ductwork) - your subcontractors handle this.

icon text-secondary-400 includedPlumbing Drawings (drawings showing the actual plumbing pipe sizes and locations) - your subcontractors handle this.

icon text-secondary-400 includedEnergy calculations - handled locally when required.

Related House Plans

Plan Collection
Plan Collection
Plan Collection
Plan#101-1643
Starting at$0
5009
Sq Ft
2
Story
5
Bed
2.5
Bath
3
Car
View All

Other Plans By This Designer

Plan Collection
Plan Collection
Plan Collection
Plan#157-1081
Starting at$730
864
Sq Ft
1
Story
2
Bed
1
Bath
0
Car
Plan Collection
Plan Collection
Plan Collection
Plan#157-1381
Starting at$760
1000
Sq Ft
1
Story
2
Bed
1
Bath
1
Car
Plan Collection
Plan Collection
Plan Collection
Plan#157-1451
Starting at$730
768
Sq Ft
1
Story
2
Bed
1
Bath
0
Car