3-Bedroom, 2650 Sq Ft Craftsman Plan with Covered Rear Porch

Main image for house plan # 13353

Images/Plans copyrighted by designer. Photos may reflect homeowner modifications.

About House Plan #101-1754

Sq Ft
2650
Sq Ft
Bedrooms
3
Bedrooms
Bathroom
2
Baths
Half Baths
0
Half Baths
Bedrooms
3
Cars
Bedrooms
2
Stories
Bedrooms
76' 0'
Width
Bedrooms
52
Depth
Starting at$1100.00What's included
STEP 1Bedrooms
STEP 2Bedrooms
STEP 3Bedrooms

Subtotal:$0
Plan Collection

How much will it cost to build?

Estimate your costs based on your location and materials.

Free Cost Instant Estimator

Floor Plans

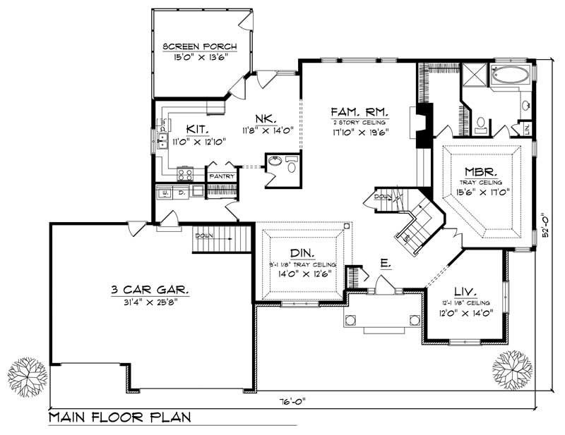
MAIN FLOOR PLAN
MAIN FLOOR PLAN
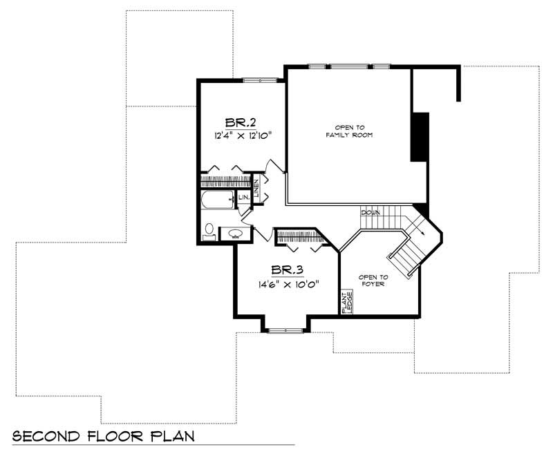
SECOND FLOOR PLAN
SECOND FLOOR PLAN
Plan Collection

Can I modify this plan?

Yes! This plan can be customized—contact us for a free quote.

House Plan Description

This modern two-story home is sure to please the executive homebuyer. The formal living room will invite guests with its twelve-foot ceilings. Both the formal foyer and family room are open to the second floor, creating a dramatic feeling of spaciousness in this lovely home. The formal dining room has a nine-foot tray ceiling and a decorative column that adds to its elegance and would make any dinner party an enjoyable occasion. After dinner, the party could retire to the family room, which will be a great place to relax in front of the fireplace. The large open kitchen has a pantry, plenty...

Home Details

Summary
Plan #:101-1754
Starting at:$1100.00
Floors:2
Bedrooms:3
Full Baths:2
Half Baths:0
Garage:
Square Footage
Heated Area:2650 Sq. Ft.
First Floor:2085 Sq. Ft.
Second Floor:565 Sq. Ft.
Unheated Area:
Dimensions
Architectural Styles
Exterior Wall Material
Vinyl SidingBrick
Roof Pitch
8/12
Ceiling Height
8 Foot Ceiling
Special Feature
FireplaceDining RoomGuest RoomFamily Room
Garage Type
Attached Garage
Exterior Wall Framing
2x6
Master Suite Features
Main Floor Master

What’s Included

Most plan sets include the following:

icon text-secondary-400 includedFront, Back & Side Elevations

icon text-secondary-400 includedFloor Plans

icon text-secondary-400 includedElectrical Layout (location of outlets, switches, etc. - it does not have wiring schematics)

icon text-secondary-400 includedRoof Plan (Birdseye view)

icon text-secondary-400 includedFoundation Layout

icon text-secondary-400 includedWall & Stair Sections

icon text-secondary-400 includedCross Section

icon text-secondary-400 includedKitchen Layout

icon text-secondary-400 includedGeneral Notes

What’s Not Included

These items are  NOT included:

icon text-secondary-400 includedArchitectural or Engineering Stamp - handled locally if required.

icon text-secondary-400 includedSite Plan - handled locally when required.

icon text-secondary-400 includedMechanical Drawings (location of heating and air equipment and ductwork) - your subcontractors handle this.

icon text-secondary-400 includedPlumbing Drawings (drawings showing the actual plumbing pipe sizes and locations) - your subcontractors handle this.

icon text-secondary-400 includedFraming layouts with beam sizes and locations.

icon text-secondary-400 includedEnergy calculations - handled locally when required.

Related House Plans

Plan Collection
Plan Collection
Plan Collection
Plan#126-1297
Starting at$1715
2257
Sq Ft
2
Story
3
Bed
2.5
Bath
2
Car
Plan Collection
Plan Collection
Plan Collection
Plan#198-1006
Starting at$2395
2587
Sq Ft
2
Story
3
Bed
2.5
Bath
3
Car
Plan Collection
Plan Collection
Plan Collection
Plan#117-1030
Starting at$1095
2112
Sq Ft
2
Story
3
Bed
2.5
Bath
2
Car
View All

Other Plans By This Designer

Plan Collection
Plan Collection
Plan Collection
Plan#101-2006
Starting at$0
4724
Sq Ft
2
Story
4
Bed
4.5
Bath
4
Car
Plan Collection
Plan Collection
Plan Collection
Plan#101-2024
Starting at$1180
3235
Sq Ft
1
Story
5
Bed
3.5
Bath
3
Car
Plan Collection
Plan Collection
Plan Collection
Plan#101-2028
Starting at$0
4406
Sq Ft
2
Story
4
Bed
3.5
Bath
4
Car