2-Bedroom, 2194 Sq Ft Ranch Plan with Covered Rear Patio

Main image for house plan # 13896

Images/Plans copyrighted by designer. Photos may reflect homeowner modifications.

About House Plan #101-1479

Sq Ft
2194
Sq Ft
Bedrooms
2
Bedrooms
Bathroom
1
Baths
Half Baths
0
Half Baths
Bedrooms
3
Cars
Bedrooms
1
Stories
Bedrooms
73' 0'
Width
Bedrooms
61
Depth
Starting at$1040.00What's included
STEP 1Bedrooms
STEP 2Bedrooms
STEP 3Bedrooms

Subtotal:$0
Plan Collection

How much will it cost to build?

Estimate your costs based on your location and materials.

Free Cost Instant Estimator

Floor Plans

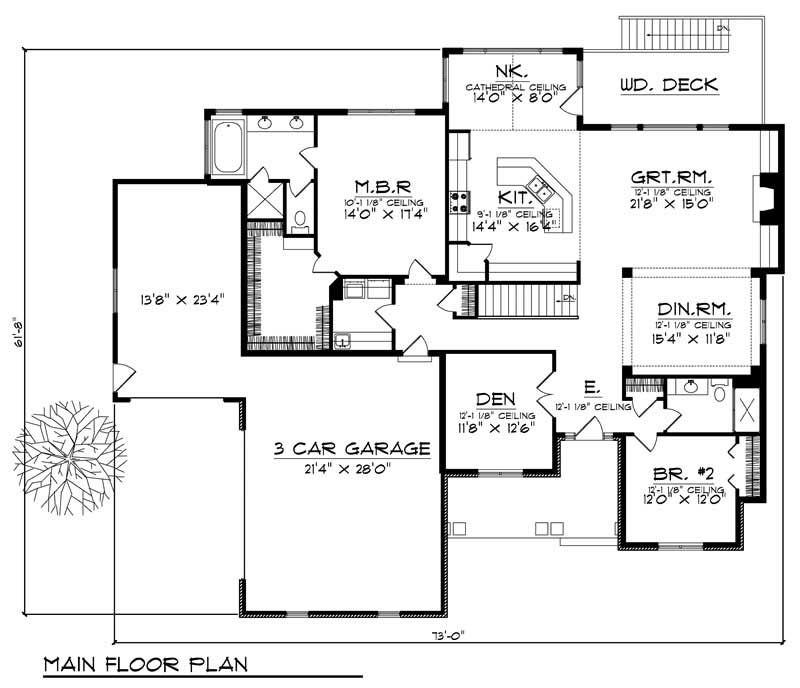
MAIN FLOOR PLAN
MAIN FLOOR PLAN
Plan Collection

Can I modify this plan?

Yes! This plan can be customized—contact us for a free quote.

House Plan Description

This inviting ranch style home with traditional design influences (House Plan #101-1479) has over 2190 square feet of living space. The one story floor plan includes 2 bedrooms.

Home Details

Summary
Plan #:101-1479
Starting at:$1040.00
Floors:1
Bedrooms:2
Full Baths:1
Half Baths:0
Garage:
Square Footage
Heated Area:2194 Sq. Ft.
First Floor:2194 Sq. Ft.
Unheated Area:
Dimensions
Depth:61' 8''
Architectural Styles
Exterior Wall Material
Vinyl SidingBrickShakes
Roof Pitch
10/12
Ceiling Height
9 Foot Ceiling
Garage Type
Attached Garage
Exterior Wall Framing
2x6

What’s Included

Most plan sets include the following:

icon text-secondary-400 includedFront, Back & Side Elevations

icon text-secondary-400 includedFloor Plans

icon text-secondary-400 includedElectrical Layout (location of outlets, switches, etc. - it does not have wiring schematics)

icon text-secondary-400 includedRoof Plan (Birdseye view)

icon text-secondary-400 includedFoundation Layout

icon text-secondary-400 includedWall & Stair Sections

icon text-secondary-400 includedCross Section

icon text-secondary-400 includedKitchen Layout

icon text-secondary-400 includedGeneral Notes

What’s Not Included

These items are  NOT included:

icon text-secondary-400 includedArchitectural or Engineering Stamp - handled locally if required.

icon text-secondary-400 includedSite Plan - handled locally when required.

icon text-secondary-400 includedMechanical Drawings (location of heating and air equipment and ductwork) - your subcontractors handle this.

icon text-secondary-400 includedPlumbing Drawings (drawings showing the actual plumbing pipe sizes and locations) - your subcontractors handle this.

icon text-secondary-400 includedFraming layouts with beam sizes and locations.

icon text-secondary-400 includedEnergy calculations - handled locally when required.

Related House Plans

Plan Collection
Plan Collection
Plan Collection
Plan#100-1094
Starting at$1300
1685
Sq Ft
1
Story
2
Bed
1
Bath
2
Car
Plan Collection
Plan Collection
Plan Collection
Plan#120-2175
Starting at$1155
2255
Sq Ft
1
Story
2
Bed
1
Bath
2
Car
Plan Collection
Plan Collection
Plan Collection
Plan#146-2785
Starting at$980
1728
Sq Ft
1
Story
2
Bed
1.5
Bath
3
Car
View All

Other Plans By This Designer

Plan Collection
Plan Collection
Plan Collection
Plan#101-2006
Starting at$0
4724
Sq Ft
2
Story
4
Bed
4.5
Bath
4
Car
Plan Collection
Plan Collection
Plan Collection
Plan#101-2024
Starting at$1180
3235
Sq Ft
1
Story
5
Bed
3.5
Bath
3
Car
Plan Collection
Plan Collection
Plan Collection
Plan#101-2028
Starting at$0
4406
Sq Ft
2
Story
4
Bed
3.5
Bath
4
Car