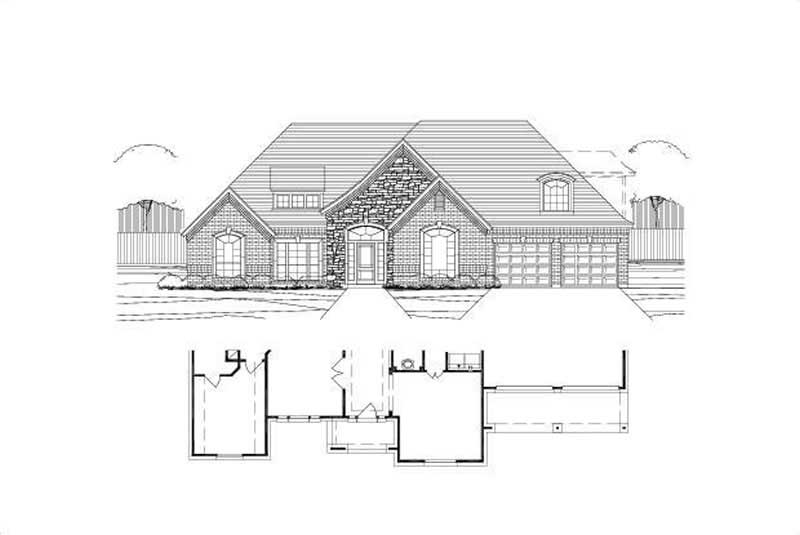
4-Bedroom, 2953 Sq Ft Country Plan with Peninsula/Eating Bar

Main image for house plan # 15085

Images/Plans copyrighted by designer. Photos may reflect homeowner modifications.

About House Plan #156-1941

Sq Ft
2953
Sq Ft
Bedrooms
4
Bedrooms
Bathroom
2
Baths
Half Baths
0
Half Baths
Bedrooms
3
Cars
Bedrooms
1
Stories
Bedrooms
70' 0'
Width
Bedrooms
77
Depth
Starting at$975.00What's included
STEP 1Bedrooms
STEP 2Bedrooms
STEP 3Bedrooms

Subtotal:$0
Plan Collection

How much will it cost to build?

Estimate your costs based on your location and materials.

Free Cost Instant Estimator

Floor Plans

HOME PLAN NUMBER 20253 MAIN FLOOR PLAN
HOME PLAN NUMBER 20253 MAIN FLOOR PLAN
Plan Collection

Can I modify this plan?

Yes! This plan can be customized—contact us for a free quote.

Additional Notes from Designer

CAD files may take up to 3 business days to receive - please contact us for availability.

House Plan Description

HOME PLAN NUMBER 20253 IS A COUNTRY FRENCH HOME WITH 2953 TOTAL SQUARE FEET. THIS HOUSE PLAN ALSO HAS 4 BEDROOMS AND 2 BATHROOMS AS WELL AS A STRAIGHT IN FRONT LOAD 3 CAR GARAGE. THIS HOME PLAN HAS 2 LIVING AREAS AND 2 DINING AREAS.

Home Details

Summary
Plan #:156-1941
Starting at:$975.00
Floors:1
Bedrooms:4
Full Baths:2
Half Baths:0
Garage:
Square Footage
Heated Area:2953 Sq. Ft.
First Floor:2953 Sq. Ft.
Unheated Area:
Dimensions
Ridge Height:27' 0''
Architectural Styles
Exterior Wall Material
BrickRock/Stone
Ceiling Height
9 Foot Ceiling
Garage Type
Front Entry

What’s Included

Most plan sets include the following:

icon text-secondary-400 includedExterior,

icon text-secondary-400 includedElevations

icon text-secondary-400 includedFloor Plans

icon text-secondary-400 includedElectrical Layout

icon text-secondary-400 includedBuilding Sections

icon text-secondary-400 includedRoofing Plan

icon text-secondary-400 includedInterior Elevations

icon text-secondary-400 includedGeneral Details

icon text-secondary-400 includedWall Sections

What’s Not Included

These items are  NOT included:

icon text-secondary-400 includedArchitectural or Engineering Stamp - handled locally if required.

icon text-secondary-400 includedSite Plan - handled locally when required.

icon text-secondary-400 includedMechanical Drawings (location of heating and air equipment and ductwork) - your subcontractors handle this.

icon text-secondary-400 includedPlumbing Drawings (drawings showing the actual plumbing pipe sizes and locations) - your subcontractors handle this.

icon text-secondary-400 includedEnergy calculations - handled locally when required.

Related House Plans

Plan Collection
Plan Collection
Plan Collection
Plan#142-1170
Starting at$1395
2641
Sq Ft
1
Story
4
Bed
2.5
Bath
2
Car
Plan Collection
Plan Collection
Plan Collection
Plan#142-1204
Starting at$1345
2373
Sq Ft
1
Story
4
Bed
2.5
Bath
2
Car
Plan Collection
Plan Collection
Plan Collection
Plan#142-1189
Starting at$1395
2589
Sq Ft
1
Story
4
Bed
2.5
Bath
2
Car
View All

Other Plans By This Designer

Plan Collection
Plan Collection
Plan Collection
Plan#156-1607
Starting at$1450
5509
Sq Ft
3
Story
6
Bed
6.5
Bath
3
Car
Plan Collection
Plan Collection
Plan Collection
Plan#156-1085
Starting at$1100
3900
Sq Ft
2
Story
4
Bed
3.5
Bath
3
Car
Plan Collection
Plan Collection
Plan Collection
Plan#156-1734
Starting at$1700
6775
Sq Ft
2
Story
6
Bed
4.5
Bath
2
Car