Estimate your costs based on your location and materials.
Yes! This plan can be customized—contact us for a free quote.
Yes! This plan can be customized—contact us for a free quote.
CAD files may take up to 3 business days to receive - please contact us for availability.
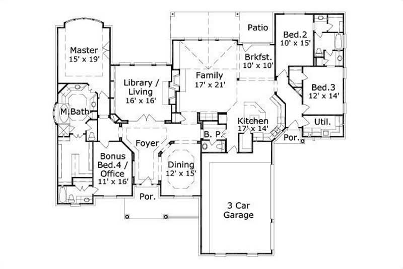
Home Plan #99580 is a single story country french style home with brick as the exterior material and it has 3415 total living square feet. This house plan has 4 bedrooms and 3 bathrooms as well as a side facing front load 3 car garage. It also has 2 living areas and 2 dining areas along with a butler pantry, a covered rear porch, a master with sitting area, a covered front porch and a covered side porch.
Estimate your costs based on your location and materials.
All sales of house plans, modifications, and other products found on this site are final. No refunds or exchanges can be given once your order has begun the fulfillment process. Please see our Policies for additional information.
All plans offered on ThePlanCollection.com are designed to conform to the local building codes when and where the original plan was drawn.
The homes as shown in photographs and renderings may differ from the actual blueprints. For more detailed information, please review the floor plan images herein carefully.
Estimate your costs based on your location and materials.