Estimate your costs based on your location and materials.
Yes! This plan can be customized—contact us for a free quote.
Yes! This plan can be customized—contact us for a free quote.
CAD files may take up to 3 business days to receive - please contact us for availability.
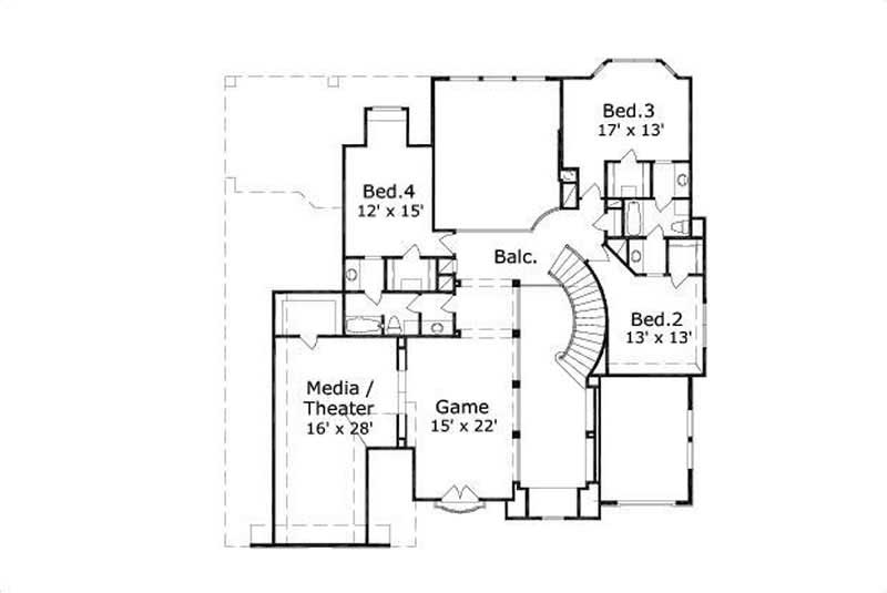
Home plan number 50768 is a two story, Country French style home with a total square footage of 4,712. There are 4 bedrooms and 4 and 1/2 bathrooms, along with a straight in, front loading, 3 car garage. The master bedroom includes a seperate closet and sitting area. Plan number 50768 has a covered rear porch. There are also exterior and interior balconies. Special features include an outdoor kitchen, two story family room, cabana bath, portico, theater/media area and a two story living room. Other features include a butler's pantry, foyer, unfinished storage, and gallery.
Estimate your costs based on your location and materials.
All sales of house plans, modifications, and other products found on this site are final. No refunds or exchanges can be given once your order has begun the fulfillment process. Please see our Policies for additional information.
All plans offered on ThePlanCollection.com are designed to conform to the local building codes when and where the original plan was drawn.
The homes as shown in photographs and renderings may differ from the actual blueprints. For more detailed information, please review the floor plan images herein carefully.
Estimate your costs based on your location and materials.