3-Bedroom, 3510 Sq Ft Tuscan Plan with Covered Rear Porch

Front elevation of Tuscan home (ThePlanCollection: House Plan #156-1182)

Images/Plans copyrighted by designer. Photos may reflect homeowner modifications.

About House Plan #156-1182

Sq Ft
3510
Sq Ft
Bedrooms
3
Bedrooms
Bathroom
3
Baths
Half Baths
1
Half Baths
Bedrooms
3
Cars
Bedrooms
2
Stories
Bedrooms
49' 0'
Width
Bedrooms
83
Depth
Starting at$1100.00What's included
STEP 1Bedrooms
STEP 2Bedrooms
STEP 3Bedrooms

Subtotal:$0
Plan Collection

How much will it cost to build?

Estimate your costs based on your location and materials.

Free Cost Instant Estimator

Floor Plans

First Floor Plan
First Floor Plan
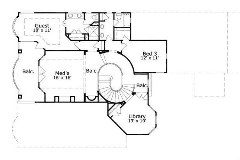
Second Floor Plan
Second Floor Plan
Plan Collection

Can I modify this plan?

Yes! This plan can be customized—contact us for a free quote.

Additional Notes from Designer

CAD files may take up to 3 business days to receive - please contact us for availability.

House Plan Description

Home Plan #990546-3 is a two story Tuscan style home with stucco ans cultured stone exterior and 3510 total living square feet. It has 4 bedrooms, 3 baths, and a straight in front load 3 car garage. This house plan also has 1 living area, 2 dining areas, a butler pantry, an entry courtyard, a master with sitting area, a separate master closet, a covered rear porch, an exterior balcony, a portico, and a theater/media.

Home Details

Summary
Plan #:156-1182
Starting at:$1100.00
Floors:2
Bedrooms:3
Full Baths:3
Half Baths:1
Garage:
Square Footage
Heated Area:3510 Sq. Ft.
First Floor:2078 Sq. Ft.
Second Floor:1432 Sq. Ft.
Unheated Area:
Dimensions
Architectural Styles
Exterior Wall Material
StuccoRock/Stone
Roofing Type
Hip
Roofing Material
Asphalt Shingles
Ceiling Height
10 Foot Ceiling9 Foot Ceiling
Special Feature
FireplaceDining RoomMud RoomFamily RoomMain Level LaundryLibraryMedia RoomSplit BathroomStorageBalcony
Garage Type
Attached GarageFront Entry
Fireplaces
One Fireplace
Kitchen Features
Kitchen IslandNook/Breakfast AreaWalk-in PantryPeninsula/Eating Bar
Porches and Exterior Features
CourtyardCovered Rear Porch
Master Suite Features
Main Floor MasterMaster BathroomWalk In ClosetSplit Master Bedroom

What’s Included

Most plan sets include the following:

icon text-secondary-400 includedExterior,

icon text-secondary-400 includedElevations

icon text-secondary-400 includedFloor Plans

icon text-secondary-400 includedElectrical Layout

icon text-secondary-400 includedBuilding Sections

icon text-secondary-400 includedRoofing Plan

icon text-secondary-400 includedInterior Elevations

icon text-secondary-400 includedGeneral Details

icon text-secondary-400 includedWall Sections

What’s Not Included

These items are  NOT included:

icon text-secondary-400 includedArchitectural or Engineering Stamp - handled locally if required.

icon text-secondary-400 includedSite Plan - handled locally when required.

icon text-secondary-400 includedMechanical Drawings (location of heating and air equipment and ductwork) - your subcontractors handle this.

icon text-secondary-400 includedPlumbing Drawings (drawings showing the actual plumbing pipe sizes and locations) - your subcontractors handle this.

icon text-secondary-400 includedEnergy calculations - handled locally when required.

Related House Plans

Plan Collection
Plan Collection
Plan Collection
Plan#117-1103
Starting at$1345
2847
Sq Ft
2
Story
3
Bed
3
Bath
3
Car
Plan Collection
Plan Collection
Plan Collection
Plan#153-1897
Starting at$2250
4121
Sq Ft
2
Story
3
Bed
3.5
Bath
3
Car
Plan Collection
Plan Collection
Plan Collection
Plan#136-1014
Starting at$2250
3639
Sq Ft
2
Story
3
Bed
3
Bath
2
Car
View All

Other Plans By This Designer

Plan Collection
Plan Collection
Plan Collection
Plan#156-1607
Starting at$1450
5509
Sq Ft
3
Story
6
Bed
6.5
Bath
3
Car
Plan Collection
Plan Collection
Plan Collection
Plan#156-1085
Starting at$1100
3900
Sq Ft
2
Story
4
Bed
3.5
Bath
3
Car
Plan Collection
Plan Collection
Plan Collection
Plan#156-1734
Starting at$1700
6775
Sq Ft
2
Story
6
Bed
4.5
Bath
2
Car