4-Bedroom, 3566 Sq Ft Luxury Plan with Peninsula/Eating Bar

Main image for house plan # 16388

Images/Plans copyrighted by designer. Photos may reflect homeowner modifications.

About House Plan #156-1295

Sq Ft
3566
Sq Ft
Bedrooms
4
Bedrooms
Bathroom
3
Baths
Half Baths
0
Half Baths
Bedrooms
2
Cars
Bedrooms
1
Stories
Bedrooms
66' 0'
Width
Bedrooms
99
Depth
Starting at$1100.00What's included
STEP 1Bedrooms
STEP 2Bedrooms
STEP 3Bedrooms

Subtotal:$0
Plan Collection

How much will it cost to build?

Estimate your costs based on your location and materials.

Free Cost Instant Estimator

Floor Plans

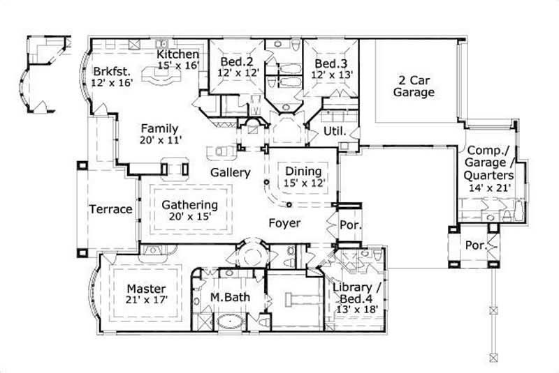
FIRST STORY FLOOR PLAN
FIRST STORY FLOOR PLAN
Plan Collection

Can I modify this plan?

Yes! This plan can be customized—contact us for a free quote.

Additional Notes from Designer

CAD files may take up to 3 business days to receive - please contact us for availability.

House Plan Description

Home plan number 20423-3 is a single story, Traditional style home with a total square footage of 3,566. There are 4 bedrooms and 3 and 1/2 bathrooms, along with a split entry, front loading, 2 car garage. The master bedroom includes a sitting area. Plan number 20423-3 has a covered rear porch. Features include a butler pantry, entry courtyard, home office and a portico.

Home Details

Summary
Plan #:156-1295
Starting at:$1100.00
Floors:1
Bedrooms:4
Full Baths:3
Half Baths:0
Garage:
Square Footage
Heated Area:3566 Sq. Ft.
First Floor:3566 Sq. Ft.
Unheated Area:
Dimensions
Ridge Height:29' 0''
Architectural Styles
Exterior Wall Material
StuccoRock/Stone
Ceiling Height
10 Foot Ceiling
Special Feature
Home Office
Garage Type
Attached GarageFront Entry
Porches and Exterior Features
CourtyardCovered Rear Porch

What’s Included

Most plan sets include the following:

icon text-secondary-400 includedExterior,

icon text-secondary-400 includedElevations

icon text-secondary-400 includedFloor Plans

icon text-secondary-400 includedElectrical Layout

icon text-secondary-400 includedBuilding Sections

icon text-secondary-400 includedRoofing Plan

icon text-secondary-400 includedInterior Elevations

icon text-secondary-400 includedGeneral Details

icon text-secondary-400 includedWall Sections

What’s Not Included

These items are  NOT included:

icon text-secondary-400 includedArchitectural or Engineering Stamp - handled locally if required.

icon text-secondary-400 includedSite Plan - handled locally when required.

icon text-secondary-400 includedMechanical Drawings (location of heating and air equipment and ductwork) - your subcontractors handle this.

icon text-secondary-400 includedPlumbing Drawings (drawings showing the actual plumbing pipe sizes and locations) - your subcontractors handle this.

icon text-secondary-400 includedEnergy calculations - handled locally when required.

Related House Plans

Plan Collection
Plan Collection
Plan Collection
Plan#142-1167
Starting at$1545
3194
Sq Ft
1
Story
4
Bed
3.5
Bath
3
Car
Plan Collection
Plan Collection
Plan Collection
Plan#142-1139
Starting at$1545
3195
Sq Ft
1
Story
4
Bed
3.5
Bath
3
Car
Plan Collection
Plan Collection
Plan Collection
Plan#153-1153
Starting at$1100
2788
Sq Ft
1
Story
4
Bed
3.5
Bath
3
Car
View All

Other Plans By This Designer

Plan Collection
Plan Collection
Plan Collection
Plan#156-1607
Starting at$1450
5509
Sq Ft
3
Story
6
Bed
6.5
Bath
3
Car
Plan Collection
Plan Collection
Plan Collection
Plan#156-1085
Starting at$1100
3900
Sq Ft
2
Story
4
Bed
3.5
Bath
3
Car
Plan Collection
Plan Collection
Plan Collection
Plan#156-1734
Starting at$1700
6775
Sq Ft
2
Story
6
Bed
4.5
Bath
2
Car