4-Bedroom, 3020 Sq Ft Country Plan with Main Floor Master

Main image for house plan # 17024

Images/Plans copyrighted by designer. Photos may reflect homeowner modifications.

About House Plan #101-1028

Sq Ft
3020
Sq Ft
Bedrooms
4
Bedrooms
Bathroom
3
Baths
Half Baths
0
Half Baths
Bedrooms
3
Cars
Bedrooms
2
Stories
Bedrooms
80' 0'
Width
Bedrooms
53
Depth
Starting at$1180.00What's included
STEP 1Bedrooms
STEP 2Bedrooms
STEP 3Bedrooms

Subtotal:$0
Plan Collection

How much will it cost to build?

Estimate your costs based on your location and materials.

Free Cost Instant Estimator

Floor Plans

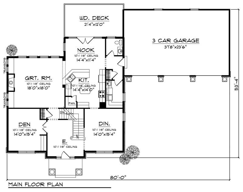
MAIN FLOOR PLAN
MAIN FLOOR PLAN
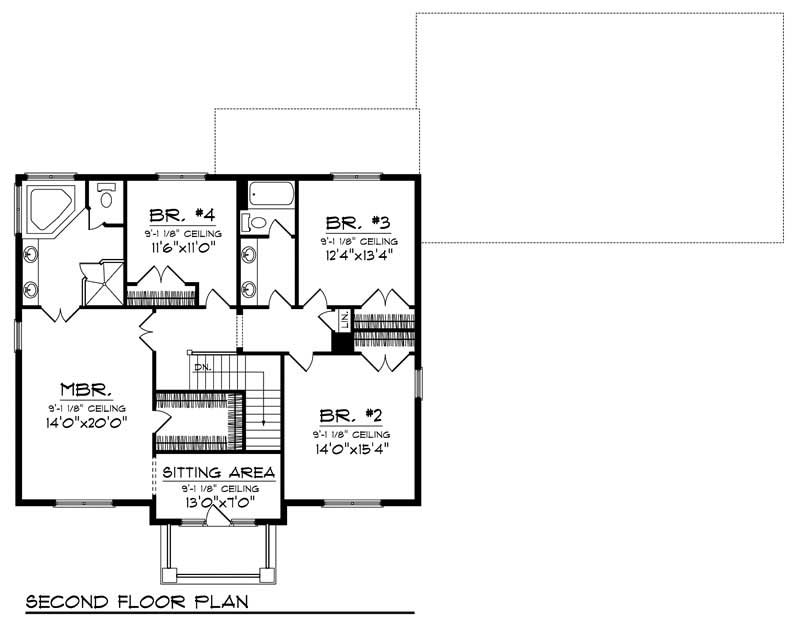
SECOND FLOOR PLAN
SECOND FLOOR PLAN
Plan Collection

Can I modify this plan?

Yes! This plan can be customized—contact us for a free quote.

House Plan Description

Graceful columns, a balcony and arched windows are just some of the details that give this home its Southern charm. Inside you’ll find a very traditional floor plan with a den to your left, and a formal dining room to your right as you enter. To the back of the main level, you’ll love the wall of windows giving you an impressive view of the back yard as you enter the great room. The adjacent kitchen features a breakfast bar that overlooks the great room and nook to create a comfortable living area. Upstairs you’ll find the master suite complete with corner Jacuzzi tub, spacious walk-in...

Home Details

Summary
Plan #:101-1028
Starting at:$1180.00
Floors:2
Bedrooms:4
Full Baths:3
Half Baths:0
Garage:
Square Footage
Heated Area:3020 Sq. Ft.
First Floor:1619 Sq. Ft.
Second Floor:1401 Sq. Ft.
Unheated Area:
Garage:885 Sq. Ft.
Dimensions
Depth:53' 4''
Ridge Height:30-1' 0''
Architectural Styles
Exterior Wall Material
Aluminum SidingVinyl SidingBrickWood SidingShakes
Roof Pitch
6/12
Ceiling Height
10 Foot Ceiling9 Foot Ceiling
Special Feature
Dining Room
Garage Type
Courtyard EntryFront Entry
Fireplaces
One Fireplace
Exterior Wall Framing
2x6

What’s Included

Most plan sets include the following:

icon text-secondary-400 includedFront, Back & Side Elevations

icon text-secondary-400 includedFloor Plans

icon text-secondary-400 includedElectrical Layout (location of outlets, switches, etc. - it does not have wiring schematics)

icon text-secondary-400 includedRoof Plan (Birdseye view)

icon text-secondary-400 includedFoundation Layout

icon text-secondary-400 includedWall & Stair Sections

icon text-secondary-400 includedCross Section

icon text-secondary-400 includedKitchen Layout

icon text-secondary-400 includedGeneral Notes

What’s Not Included

These items are  NOT included:

icon text-secondary-400 includedArchitectural or Engineering Stamp - handled locally if required.

icon text-secondary-400 includedSite Plan - handled locally when required.

icon text-secondary-400 includedMechanical Drawings (location of heating and air equipment and ductwork) - your subcontractors handle this.

icon text-secondary-400 includedPlumbing Drawings (drawings showing the actual plumbing pipe sizes and locations) - your subcontractors handle this.

icon text-secondary-400 includedFraming layouts with beam sizes and locations.

icon text-secondary-400 includedEnergy calculations - handled locally when required.

Related House Plans

Plan Collection
Plan Collection
Plan Collection
Plan#153-1020
Starting at$1200
2373
Sq Ft
2
Story
4
Bed
3
Bath
3
Car
Plan Collection
Plan Collection
Plan Collection
Plan#153-1786
Starting at$1200
2363
Sq Ft
2
Story
4
Bed
3
Bath
2
Car
Plan Collection
Plan Collection
Plan Collection
Plan#120-2176
Starting at$1255
3124
Sq Ft
2
Story
4
Bed
3.5
Bath
2
Car
View All

Other Plans By This Designer

Plan Collection
Plan Collection
Plan Collection
Plan#101-2006
Starting at$0
4724
Sq Ft
2
Story
4
Bed
4.5
Bath
4
Car
Plan Collection
Plan Collection
Plan Collection
Plan#101-2024
Starting at$1180
3235
Sq Ft
1
Story
5
Bed
3.5
Bath
3
Car
Plan Collection
Plan Collection
Plan Collection
Plan#101-2028
Starting at$0
4406
Sq Ft
2
Story
4
Bed
3.5
Bath
4
Car