3-Bedroom, 1334 Sq Ft Country Plan with Covered Rear Porch

Main image for Ranch Homeplans # 1759

Images/Plans copyrighted by designer. Photos may reflect homeowner modifications.

About House Plan #164-1203

Sq Ft
1334
Sq Ft
Bedrooms
3
Bedrooms
Bathroom
2
Baths
Half Baths
0
Half Baths
Bedrooms
2
Cars
Bedrooms
1
Stories
Bedrooms
55' 10'
Width
Bedrooms
40
Depth
Starting at$937.50What's included
STEP 1Bedrooms
STEP 2Bedrooms
STEP 3Bedrooms

Subtotal:$0
Plan Collection

How much will it cost to build?

Estimate your costs based on your location and materials.

Free Cost Instant Estimator

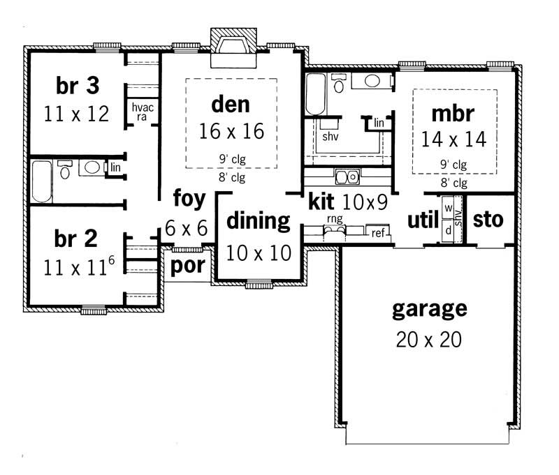
Floor Plans

Main Floor Plan
Main Floor Plan
Plan Collection

Can I modify this plan?

Yes! This plan can be customized—contact us for a free quote.

House Plan Description

Ranch House Plans RG1307b have a large den and master bedroom, both with 9' raised ceilings. The den also features a warm fireplace and a stunning entry foyer. This home has so many features, it's difficult to name them all. The Kitchen is very unique and leads into the dining room.

Home Details

Summary
Plan #:164-1203
Starting at:$937.50
Floors:1
Bedrooms:3
Full Baths:2
Half Baths:0
Garage:
Square Footage
Heated Area:1334 Sq. Ft.
First Floor:1334 Sq. Ft.
Unheated Area:
Garage:400 Sq. Ft.
Dimensions
Width:55' 10''
Depth:40' 10''
Ridge Height:17'-6' 0''
Architectural Styles
Exterior Wall Material
Brick
Roofing Type
Hip
Roofing Material
Asphalt Shingles
Roof Pitch
8/12
Ceiling Height
8 Foot Ceiling
Special Feature
FireplaceDining RoomMain Level LaundrySplit BathroomStorageDen
Garage Type
Attached GarageFront Entry
Fireplaces
One Fireplace
Building Lot Type
Flat Site
Porches and Exterior Features
Covered Front Porch
Master Suite Features
Main Floor MasterMaster BathroomWalk In Closet

What’s Included

Most plan sets include the following:

icon text-secondary-400 includedCover sheet

icon text-secondary-400 includedFoundation plan

icon text-secondary-400 includedFloor plan

icon text-secondary-400 includedElectrical layout

icon text-secondary-400 includedExterior elevations

icon text-secondary-400 includedBuilding sections

icon text-secondary-400 includedSpecifications

icon text-secondary-400 includedCabinet details

icon text-secondary-400 includedRoof plan

icon text-secondary-400 includedMiscellaneous details

What’s Not Included

These items are  NOT included:

icon text-secondary-400 includedArchitectural or Engineering Stamp - handled locally if required.

icon text-secondary-400 includedSite Plan - handled locally when required.

icon text-secondary-400 includedMechanical Drawings (location of heating and air equipment and ductwork) - your subcontractors handle this.

icon text-secondary-400 includedPlumbing Drawings (drawings showing the actual plumbing pipe sizes and locations) - your subcontractors handle this.

icon text-secondary-400 includedEnergy calculations - handled locally when required.

Related House Plans

Plan Collection
Plan Collection
Plan Collection
Plan#142-1041
Starting at$1245
1300
Sq Ft
1
Story
3
Bed
2
Bath
2
Car
Plan Collection
Plan Collection
Plan Collection
Plan#141-1243
Starting at$1485
1640
Sq Ft
1
Story
3
Bed
2
Bath
2
Car
Plan Collection
Plan Collection
Plan Collection
Plan#176-1012
Starting at$600
1412
Sq Ft
1
Story
3
Bed
2
Bath
0
Car
View All

Other Plans By This Designer

Plan Collection
Plan Collection
Plan Collection
Plan#164-1271
Starting at$1313
2680
Sq Ft
1
Story
4
Bed
3
Bath
2
Car
Plan Collection
Plan Collection
Plan Collection
Plan#164-1235
Starting at$938
1088
Sq Ft
1
Story
2
Bed
2
Bath
2
Car
Plan Collection
Plan Collection
Plan Collection
Plan#164-1142
Starting at$1313
2539
Sq Ft
2
Story
4
Bed
3.5
Bath
2
Car