4-Bedroom, 3594 Sq Ft Contemporary Plan with Screened Porch/Sunroom

Main image for house plan # 18914

Images/Plans copyrighted by designer. Photos may reflect homeowner modifications.

About House Plan #162-1036

Sq Ft
3594
Sq Ft
Bedrooms
4
Bedrooms
Bathroom
2
Baths
Half Baths
1
Half Baths
Bedrooms
3
Cars
Bedrooms
1
Stories
Bedrooms
76' 6'
Width
Bedrooms
64
Depth
Starting at$1400.00What's included
STEP 1Bedrooms
STEP 2Bedrooms
STEP 3Bedrooms

Subtotal:$0
Plan Collection

How much will it cost to build?

Estimate your costs based on your location and materials.

Free Cost Instant Estimator

Floor Plans

Main Floor Plan
Main Floor Plan
Second Floor Plan
Second Floor Plan
Plan Collection

Can I modify this plan?

Yes! This plan can be customized—contact us for a free quote.

House Plan Description

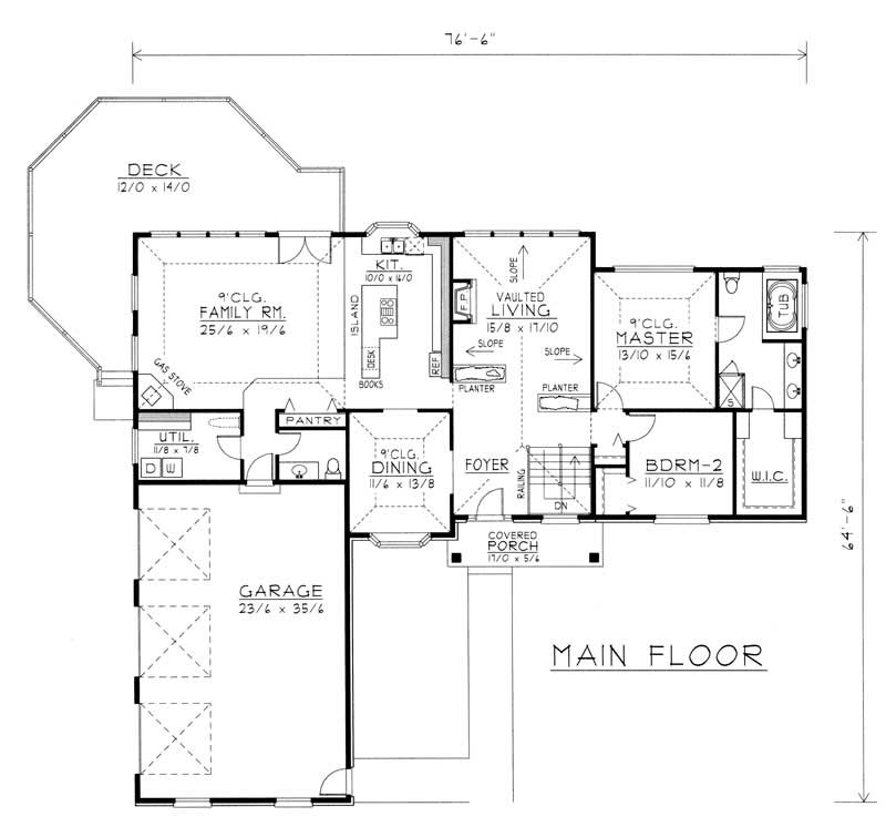
House Plan RDI-2320R1-DB leaves plenty of room for open spaces. The foyer and living areas share a vaulted ceiling creating a rather grand entrance. The kitchen, which boasts a very large island and plenty of cupboard and counter space, shares a tray ceiling with the family room. These two spaces create a wonderful environment for entertaining guests without putting strain on the entire family. Other features include a large laundry room, a generous master suite with private bath and walk-in closet, a partially finished basement with more bedrooms and a third entertainment area.

Home Details

Summary
Plan #:162-1036
Starting at:$1400.00
Floors:1
Bedrooms:4
Full Baths:2
Half Baths:1
Garage:
Square Footage
Heated Area:3594 Sq. Ft.
First Floor:2320 Sq. Ft.
Unheated Area:
Basement:1274 Sq. Ft.
Bonus Room:1046 Sq. Ft.
Garage:879 Sq. Ft.
Dimensions
Width:76' 6''
Depth:64' 6''
Ridge Height:17'9' 0''
Architectural Styles
Exterior Wall Material
BrickWood Siding
Roofing Type
Gambrel
Roof Pitch
6/12
Ceiling Height
10 Foot Ceiling9 Foot Ceiling8 Foot Ceiling
Special Feature
Guest RoomFamily Room
Garage Type
Attached GarageSide Entry
Fireplaces
Two Fireplaces
Exterior Wall Framing
2x6

What’s Included

Most plan sets include the following:

icon text-secondary-400 includedExterior Elevations

icon text-secondary-400 includedFloor Plans

icon text-secondary-400 includedFoundation Plan

icon text-secondary-400 includedRoof Framing Plan

icon text-secondary-400 includedBuilding Sections

icon text-secondary-400 includedWall Sections

icon text-secondary-400 includedStair Detail

icon text-secondary-400 includedCabinet Elevations

icon text-secondary-400 includedNotes

icon text-secondary-400 includedElectrical Layout

icon text-secondary-400 includedDoor & Window Sizes

What’s Not Included

These items are  NOT included:

icon text-secondary-400 includedArchitectural or Engineering Stamp - handled locally if required.

icon text-secondary-400 includedSite Plan - handled locally when required.

icon text-secondary-400 includedMechanical Drawings (location of heating and air equipment and ductwork) - your subcontractors handle this.

icon text-secondary-400 includedPlumbing Drawings (drawings showing the actual plumbing pipe sizes and locations) - your subcontractors handle this.

icon text-secondary-400 includedEnergy calculations - handled locally when required.

Related House Plans

Plan Collection
Plan Collection
Plan Collection
Plan#141-1038
Starting at$1570
2800
Sq Ft
1
Story
4
Bed
2.5
Bath
3
Car
Plan Collection
Plan Collection
Plan Collection
Plan#189-1117
Starting at$1595
3401
Sq Ft
1
Story
4
Bed
2.5
Bath
2
Car
Plan Collection
Plan Collection
Plan Collection
Plan#193-1121
Starting at$1650
3447
Sq Ft
1
Story
4
Bed
2.5
Bath
2
Car
View All

Other Plans By This Designer

Plan Collection
Plan Collection
Plan Collection
Plan#162-1039
Starting at$1500
4219
Sq Ft
1
Story
4
Bed
3
Bath
3
Car
Plan Collection
Plan Collection
Plan Collection
Plan#162-1028
Starting at$1100
2059
Sq Ft
2
Story
3
Bed
2.5
Bath
2
Car
Plan Collection
Plan Collection
Plan Collection
Plan#162-1037
Starting at$1500
4466
Sq Ft
1
Story
4
Bed
4.5
Bath
3
Car