3-Bedroom, 2849 Sq Ft Country Plan with Master Bathroom

Front elevation of Country home (ThePlanCollection: House Plan #162-1062)

Images/Plans copyrighted by designer. Photos may reflect homeowner modifications.

About House Plan #162-1062

Sq Ft
2849
Sq Ft
Bedrooms
3
Bedrooms
Bathroom
2
Baths
Half Baths
1
Half Baths
Bedrooms
3
Cars
Bedrooms
2
Stories
Bedrooms
70' 0'
Width
Bedrooms
41
Depth
Starting at$1200.00What's included
STEP 1Bedrooms
STEP 2Bedrooms
STEP 3Bedrooms

Subtotal:$0
Plan Collection

How much will it cost to build?

Estimate your costs based on your location and materials.

Free Cost Instant Estimator

Floor Plans

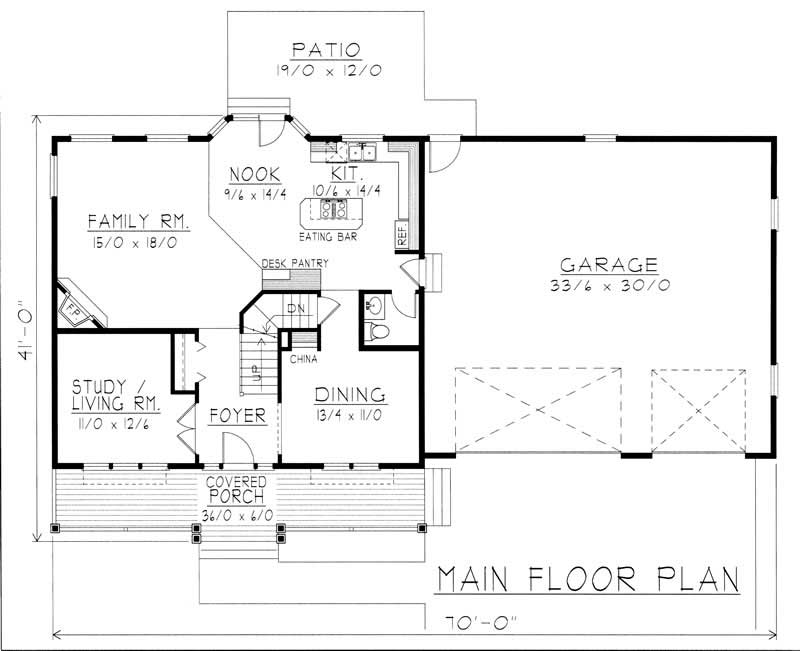
Main Floor Plan
Main Floor Plan
Second Floor Plan
Second Floor Plan
Plan Collection

Can I modify this plan?

Yes! This plan can be customized—contact us for a free quote.

House Plan Description

Special features for Home Plan 162-1062 include a warm and inviting country Victorian feel, a charming traditional floor plan, a large island in the kitchen, fireplace, and upper floor bedrooms and laundry room. The master suite is very generous with a private bath and large walk-in closet. The bonus room is also quite large, offering plenty of possibilities. Looking for something a little smaller? See home plan RDI-2197TS1-B.

Home Details

Summary
Plan #:162-1062
Starting at:$1200.00
Floors:2
Bedrooms:3
Full Baths:2
Half Baths:1
Garage:
Square Footage
Heated Area:2849 Sq. Ft.
First Floor:1168 Sq. Ft.
Second Floor:1053 Sq. Ft.
Unheated Area:
Basement:1152 Sq. Ft.
Bonus Room:628 Sq. Ft.
Garage:1054 Sq. Ft.
Dimensions
Ridge Height:25' 0''
Architectural Styles
Exterior Wall Material
Wood Siding
Roofing Type
Gable
Roof Pitch
6/12
Ceiling Height
10 Foot Ceiling8 Foot Ceiling
Special Feature
FireplaceBonus RoomMain Level LaundrySecond Level Laundry
Garage Type
Attached GarageFront Entry
Fireplaces
One Fireplace
Exterior Wall Framing
2x6
Kitchen Features
Kitchen IslandPeninsula/Eating Bar
Porches and Exterior Features
Covered Front Porch
Master Suite Features
Master BathroomWalk In Closet

What’s Included

Most plan sets include the following:

icon text-secondary-400 includedExterior Elevations

icon text-secondary-400 includedFloor Plans

icon text-secondary-400 includedFoundation Plan

icon text-secondary-400 includedRoof Framing Plan

icon text-secondary-400 includedBuilding Sections

icon text-secondary-400 includedWall Sections

icon text-secondary-400 includedStair Detail

icon text-secondary-400 includedCabinet Elevations

icon text-secondary-400 includedNotes

icon text-secondary-400 includedElectrical Layout

icon text-secondary-400 includedDoor & Window Sizes

What’s Not Included

These items are  NOT included:

icon text-secondary-400 includedArchitectural or Engineering Stamp - handled locally if required.

icon text-secondary-400 includedSite Plan - handled locally when required.

icon text-secondary-400 includedMechanical Drawings (location of heating and air equipment and ductwork) - your subcontractors handle this.

icon text-secondary-400 includedPlumbing Drawings (drawings showing the actual plumbing pipe sizes and locations) - your subcontractors handle this.

icon text-secondary-400 includedEnergy calculations - handled locally when required.

Related House Plans

Plan Collection
Plan Collection
Plan Collection
Plan#126-1297
Starting at$1715
2257
Sq Ft
2
Story
3
Bed
2.5
Bath
2
Car
Plan Collection
Plan Collection
Plan Collection
Plan#198-1006
Starting at$2395
2587
Sq Ft
2
Story
3
Bed
2.5
Bath
3
Car
Plan Collection
Plan Collection
Plan Collection
Plan#117-1134
Starting at$1095
2214
Sq Ft
2
Story
3
Bed
2.5
Bath
2
Car
View All

Other Plans By This Designer

Plan Collection
Plan Collection
Plan Collection
Plan#162-1039
Starting at$1500
4219
Sq Ft
1
Story
4
Bed
3
Bath
3
Car
Plan Collection
Plan Collection
Plan Collection
Plan#162-1028
Starting at$1100
2059
Sq Ft
2
Story
3
Bed
2.5
Bath
2
Car
Plan Collection
Plan Collection
Plan Collection
Plan#162-1037
Starting at$1500
4466
Sq Ft
1
Story
4
Bed
4.5
Bath
3
Car