2-Bedroom, 2823 Sq Ft Contemporary Plan with Covered Rear Porch

Main image for house plan # 19567

Images/Plans copyrighted by designer. Photos may reflect homeowner modifications.

About House Plan #162-1058

Sq Ft
2823
Sq Ft
Bedrooms
2
Bedrooms
Bathroom
3
Baths
Half Baths
1
Half Baths
Bedrooms
3
Cars
Bedrooms
2
Stories
Bedrooms
89' 3'
Width
Bedrooms
53
Depth
Starting at$1200.00What's included
STEP 1Bedrooms
STEP 2Bedrooms
STEP 3Bedrooms

Subtotal:$0
Plan Collection

How much will it cost to build?

Estimate your costs based on your location and materials.

Free Cost Instant Estimator

Floor Plans

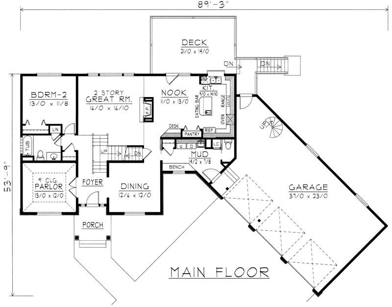
Main Floor Plan
Main Floor Plan
Second Floor Plan
Second Floor Plan
Plan Collection

Can I modify this plan?

Yes! This plan can be customized—contact us for a free quote.

House Plan Description

House Plan RDI-2823TS1-DB is a beautiful French Country with an open floor plan that still features formal areas. The parlor and dining room to the front are perfect for formal entertainment and leave the rest of the home secluded and private. The great room and kitchen areas are divided only by a grand fireplace. The mud/utility room is quite large and has a water closet. The upper floor features a lovely reading loft, a gorgeous maste suite, and a large rec room.

Home Details

Summary
Plan #:162-1058
Starting at:$1200.00
Floors:2
Bedrooms:2
Full Baths:3
Half Baths:1
Garage:
Square Footage
Heated Area:2823 Sq. Ft.
First Floor:1595 Sq. Ft.
Second Floor:1228 Sq. Ft.
Unheated Area:
Basement:1595 Sq. Ft.
Garage:993 Sq. Ft.
Dimensions
Width:89' 3''
Depth:53' 9''
Ridge Height:26'3' 0''
Architectural Styles
Exterior Wall Material
StuccoRock/Stone
Roofing Type
Hip
Roof Pitch
8/1210/12
Ceiling Height
9 Foot Ceiling8 Foot Ceiling
Special Feature
FireplaceDining Room
Garage Type
Attached GarageCourtyard Entry
Fireplaces
One Fireplace
Exterior Wall Framing
2x6

What’s Included

Most plan sets include the following:

icon text-secondary-400 includedExterior Elevations

icon text-secondary-400 includedFloor Plans

icon text-secondary-400 includedFoundation Plan

icon text-secondary-400 includedRoof Framing Plan

icon text-secondary-400 includedBuilding Sections

icon text-secondary-400 includedWall Sections

icon text-secondary-400 includedStair Detail

icon text-secondary-400 includedCabinet Elevations

icon text-secondary-400 includedNotes

icon text-secondary-400 includedElectrical Layout

icon text-secondary-400 includedDoor & Window Sizes

What’s Not Included

These items are  NOT included:

icon text-secondary-400 includedArchitectural or Engineering Stamp - handled locally if required.

icon text-secondary-400 includedSite Plan - handled locally when required.

icon text-secondary-400 includedMechanical Drawings (location of heating and air equipment and ductwork) - your subcontractors handle this.

icon text-secondary-400 includedPlumbing Drawings (drawings showing the actual plumbing pipe sizes and locations) - your subcontractors handle this.

icon text-secondary-400 includedEnergy calculations - handled locally when required.

Related House Plans

Plan Collection
Plan Collection
Plan Collection
Plan#132-1674
Starting at$1245
2275
Sq Ft
2
Story
2
Bed
3
Bath
2
Car
Plan Collection
Plan Collection
Plan Collection
Plan#134-1377
Starting at$0
2891
Sq Ft
2
Story
2
Bed
3
Bath
2
Car
Plan Collection
Plan Collection
Plan Collection
Plan#175-1225
Starting at$1350
3379
Sq Ft
2
Story
2
Bed
3.5
Bath
2
Car
View All

Other Plans By This Designer

Plan Collection
Plan Collection
Plan Collection
Plan#162-1039
Starting at$1500
4219
Sq Ft
1
Story
4
Bed
3
Bath
3
Car
Plan Collection
Plan Collection
Plan Collection
Plan#162-1028
Starting at$1100
2059
Sq Ft
2
Story
3
Bed
2.5
Bath
2
Car
Plan Collection
Plan Collection
Plan Collection
Plan#162-1037
Starting at$1500
4466
Sq Ft
1
Story
4
Bed
4.5
Bath
3
Car