Estimate your costs based on your location and materials.
Yes! This plan can be customized—contact us for a free quote.
Yes! This plan can be customized—contact us for a free quote.
PLEASE NOTE!! Mirror Reverse ONLY available if purchasing a PDF. Right Reading Reverse ONLY available if purchasing a CAD!
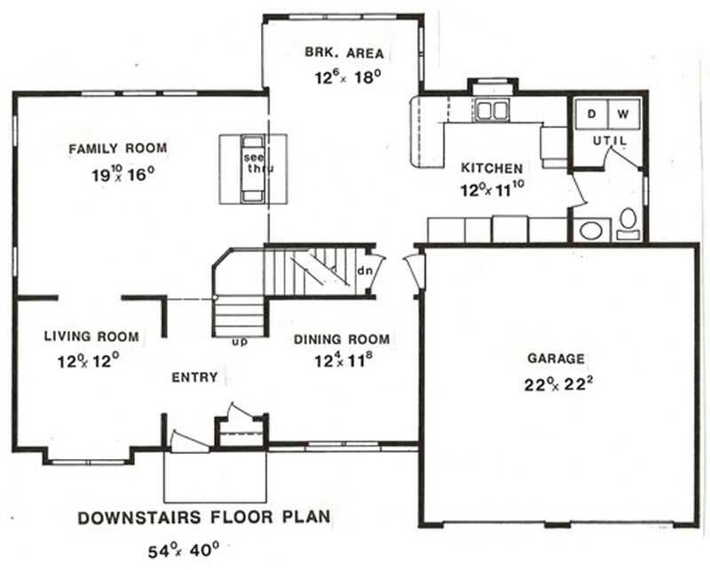
House Plan number 147-1114 is a two-story, European Style house with 2474 square feet total living area. This house plan comes with four bedrooms, two baths, a two car garage and a fireplace. On the main floor is both the living room, and the larger family room. Also on the plan's main floor is the kitchen, dining room, breakfast area, and utility closet. The house plan's second floor holds its master suite with a salon bath and walk-in closet, and the three other bedrooms.
Estimate your costs based on your location and materials.
All sales of house plans, modifications, and other products found on this site are final. No refunds or exchanges can be given once your order has begun the fulfillment process. Please see our Policies for additional information.
All plans offered on ThePlanCollection.com are designed to conform to the local building codes when and where the original plan was drawn.
The homes as shown in photographs and renderings may differ from the actual blueprints. For more detailed information, please review the floor plan images herein carefully.
Estimate your costs based on your location and materials.