4-Bedroom, 1729 Sq Ft Country Plan with Master Bathroom

Color rendering of Country home plan (ThePlanCollection: House Plan #123-1078)

Images/Plans copyrighted by designer. Photos may reflect homeowner modifications.

About House Plan #123-1078

Sq Ft
1729
Sq Ft
Bedrooms
4
Bedrooms
Bathroom
2
Baths
Half Baths
0
Half Baths
Bedrooms
2
Cars
Bedrooms
1
Stories
Bedrooms
72' 0'
Width
Bedrooms
50
Depth
Starting at$980.00What's included
STEP 1Bedrooms
STEP 2Bedrooms
STEP 3Bedrooms

Subtotal:$0
Plan Collection

How much will it cost to build?

Estimate your costs based on your location and materials.

Free Cost Instant Estimator

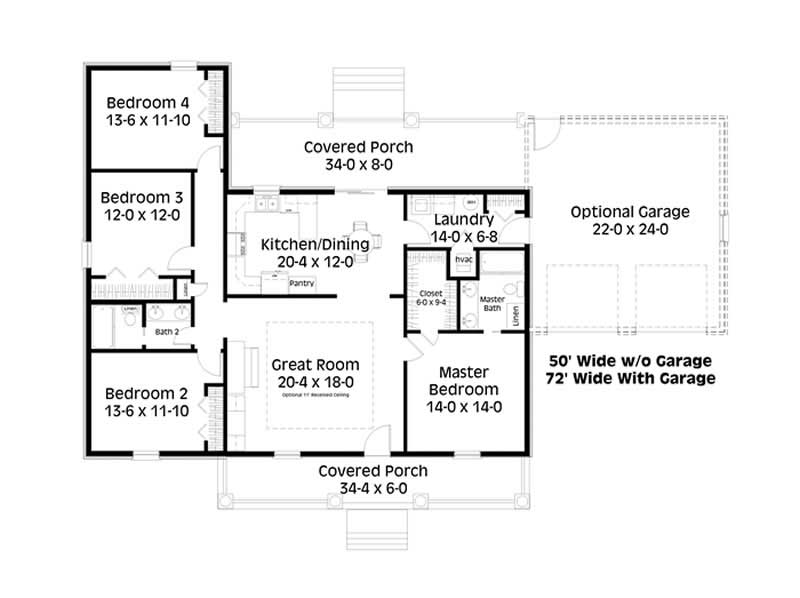
Floor Plans

Main Floor Plan
Main Floor Plan
Plan Collection

Can I modify this plan?

Yes! This plan can be customized—contact us for a free quote.

Additional Notes from Designer

PLEASE NOTE! When ordering options such as an optional foundation, RRR or 2x4 or 2x6 conversions, the designer may require an additional 2-5 business days to create it. Please keep this in mind when ordering.

House Plan Description

This lovely Country style home plan with Ranch influences (House Plan #123-1078) has 1729 square feet of living space. The 1 story floor plan includes 4 bedrooms and 2 bathrooms.

The kitchen has immediate access to the rear covered porch. The two car garage is optional, offering versatility.

Home Details

Summary
Plan #:123-1078
Starting at:$980.00
Floors:1
Bedrooms:4
Full Baths:2
Half Baths:0
Garage:
Square Footage
Heated Area:1729 Sq. Ft.
First Floor:1729 Sq. Ft.
Unheated Area:
Dimensions
Ridge Height:25'' 0''
Architectural Styles
Exterior Wall Material
BrickStucco
Roofing Type
Gable
Roofing Material
Asphalt Shingles
Roof Pitch
8/12
Special Feature
Mud RoomFamily RoomMain Level LaundryOpen Floor Plan
Garage Type
Attached GarageFront Entry
Exterior Wall Framing
2x6
Building Lot Type
Flat Site
Kitchen Features
Kitchen IslandNook/Breakfast AreaEat-In Kitchen
Porches and Exterior Features
Covered Front PorchCovered Rear Porch
Master Suite Features
Main Floor MasterMaster BathroomWalk In ClosetSplit Master Bedroom

What’s Included

Most plan sets include the following:

icon text-secondary-400 includedFloor plans - Included with your plans will be a detailed floor plan at 1/4" scale with a window and door schedule.

icon text-secondary-400 includedFoundation

icon text-secondary-400 includedElectrical Layout

icon text-secondary-400 includedExterior and Interior Elevations

icon text-secondary-400 includedBuilding Sections

icon text-secondary-400 includedDetails and Typical Specifications

icon text-secondary-400 includedSheet

What’s Not Included

These items are  NOT included:

icon text-secondary-400 includedArchitectural or Engineering Stamp - handled locally if required.

icon text-secondary-400 includedSite Plan - handled locally when required.

icon text-secondary-400 includedMechanical Drawings (location of heating and air equipment and ductwork) - your subcontractors handle this.

icon text-secondary-400 includedPlumbing Drawings (drawings showing the actual plumbing pipe sizes and locations) - your subcontractors handle this.

icon text-secondary-400 includedEnergy calculations - handled locally when required.

Related House Plans

Plan Collection
Plan Collection
Plan Collection
Plan#142-1078
Starting at$1295
1798
Sq Ft
1
Story
4
Bed
2
Bath
2
Car
Plan Collection
Plan Collection
Plan Collection
Plan#153-1440
Starting at$1100
1965
Sq Ft
1
Story
4
Bed
2
Bath
2
Car
Plan Collection
Plan Collection
Plan Collection
Plan#150-1008
Starting at$1345
1938
Sq Ft
1
Story
4
Bed
2
Bath
2
Car
View All

Other Plans By This Designer

Plan Collection
Plan Collection
Plan Collection
Plan#123-1112
Starting at$980
1611
Sq Ft
1
Story
3
Bed
2
Bath
2
Car
Plan Collection
Plan Collection
Plan Collection
Plan#123-1100
Starting at$850
1311
Sq Ft
1
Story
3
Bed
2
Bath
0
Car
Plan Collection
Plan Collection
Plan Collection
Plan#123-1116
Starting at$850
1035
Sq Ft
1
Story
3
Bed
2
Bath
0
Car