4-Bedroom, 3583 Sq Ft Southwest Plan with Walk In Closet

Main image for house plan # 19772

Images/Plans copyrighted by designer. Photos may reflect homeowner modifications.

About House Plan #125-1161

Sq Ft
3583
Sq Ft
Bedrooms
4
Bedrooms
Bathroom
2
Baths
Half Baths
0
Half Baths
Bedrooms
3
Cars
Bedrooms
1
Stories
Bedrooms
89' 0'
Width
Bedrooms
72
Depth
Starting at$2687.25What's included
STEP 1Bedrooms
STEP 2Bedrooms
STEP 3Bedrooms

Subtotal:$0
Plan Collection

How much will it cost to build?

Estimate your costs based on your location and materials.

Free Cost Instant Estimator

Floor Plans

FLOOR PLAN
FLOOR PLAN
Plan Collection

Can I modify this plan?

Yes! This plan can be customized—contact us for a free quote.

House Plan Description

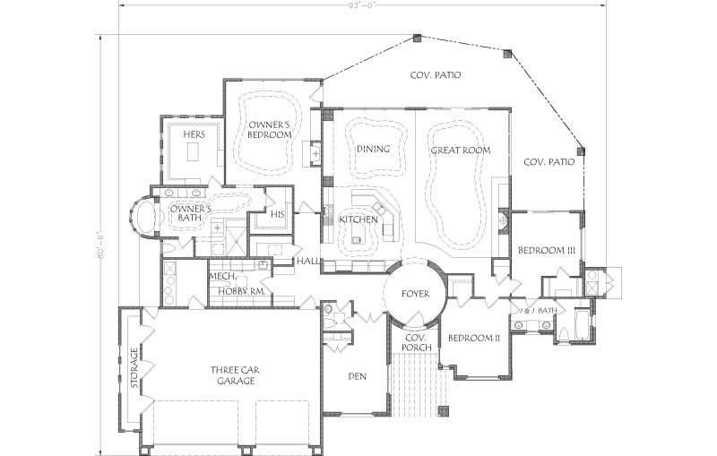
The Snow Canyon is the epitome of the Southwest, Spanish house plan style. This single story home plan has 4 bedrooms, 2 bathrooms, and a 3 car garage all in 3583 total living square feet. As you enter this beautiful house plan you come into the circular foyer. Ahead is the large dining and great rooms as well as the kitchen. The left wing of the house plan has the master bedroom and bath as well as a hobby/mech. room. The right wing of the house has the other 2 bedrooms. This plan is a home filled with character, ranging from the beautiful stucco and rock/stone exterior to the magnificent...

Home Details

Summary
Plan #:125-1161
Starting at:$2687.25
Floors:1
Bedrooms:4
Full Baths:2
Half Baths:0
Garage:
Square Footage
Heated Area:3583 Sq. Ft.
First Floor:3583 Sq. Ft.
Unheated Area:
Garage:1024 Sq. Ft.
Dimensions
Architectural Styles
Exterior Wall Material
StuccoRock/Stone
Roof Pitch
Other
Ceiling Height
9 Foot Ceiling
Exterior Wall Framing
2x4

What’s Included

Most plan sets include the following:

icon text-secondary-400 includedFLOOR PLAN: Showing all dimensions, window and door locations, laminated beams, columns, floor materials, ceiling heights, fireplace size, and specifications.

icon text-secondary-400 includedFOUNDATION PLAN: Dimensioned plan detailing the location and size of footings, slabs, reinforcing steel, and other structural elements that are required to support the load of the upper floors.

icon text-secondary-400 includedELECTRICAL LAYOUT:Specifications, notes, schedules, and plan defining the location of panels, service, lighting fixtures, switches, outlets, fans, etc.

icon text-secondary-400 includedFRONT, REAR, AND SIDE ELEVATIONS:The front, rear, and side elevations of the house as drawn. Shows placement of doors & windows on exterior of house, as well as roof pitches, ridge heights, and locations of chimney, exterior vents, etc. The elevations show the positioning of the final grade of the lot, exterior finishes, and other details that are necessary to give the home exterior architectural styling.

icon text-secondary-400 includedDETAIL SHEET

What’s Not Included

These items are  NOT included:

icon text-secondary-400 includedArchitectural or Engineering Stamp - handled locally if required.

icon text-secondary-400 includedSite Plan - handled locally when required.

icon text-secondary-400 includedMechanical Drawings (location of heating and air equipment and ductwork) - your subcontractors handle this.

icon text-secondary-400 includedPlumbing Drawings (drawings showing the actual plumbing pipe sizes and locations) - your subcontractors handle this.

icon text-secondary-400 includedEnergy calculations - handled locally when required.

Related House Plans

Plan Collection
Plan Collection
Plan Collection
Plan#119-1036
Starting at$1145
2710
Sq Ft
1
Story
4
Bed
2.5
Bath
2
Car
Plan Collection
Plan Collection
Plan Collection
Plan#125-1038
Starting at$0
2743
Sq Ft
1
Story
4
Bed
2.5
Bath
3
Car
View All

Other Plans By This Designer

Plan Collection
Plan Collection
Plan Collection
Plan#125-1010
Starting at$0
3340
Sq Ft
2
Story
6
Bed
3
Bath
3
Car
Plan Collection
Plan Collection
Plan Collection
Plan#125-1033
Starting at$0
3667
Sq Ft
1
Story
5
Bed
4.5
Bath
3
Car
Plan Collection
Plan Collection
Plan Collection
Plan#125-1043
Starting at$0
1812
Sq Ft
1
Story
4
Bed
2
Bath
3
Car