4-Bedroom, 2226 Sq Ft Country Plan with Main Floor Master

Main image for house plan # 20089

Images/Plans copyrighted by designer. Photos may reflect homeowner modifications.

About House Plan #131-1118

Sq Ft
2226
Sq Ft
Bedrooms
4
Bedrooms
Bathroom
2
Baths
Half Baths
1
Half Baths
Bedrooms
2
Cars
Bedrooms
1
Stories
Bedrooms
62' 0'
Width
Bedrooms
50
Depth
Starting at$950.00What's included
STEP 1Bedrooms
STEP 2Bedrooms
STEP 3Bedrooms

Subtotal:$0
Plan Collection

How much will it cost to build?

Estimate your costs based on your location and materials.

Free Cost Instant Estimator

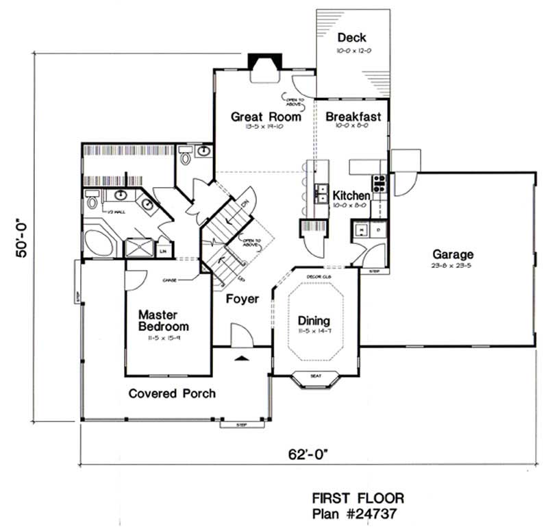
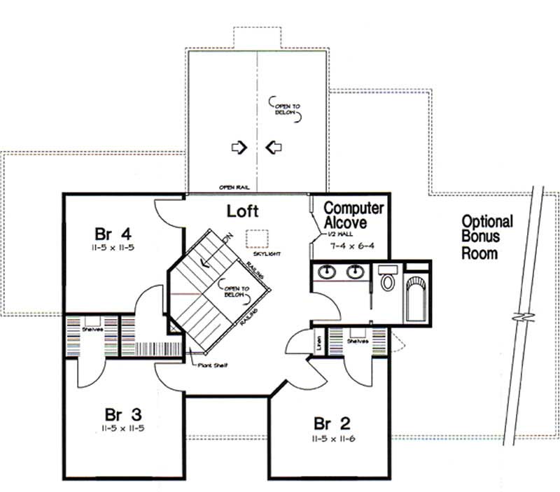
Floor Plans

MAIN LEVEL FLOOR PLAN
MAIN LEVEL FLOOR PLAN
SECOND LEVEL FLOOR PLAN
SECOND LEVEL FLOOR PLAN
Plan Collection

Can I modify this plan?

Yes! This plan can be customized—contact us for a free quote.

House Plan Description

The GAR-24737 home plan is a single story, Southern Country, Style house plan with 2226 total living square feet. This home plan has 4 bedrooms, 2 bathrooms, and a 2 car garage. The main floor plan has the great room, the master bedroom, dining room, and a deck coming off of the great room. The upper level plan has 3 bedrooms, a loft, and a computer alcove.

Home Details

Summary
Plan #:131-1118
Starting at:$950.00
Floors:1
Bedrooms:4
Full Baths:2
Half Baths:1
Garage:
Square Footage
Heated Area:2226 Sq. Ft.
First Floor:1368 Sq. Ft.
Second Floor:858 Sq. Ft.
Unheated Area:
Bonus Room:550 Sq. Ft.
Garage:523 Sq. Ft.
Dimensions
Ridge Height:27'6' 0''
Architectural Styles
Exterior Wall Material
Vinyl Siding
Roofing Type
Gable
Roof Pitch
10/12
Ceiling Height
8 Foot Ceiling
Garage Type
Attached GarageSide Entry
Fireplaces
One Fireplace
Exterior Wall Framing
2x4

What’s Included

Most plan sets include the following:

icon text-secondary-400 includedExterior elevations

icon text-secondary-400 includedFoundation plans

icon text-secondary-400 includedInterior elevations

icon text-secondary-400 includedElectrical layout

icon text-secondary-400 includedDetailed house floor plans

What’s Not Included

These items are  NOT included:

icon text-secondary-400 includedArchitectural or Engineering Stamp - handled locally if required.

icon text-secondary-400 includedSite Plan - handled locally when required.

icon text-secondary-400 includedMechanical Drawings (location of heating and air equipment and ductwork) - your subcontractors handle this.

icon text-secondary-400 includedPlumbing Drawings (drawings showing the actual plumbing pipe sizes and locations) - your subcontractors handle this.

icon text-secondary-400 includedEnergy calculations - handled locally when required.

Related House Plans

Plan Collection
Plan Collection
Plan Collection
Plan#142-1170
Starting at$1395
2641
Sq Ft
1
Story
4
Bed
2.5
Bath
2
Car
Plan Collection
Plan Collection
Plan Collection
Plan#142-1204
Starting at$1345
2373
Sq Ft
1
Story
4
Bed
2.5
Bath
2
Car
Plan Collection
Plan Collection
Plan Collection
Plan#141-1148
Starting at$1570
2200
Sq Ft
1
Story
4
Bed
2.5
Bath
2
Car
View All

Other Plans By This Designer

Plan Collection
Plan Collection
Plan Collection
Plan#131-1013
Starting at$900
2083
Sq Ft
2
Story
3
Bed
2.5
Bath
2
Car
Plan Collection
Plan Collection
Plan Collection
Plan#131-1047
Starting at$800
1792
Sq Ft
1
Story
3
Bed
2
Bath
0
Car
Plan Collection
Plan Collection
Plan Collection
Plan#131-1243
Starting at$600
972
Sq Ft
2
Story
3
Bed
1
Bath
0
Car