Estimate your costs based on your location and materials.
Yes! This plan can be customized—contact us for a free quote.
Yes! This plan can be customized—contact us for a free quote.
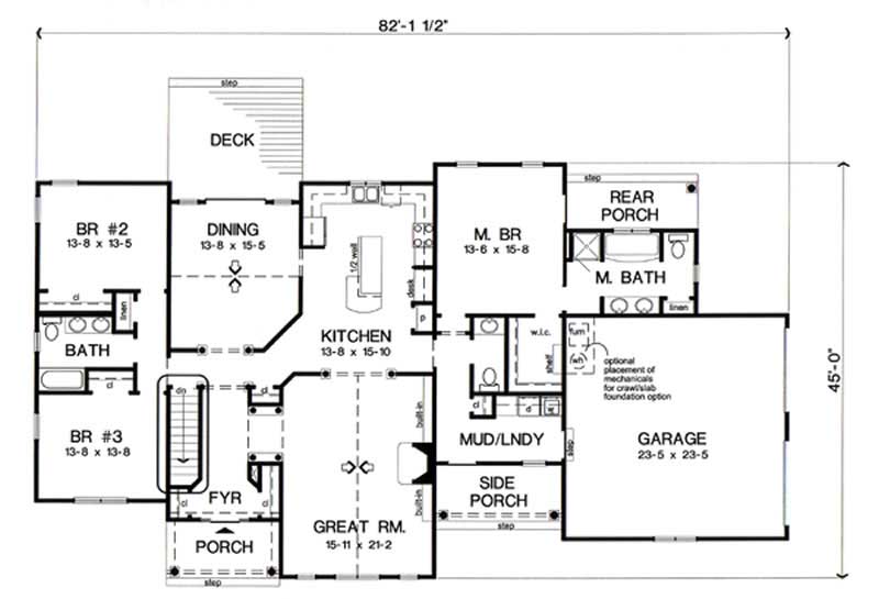
A trio of peaked roofs and arched front entry with matching windows draw folks inside, where it’s almost too dreamy to leave. That’s the allure of design #24748. The 2161-sq.-ft. interior delivers cathedral ceilings in the great room (with fireplace) and dining room (with rear-deck access). A huge kitchen features a central island for casual meals. The master bedroom, intimately located on one side of the house, enjoys a private porch, and spa-style bath with double sinks. Two secondary bedrooms snuggle up to a second full bath. Powder room, laundry area, and two-car garage work hard for...
Estimate your costs based on your location and materials.
All sales of house plans, modifications, and other products found on this site are final. No refunds or exchanges can be given once your order has begun the fulfillment process. Please see our Policies for additional information.
All plans offered on ThePlanCollection.com are designed to conform to the local building codes when and where the original plan was drawn.
The homes as shown in photographs and renderings may differ from the actual blueprints. For more detailed information, please review the floor plan images herein carefully.
Estimate your costs based on your location and materials.