3-Bedroom, 3048 Sq Ft Colonial Plan with Dining Room

Front view of Colonial home (ThePlanCollection: House Plan #146-1961)

Images/Plans copyrighted by designer. Photos may reflect homeowner modifications.

About House Plan #146-1961

Sq Ft
3048
Sq Ft
Bedrooms
3
Bedrooms
Bathroom
2
Baths
Half Baths
1
Half Baths
Bedrooms
2
Cars
Bedrooms
2
Stories
Bedrooms
66' 0'
Width
Bedrooms
46
Depth
Starting at$1213.25What's included
STEP 1Bedrooms
STEP 2Bedrooms
STEP 3Bedrooms

Subtotal:$0
Plan Collection

How much will it cost to build?

Estimate your costs based on your location and materials.

Free Cost Instant Estimator

Floor Plans

Main Level
Main Level
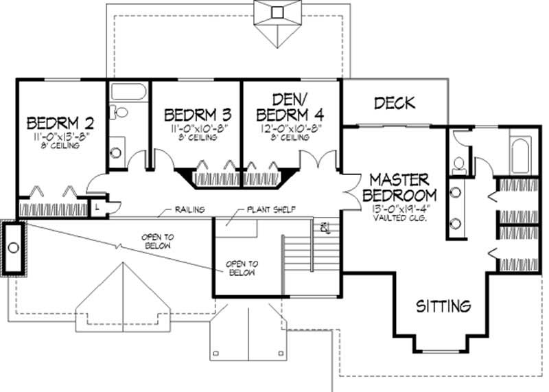
Upper Level
Upper Level
Plan Collection

Can I modify this plan?

Yes! This plan can be customized—contact us for a free quote.

House Plan Description

Entering through the friendly covered porch, the open foyer steps down to a vaulted, sunken living room and its glowing fireplace. The galley kitchen efficiently divides the family room and dining room, while a sunny breakfast nook passes through to a huge deck. Luxury abounds in the upstairs master bedroom which includes a deck, a sitting area and a skylighted master bath. Three additional bedrooms allow you to convert one into a den.

Home Details

Summary
Plan #:146-1961
Starting at:$1213.25
Floors:2
Bedrooms:3
Full Baths:2
Half Baths:1
Garage:
Square Footage
Heated Area:3048 Sq. Ft.
First Floor:1640 Sq. Ft.
Second Floor:1408 Sq. Ft.
Unheated Area:
Basement:1481 Sq. Ft.
Dimensions
Ridge Height:26-0' 0''
Architectural Styles
Exterior Wall Material
Rock/StoneWood Siding
Roofing Type
Gable
Special Feature
FireplaceDining RoomFamily Room
Garage Type
Attached GarageFront Entry
Fireplaces
Two Fireplaces
Exterior Wall Framing
2x4

What’s Included

Most plan sets include the following:

What’s Not Included

These items are  NOT included:

icon text-secondary-400 includedArchitectural or Engineering Stamp - handled locally if required.

icon text-secondary-400 includedSite Plan - handled locally when required.

icon text-secondary-400 includedMechanical Drawings (location of heating and air equipment and ductwork) - your subcontractors handle this.

icon text-secondary-400 includedPlumbing Drawings (drawings showing the actual plumbing pipe sizes and locations) - your subcontractors handle this.

icon text-secondary-400 includedEnergy calculations - handled locally when required.

Related House Plans

Plan Collection
Plan Collection
Plan Collection
Plan#198-1006
Starting at$2395
2587
Sq Ft
2
Story
3
Bed
2.5
Bath
3
Car
Plan Collection
Plan Collection
Plan Collection
Plan#165-1090
Starting at$2050
3289
Sq Ft
2
Story
3
Bed
2.5
Bath
3
Car
Plan Collection
Plan Collection
Plan Collection
Plan#117-1117
Starting at$1345
2984
Sq Ft
2
Story
3
Bed
2.5
Bath
3
Car
View All

Other Plans By This Designer

Plan Collection
Plan Collection
Plan Collection
Plan#146-2806
Starting at$980
1933
Sq Ft
2
Story
3
Bed
2
Bath
0
Car
Plan Collection
Plan Collection
Plan Collection
Plan#146-2810
Starting at$1285
3594
Sq Ft
2
Story
4
Bed
3.5
Bath
2
Car
Plan Collection
Plan Collection
Plan Collection
Plan#146-1917
Starting at$1120
2525
Sq Ft
2
Story
4
Bed
2.5
Bath
3
Car