2-Bedroom, 1726 Sq Ft European Plan with Wrap Around Porch

Front view of European home (ThePlanCollection: House Plan #146-1877)

Images/Plans copyrighted by designer. Photos may reflect homeowner modifications.

About House Plan #146-1877

Sq Ft
1726
Sq Ft
Bedrooms
2
Bedrooms
Bathroom
2
Baths
Half Baths
1
Half Baths
Bedrooms
3
Cars
Bedrooms
1
Stories
Bedrooms
72' 0'
Width
Bedrooms
65
Depth
Starting at$980.00What's included
STEP 1Bedrooms
STEP 2Bedrooms
STEP 3Bedrooms

Subtotal:$0
Plan Collection

How much will it cost to build?

Estimate your costs based on your location and materials.

Free Cost Instant Estimator

Floor Plans

Basement
Basement
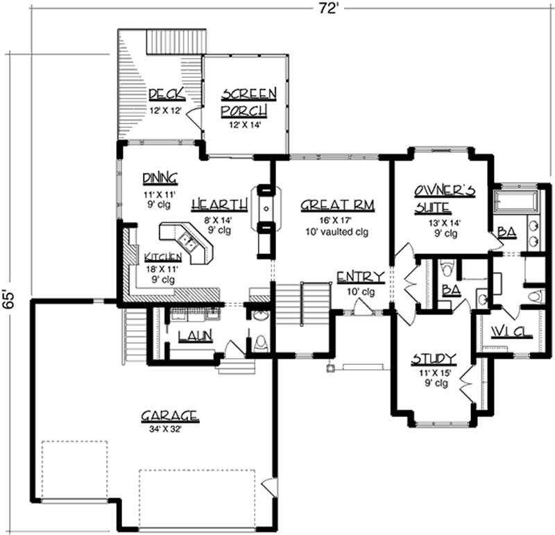
Main Level
Main Level
Plan Collection

Can I modify this plan?

Yes! This plan can be customized—contact us for a free quote.

House Plan Description

Comfortable living spaces such as a cozy study and a warm hearth room make this design one you'll love to come home to. A spacious Great Room with a vaulted ceiling and a wall windows dazzles the main floor, and shares a two-way fireplace with the hearth room. Strategically located, the hearth room adjoins both the dining room and kitchen--let a crackling fire warm the ambience of any of your evening meals. The master suite basks in seclusion on the opposite corner of the home, and boasts a pampering whirlpool tub and a sizable walk-in closet.

Home Details

Summary
Plan #:146-1877
Starting at:$980.00
Floors:1
Bedrooms:2
Full Baths:2
Half Baths:1
Garage:
Square Footage
Heated Area:1726 Sq. Ft.
First Floor:1726 Sq. Ft.
Unheated Area:
Basement:1636 Sq. Ft.
Garage:1088 Sq. Ft.
Dimensions
Ridge Height:21-0' 0''
Architectural Styles
Exterior Wall Material
Rock/StoneWood Siding
Roofing Type
Hip
Roof Pitch
9/12
Ceiling Height
10 Foot Ceiling
Special Feature
FireplaceDining RoomColor Photos
Garage Type
Attached GarageFront Entry
Fireplaces
One Fireplace
Exterior Wall Framing
2x6

What’s Included

Most plan sets include the following:

What’s Not Included

These items are  NOT included:

icon text-secondary-400 includedArchitectural or Engineering Stamp - handled locally if required.

icon text-secondary-400 includedSite Plan - handled locally when required.

icon text-secondary-400 includedMechanical Drawings (location of heating and air equipment and ductwork) - your subcontractors handle this.

icon text-secondary-400 includedPlumbing Drawings (drawings showing the actual plumbing pipe sizes and locations) - your subcontractors handle this.

icon text-secondary-400 includedEnergy calculations - handled locally when required.

Related House Plans

Plan Collection
Plan Collection
Plan Collection
Plan#187-1055
Starting at$1150
1875
Sq Ft
1
Story
2
Bed
2
Bath
2
Car
Plan Collection
Plan Collection
Plan Collection
Plan#153-1789
Starting at$700
1426
Sq Ft
1
Story
2
Bed
2
Bath
2
Car
Plan Collection
Plan Collection
Plan Collection
Plan#101-1841
Starting at$975
1568
Sq Ft
1
Story
2
Bed
2
Bath
3
Car
View All

Other Plans By This Designer

Plan Collection
Plan Collection
Plan Collection
Plan#146-2806
Starting at$980
1933
Sq Ft
2
Story
3
Bed
2
Bath
0
Car
Plan Collection
Plan Collection
Plan Collection
Plan#146-2810
Starting at$1285
3594
Sq Ft
2
Story
4
Bed
3.5
Bath
2
Car
Plan Collection
Plan Collection
Plan Collection
Plan#146-1917
Starting at$1120
2525
Sq Ft
2
Story
4
Bed
2.5
Bath
3
Car

By Architectural Style

By Feature

By Region