4-Bedroom, 2185 Sq Ft Contemporary Plan with Walk In Closet

Main image for house plan # 2059

Images/Plans copyrighted by designer. Photos may reflect homeowner modifications.

About House Plan #119-1063

Sq Ft
2185
Sq Ft
Bedrooms
4
Bedrooms
Bathroom
2
Baths
Half Baths
1
Half Baths
Bedrooms
2
Cars
Bedrooms
2
Stories
Bedrooms
59' 0'
Width
Bedrooms
38
Depth
Starting at$1095.00What's included
STEP 1Bedrooms
STEP 2Bedrooms
STEP 3Bedrooms

Subtotal:$0
Plan Collection

How much will it cost to build?

Estimate your costs based on your location and materials.

Free Cost Instant Estimator

Floor Plans

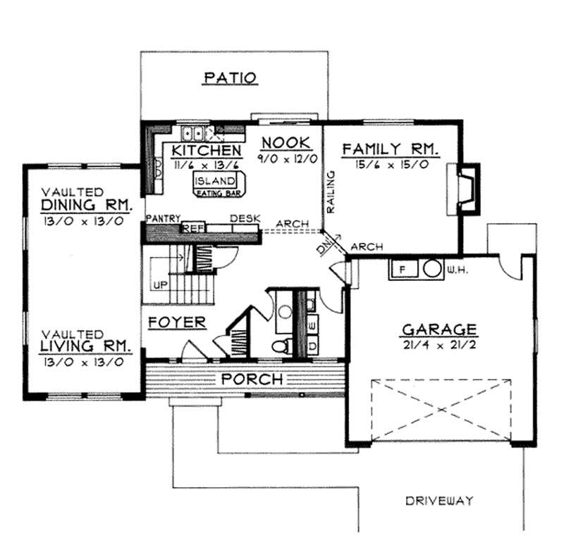
Main Floor Plan
Main Floor Plan
Upper Floor Plan
Upper Floor Plan
Plan Collection

Can I modify this plan?

Yes! This plan can be customized—contact us for a free quote.

House Plan Description

Covered front porch. Suited for view lot. Volume/vaulted ceiling, family room, kitchen island, peninsula/eating bar, nook/breakfast area, formal dining room, and walk-in closet.

Home Details

Summary
Plan #:119-1063
Starting at:$1095.00
Floors:2
Bedrooms:4
Full Baths:2
Half Baths:1
Garage:
Square Footage
Heated Area:2185 Sq. Ft.
First Floor:1247 Sq. Ft.
Second Floor:938 Sq. Ft.
Unheated Area:
Dimensions
Ridge Height:26' 0''
Architectural Styles
Roofing Type
GableHip
Roofing Material
Asphalt Shingles
Special Feature
Dining RoomFamily Room
Garage Type
Attached Garage
Kitchen Features
Kitchen IslandNook/Breakfast AreaPeninsula/Eating Bar
Porches and Exterior Features
Covered Front Porch

What’s Included

Most plan sets include the following:

icon text-secondary-400 includedFLOOR PLAN: Showing all dimensions, window and door locations, laminated beams, columns, floor materials, ceiling heights, fireplace size, and specifications.

icon text-secondary-400 includedFOUNDATION PLAN: Dimensioned plan detailing the location and size of footings, slabs, reinforcing steel, and other structural elements that are required to support the load of the upper floors.

icon text-secondary-400 includedROOF PLAN: Dimensioned plan showing the elements that make up the roof, including notation of spacing and schematics of peaks and valleys.

icon text-secondary-400 includedELECTRICAL PLAN:Specifications, notes, schedules, and plan defining the location of panels, service, lighting fixtures, switches, outlets, fans, etc. NOTE – PLEASE VERIFY

icon text-secondary-400 includedFRONT, REAR, AND SIDE ELEVATIONS:The front, rear, and side elevations of the house as drawn. Shows placement of doors & windows on exterior of house, as well as roof pitches, ridge heights, and locations of chimney, exterior vents, etc. The elevations show the positioning of the final grade of the lot, exterior finishes, and other details that are necessary to give the home exterior architectural styling.

icon text-secondary-400 includedCROSS SECTIONS AND INTERIOR DETAILS:Explain certain special conditions more appropriately. A cross section is basically a view of the home (or parts of the home) if it were sliced down the center. These details can be helpful for the contractor.

icon text-secondary-400 includedFRONT PERSPECTIVE: Artist’s sketch to provide an idea of what the house would look like once built and landscaped.

What’s Not Included

These items are  NOT included:

icon text-secondary-400 includedArchitectural or Engineering Stamp - handled locally if required.

icon text-secondary-400 includedSite Plan - handled locally when required.

icon text-secondary-400 includedMechanical Drawings (location of heating and air equipment and duct work) - your subcontractors handle this.

icon text-secondary-400 includedPlumbing Drawings (drawings showing the actual plumbing pipe sizes and locations) - your subcontractors handle this.

icon text-secondary-400 includedEnergy calculations - handled locally when required.

Related House Plans

Plan Collection
Plan Collection
Plan Collection
Plan#116-1023
Starting at$0
2592
Sq Ft
2
Story
4
Bed
2.5
Bath
2
Car
Plan Collection
Plan Collection
Plan Collection
Plan#116-1038
Starting at$0
2690
Sq Ft
2
Story
4
Bed
2.5
Bath
2
Car
Plan Collection
Plan Collection
Plan Collection
Plan#126-1830
Starting at$1820
2142
Sq Ft
2
Story
4
Bed
2.5
Bath
2
Car
View All

Other Plans By This Designer

Plan Collection
Plan Collection
Plan Collection
Plan#119-1000
Starting at$1045
1557
Sq Ft
2
Story
3
Bed
2
Bath
0
Car
Plan Collection
Plan Collection
Plan Collection
Plan#119-1186
Starting at$995
983
Sq Ft
1
Story
3
Bed
2
Bath
2
Car
Plan Collection
Plan Collection
Plan Collection
Plan#119-1050
Starting at$995
1143
Sq Ft
1.5
Story
3
Bed
3
Bath
2
Car