4-Bedroom, 3114 Sq Ft European Plan with Kitchen Island

Front view of European home (ThePlanCollection: House Plan #146-1901)

Images/Plans copyrighted by designer. Photos may reflect homeowner modifications.

About House Plan #146-1901

Sq Ft
3114
Sq Ft
Bedrooms
4
Bedrooms
Bathroom
4
Baths
Half Baths
0
Half Baths
Bedrooms
3
Cars
Bedrooms
2
Stories
Bedrooms
65' 0'
Width
Bedrooms
63
Depth
Starting at$1213.25What's included
STEP 1Bedrooms
STEP 2Bedrooms
STEP 3Bedrooms

Subtotal:$0
Plan Collection

How much will it cost to build?

Estimate your costs based on your location and materials.

Free Cost Instant Estimator

Floor Plans

Main Level
Main Level
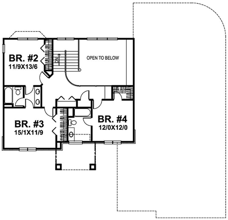
Upper Level
Upper Level
Plan Collection

Can I modify this plan?

Yes! This plan can be customized—contact us for a free quote.

House Plan Description

A pair of columns stands tall in front of this distingished home. But don't be fooled by the elegant outside: The interior is as livable as it is attractive. The daily grind won't seem so mundane in the kitchen, the breakfast room and the bright family room, since the open layout encourages togetherness. Across the home, the master suite is a hidden treasure. A bay window includes sliding glass doors that open to the deck, and the private bath features a dual-sink vanity, an oval tub and a separate shower.

Home Details

Summary
Plan #:146-1901
Starting at:$1213.25
Floors:2
Bedrooms:4
Full Baths:4
Half Baths:0
Garage:
Square Footage
Heated Area:3114 Sq. Ft.
First Floor:2226 Sq. Ft.
Second Floor:888 Sq. Ft.
Unheated Area:
Basement:2226 Sq. Ft.
Garage:710 Sq. Ft.
Dimensions
Ridge Height:27-0' 0''
Architectural Styles
Exterior Wall Material
Stucco
Roofing Type
Hip
Roof Pitch
6/12
Special Feature
Family Room
Garage Type
Attached GarageFront Entry
Fireplaces
One Fireplace
Exterior Wall Framing
2x4

What’s Included

Most plan sets include the following:

What’s Not Included

These items are  NOT included:

icon text-secondary-400 includedArchitectural or Engineering Stamp - handled locally if required.

icon text-secondary-400 includedSite Plan - handled locally when required.

icon text-secondary-400 includedMechanical Drawings (location of heating and air equipment and ductwork) - your subcontractors handle this.

icon text-secondary-400 includedPlumbing Drawings (drawings showing the actual plumbing pipe sizes and locations) - your subcontractors handle this.

icon text-secondary-400 includedEnergy calculations - handled locally when required.

Related House Plans

Plan Collection
Plan Collection
Plan Collection
Plan#142-1140
Starting at$1545
3360
Sq Ft
2
Story
4
Bed
4.5
Bath
3
Car
Plan Collection
Plan Collection
Plan Collection
Plan#106-1292
Starting at$1695
3302
Sq Ft
2
Story
4
Bed
4.5
Bath
5
Car
Plan Collection
Plan Collection
Plan Collection
Plan#136-1030
Starting at$2250
3716
Sq Ft
2
Story
4
Bed
4.5
Bath
3
Car
View All

Other Plans By This Designer

Plan Collection
Plan Collection
Plan Collection
Plan#146-2806
Starting at$980
1933
Sq Ft
2
Story
3
Bed
2
Bath
0
Car
Plan Collection
Plan Collection
Plan Collection
Plan#146-2810
Starting at$1285
3594
Sq Ft
2
Story
4
Bed
3.5
Bath
2
Car
Plan Collection
Plan Collection
Plan Collection
Plan#146-1917
Starting at$1120
2525
Sq Ft
2
Story
4
Bed
2.5
Bath
3
Car