4-Bedroom, 3190 Sq Ft Colonial Plan with Nook/Breakfast Area

Front view of Colonial home (ThePlanCollection: House Plan #146-2006)

Images/Plans copyrighted by designer. Photos may reflect homeowner modifications.

About House Plan #146-2006

Sq Ft
3190
Sq Ft
Bedrooms
4
Bedrooms
Bathroom
3
Baths
Half Baths
1
Half Baths
Bedrooms
3
Cars
Bedrooms
2
Stories
Bedrooms
66' 0'
Width
Bedrooms
90
Depth
Starting at$1213.25What's included
STEP 1Bedrooms
STEP 2Bedrooms
STEP 3Bedrooms

Subtotal:$0
Plan Collection

How much will it cost to build?

Estimate your costs based on your location and materials.

Free Cost Instant Estimator

Floor Plans

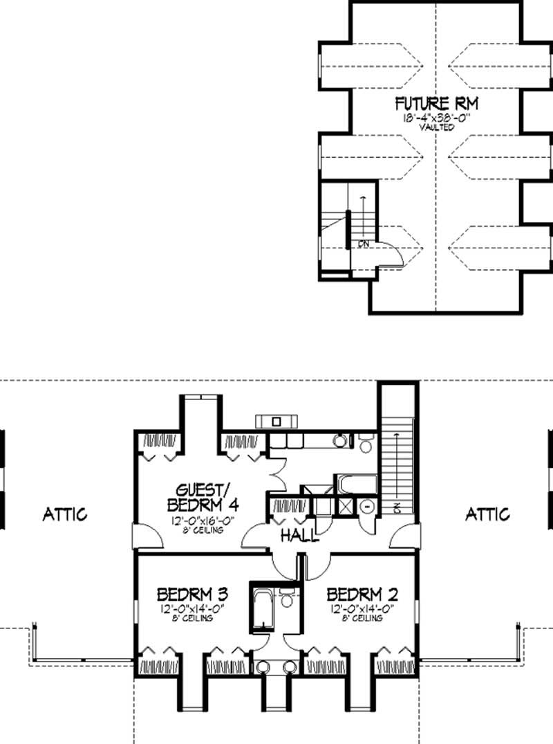
Main Level
Main Level
Upper Level
Upper Level
Plan Collection

Can I modify this plan?

Yes! This plan can be customized—contact us for a free quote.

House Plan Description

When friends and family hear about your home's extraordinary deck, which features a fun hot tub, your place will become a popular gathering spot. Inside, the formal living and dining rooms flank the entry, allowing easy flow between cocktails and dinner when you entertain. Casual daily activities also have a place of their own, in the huge family room at the rear of the home.

Home Details

Summary
Plan #:146-2006
Starting at:$1213.25
Floors:2
Bedrooms:4
Full Baths:3
Half Baths:1
Garage:
Square Footage
Heated Area:3190 Sq. Ft.
First Floor:2152 Sq. Ft.
Second Floor:1038 Sq. Ft.
Unheated Area:
Dimensions
Ridge Height:28-0' 0''
Architectural Styles
Exterior Wall Material
BrickWood Siding
Roofing Type
Gable
Special Feature
Dining RoomFamily Room
Garage Type
Attached GarageFront Entry
Fireplaces
One Fireplace
Exterior Wall Framing
2x6

What’s Included

Most plan sets include the following:

What’s Not Included

These items are  NOT included:

icon text-secondary-400 includedArchitectural or Engineering Stamp - handled locally if required.

icon text-secondary-400 includedSite Plan - handled locally when required.

icon text-secondary-400 includedMechanical Drawings (location of heating and air equipment and ductwork) - your subcontractors handle this.

icon text-secondary-400 includedPlumbing Drawings (drawings showing the actual plumbing pipe sizes and locations) - your subcontractors handle this.

icon text-secondary-400 includedEnergy calculations - handled locally when required.

Related House Plans

Plan Collection
Plan Collection
Plan Collection
Plan#161-1067
Starting at$2400
3897
Sq Ft
2
Story
4
Bed
3.5
Bath
3
Car
Plan Collection
Plan Collection
Plan Collection
Plan#120-2176
Starting at$1255
3124
Sq Ft
2
Story
4
Bed
3.5
Bath
2
Car
Plan Collection
Plan Collection
Plan Collection
Plan#109-1191
Starting at$1495
2909
Sq Ft
2
Story
4
Bed
3.5
Bath
0
Car
View All

Other Plans By This Designer

Plan Collection
Plan Collection
Plan Collection
Plan#146-2806
Starting at$980
1933
Sq Ft
2
Story
3
Bed
2
Bath
0
Car
Plan Collection
Plan Collection
Plan Collection
Plan#146-2810
Starting at$1285
3594
Sq Ft
2
Story
4
Bed
3.5
Bath
2
Car
Plan Collection
Plan Collection
Plan Collection
Plan#146-1917
Starting at$1120
2525
Sq Ft
2
Story
4
Bed
2.5
Bath
3
Car