3-Bedroom Texas Style Home Plan with Peninsula/Eating Bar

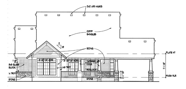
Front elevation of Texas Style home (ThePlanCollection: House Plan #117-1001)

Images/Plans copyrighted by designer. Photos may reflect homeowner modifications.

About House Plan #117-1001

Sq Ft
1657
Sq Ft
Bedrooms
3
Bedrooms
Bathroom
2
Baths
Half Baths
0
Half Baths
Bedrooms
2
Cars
Bedrooms
1
Stories
Bedrooms
48' 0'
Width
Bedrooms
58
Depth
Starting at$895.00What's included
STEP 1Bedrooms
STEP 2Bedrooms
STEP 3Bedrooms

Subtotal:$0
Plan Collection

How much will it cost to build?

Estimate your costs based on your location and materials.

Free Cost Instant Estimator

Floor Plans

Main Floor Plan
Main Floor Plan
Plan Collection

Can I modify this plan?

Yes! This plan can be customized—contact us for a free quote.

House Plan Description

This Texas style house plan is a great single story home with three bedrooms and two bathrooms -- all in a well-designed 1657 living square feet.  Pull up to the graceful carport and step up to the wrap-around front porch. Inside, the living room has an attractive fireplace. The open floor plan along with 11-foot ceilings makes the house feel larger than it really is. It also means that the dining area and kitchen are only steps away. The kitchen has a prep island with seating, a peninsula, and a walk-in pantry.

With a split-bedroom...

Home Details

Summary
Plan #:117-1001
Starting at:$895.00
Floors:1
Bedrooms:3
Full Baths:2
Half Baths:0
Garage:
Square Footage
Heated Area:1657 Sq. Ft.
First Floor:1657 Sq. Ft.
Unheated Area:
Garage:484 Sq. Ft.
Porch:648 Sq. Ft.
Dimensions
Ridge Height:30' 0''
Architectural Styles
Exterior Wall Material
Wood Siding
Roofing Type
Gable
Roofing Material
Asphalt Shingles
Roof Pitch
10/12
Ceiling Height
11 Foot Ceiling
Special Feature
FireplaceMain Level LaundryOpen Floor PlanInterior Photos
Garage Type
Detached GarageCarport
Fireplaces
One Fireplace
Exterior Wall Framing
2x4
Building Lot Type
Flat Site
Kitchen Features
Kitchen IslandWalk-in PantryPeninsula/Eating Bar
Porches and Exterior Features
Covered Front PorchCovered Rear Porch
Master Suite Features
Main Floor MasterMaster BathroomWalk In ClosetSplit Master Bedroom

What’s Included

Most plan sets include the following:

icon text-secondary-400 includedDetailed floor plans

icon text-secondary-400 includedExterior elevations

icon text-secondary-400 includedCabinet elevations

icon text-secondary-400 includedSections/Details

icon text-secondary-400 includedFraming plans

icon text-secondary-400 includedFoundation plans

icon text-secondary-400 includedElectrical layout

What’s Not Included

These items are  NOT included:

icon text-secondary-400 includedArchitectural or Engineering Stamp - handled locally if required.

icon text-secondary-400 includedSite Plan - handled locally when required.

icon text-secondary-400 includedMechanical Drawings (location of heating and air equipment and ductwork) - your subcontractors handle this.

icon text-secondary-400 includedPlumbing Drawings (drawings showing the actual plumbing pipe sizes and locations) - your subcontractors handle this.

icon text-secondary-400 includedEnergy calculations - handled locally when required.

Related House Plans

Plan Collection
Plan Collection
Plan Collection
Plan#142-1041
Starting at$1245
1300
Sq Ft
1
Story
3
Bed
2
Bath
2
Car
Plan Collection
Plan Collection
Plan Collection
Plan#141-1243
Starting at$1485
1640
Sq Ft
1
Story
3
Bed
2
Bath
2
Car
Plan Collection
Plan Collection
Plan Collection
Plan#176-1012
Starting at$600
1412
Sq Ft
1
Story
3
Bed
2
Bath
0
Car
View All

Other Plans By This Designer

Plan Collection
Plan Collection
Plan Collection
Plan#117-1141
Starting at$895
1742
Sq Ft
1.5
Story
3
Bed
2.5
Bath
2
Car
Plan Collection
Plan Collection
Plan Collection
Plan#117-1104
Starting at$895
1421
Sq Ft
2
Story
3
Bed
2
Bath
2
Car
Plan Collection
Plan Collection
Plan Collection
Plan#117-1095
Starting at$1095
1879
Sq Ft
1
Story
3
Bed
2
Bath
2
Car