Estimate your costs based on your location and materials.
Yes! This plan can be customized—contact us for a free quote.
Yes! This plan can be customized—contact us for a free quote.
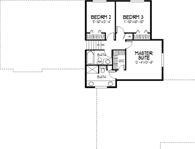
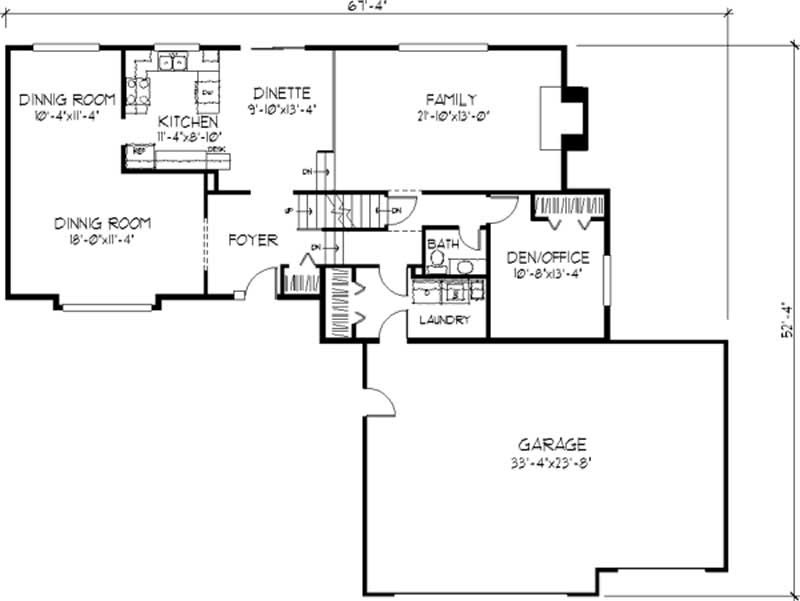
The foyer of this lovely home opens to a living room with a boxed-out window that lets in plenty of sunshine. The efficient U-shaped kitchen puts everything at the family gourmet's fingertips and easily serves the formal dining area as well as the casual dinette. A big family room warmed by a fireplace and a den that may serve as a guest room are on a level a few steps down from the main floor. The top floor contains the home's sleeping level. The master suite has a walk-in closet and a luxurious private bath. Two secondary bedrooms share a full bath.
Estimate your costs based on your location and materials.
All sales of house plans, modifications, and other products found on this site are final. No refunds or exchanges can be given once your order has begun the fulfillment process. Please see our Policies for additional information.
All plans offered on ThePlanCollection.com are designed to conform to the local building codes when and where the original plan was drawn.
The homes as shown in photographs and renderings may differ from the actual blueprints. For more detailed information, please review the floor plan images herein carefully.
Estimate your costs based on your location and materials.