1-Bedroom, 1920 Sq Ft Country Plan with Walk In Closet

Front view of Country home (ThePlanCollection: House Plan #146-2304)

Images/Plans copyrighted by designer. Photos may reflect homeowner modifications.

About House Plan #146-2304

Sq Ft
1920
Sq Ft
Bedrooms
1
Bedrooms
Bathroom
1
Baths
Half Baths
1
Half Baths
Bedrooms
3
Cars
Bedrooms
1
Stories
Bedrooms
69' 0'
Width
Bedrooms
56
Depth
Starting at$980.00What's included
STEP 1Bedrooms
STEP 2Bedrooms
STEP 3Bedrooms

Subtotal:$0
Plan Collection

How much will it cost to build?

Estimate your costs based on your location and materials.

Free Cost Instant Estimator

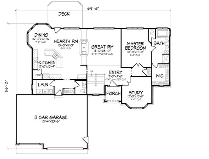
Floor Plans

Main Level
Main Level
Basement
Basement
Plan Collection

Can I modify this plan?

Yes! This plan can be customized—contact us for a free quote.

House Plan Description

This home is the perfect choice for empty nesters or for families just starting out, with plenty of room to expand on the basement level. At the center of the home, the Great Room shares a two-way fireplace with the cozy hearth room. The open kitchen is oriented toward other rooms, keeping the cook involved in the conversation. The master suite is a quiet haven after a long day of work. Soak your cares away in the large garden tub. A bay window enhances the study, which could easily serve as a home office or a guest room. Downstairs, you decide how many rooms to finish off. Two possible...

Home Details

Summary
Plan #:146-2304
Starting at:$980.00
Floors:1
Bedrooms:1
Full Baths:1
Half Baths:1
Garage:
Square Footage
Heated Area:1920 Sq. Ft.
First Floor:1920 Sq. Ft.
Unheated Area:
Basement:1920 Sq. Ft.
Garage:768 Sq. Ft.
Dimensions
Ridge Height:25-0' 0''
Architectural Styles
Exterior Wall Material
BrickWood Siding
Roofing Type
Hip
Ceiling Height
9 Foot Ceiling
Special Feature
FireplaceGuest RoomHome OfficeFamily RoomGame RoomColor Photos
Garage Type
Attached GarageFront Entry
Fireplaces
Two Fireplaces
Exterior Wall Framing
2x6

What’s Included

Most plan sets include the following:

What’s Not Included

These items are  NOT included:

icon text-secondary-400 includedArchitectural or Engineering Stamp - handled locally if required.

icon text-secondary-400 includedSite Plan - handled locally when required.

icon text-secondary-400 includedMechanical Drawings (location of heating and air equipment and ductwork) - your subcontractors handle this.

icon text-secondary-400 includedPlumbing Drawings (drawings showing the actual plumbing pipe sizes and locations) - your subcontractors handle this.

icon text-secondary-400 includedEnergy calculations - handled locally when required.

Related House Plans

Plan Collection
Plan Collection
Plan Collection
Plan#161-1081
Starting at$1550
2037
Sq Ft
1
Story
1
Bed
1.5
Bath
3
Car
Plan Collection
Plan Collection
Plan Collection
Plan#165-1085
Starting at$1725
1598
Sq Ft
1
Story
1
Bed
1
Bath
2
Car
Plan Collection
Plan Collection
Plan Collection
Plan#163-1058
Starting at$990
1465
Sq Ft
1
Story
1
Bed
1.5
Bath
2
Car
View All

Other Plans By This Designer

Plan Collection
Plan Collection
Plan Collection
Plan#146-2806
Starting at$980
1933
Sq Ft
2
Story
3
Bed
2
Bath
0
Car
Plan Collection
Plan Collection
Plan Collection
Plan#146-2810
Starting at$1285
3594
Sq Ft
2
Story
4
Bed
3.5
Bath
2
Car
Plan Collection
Plan Collection
Plan Collection
Plan#146-1917
Starting at$1120
2525
Sq Ft
2
Story
4
Bed
2.5
Bath
3
Car