Front view of Duplex/Multi-Unit home (ThePlanCollection: House Plan #146-2451)

Images/Plans copyrighted by designer. Photos may reflect homeowner modifications.

About House Plan #146-2451

Sq Ft
1938
Sq Ft
Bedrooms
2
Bedrooms
Bathroom
2
Baths
Half Baths
0
Half Baths
Bedrooms
1
Cars
Bedrooms
2
Stories
Bedrooms
54' 0'
Width
Bedrooms
47
Depth
Starting at$1425.00What's included
STEP 1Bedrooms
STEP 2Bedrooms
STEP 3Bedrooms

Subtotal:$0
Plan Collection

How much will it cost to build?

Estimate your costs based on your location and materials.

Free Cost Instant Estimator

Floor Plans

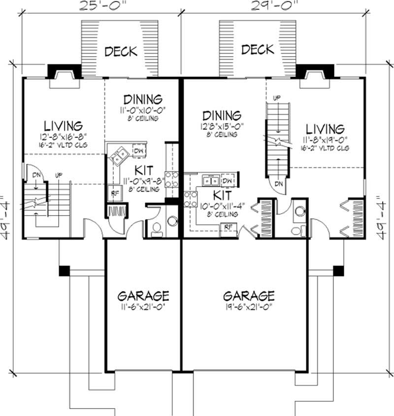
Main Level
Main Level
Upper Level
Upper Level
Plan Collection

Can I modify this plan?

Yes! This plan can be customized—contact us for a free quote.

House Plan Description

This contemporary duplex design offers a floor plan to fit any lifestyle. Singles or young families will enjoy the amenities of Unit 1, including a single-car garage, a cozy living room with a fireplace and access to a rear patio, and an upper level with two bedrooms and a balcony that overlooks the living room. Bigger families will enjoy the amenities offered in Unit 2, including a two-car garage, a formal living room with a fireplace, an adjoining family room and an upper level featuring a master suite with a private bath and two secondary bedrooms that share a full hall bath.

Home Details

Summary
Plan #:146-2451
Starting at:$1425.00
Floors:2
Bedrooms:2
Full Baths:2
Half Baths:0
Garage:
Square Footage
Heated Area:1938 Sq. Ft.
First Floor:662 Sq. Ft.
Second Floor:614 Sq. Ft.
Unheated Area:
Basement:662 Sq. Ft.
Dimensions
Ridge Height:28-0' 0''
Architectural Styles
Exterior Wall Material
Wood Siding
Roofing Type
Gable
Special Feature
FireplaceFamily Room
Garage Type
Attached GarageFront Entry
Fireplaces
One Fireplace
Exterior Wall Framing
2x4

What’s Included

Most plan sets include the following:

What’s Not Included

These items are  NOT included:

icon text-secondary-400 includedArchitectural or Engineering Stamp - handled locally if required.

icon text-secondary-400 includedSite Plan - handled locally when required.

icon text-secondary-400 includedMechanical Drawings (location of heating and air equipment and ductwork) - your subcontractors handle this.

icon text-secondary-400 includedPlumbing Drawings (drawings showing the actual plumbing pipe sizes and locations) - your subcontractors handle this.

icon text-secondary-400 includedEnergy calculations - handled locally when required.

Related House Plans

Plan Collection
Plan Collection
Plan Collection
Plan#153-1999
Starting at$2050
1602
Sq Ft
2
Story
2
Bed
2.5
Bath
0
Car
Plan Collection
Plan Collection
Plan Collection
Plan#153-1013
Starting at$1550
1897
Sq Ft
2
Story
2
Bed
2
Bath
2
Car
Plan Collection
Plan Collection
Plan Collection
Plan#153-1997
Starting at$2050
1510
Sq Ft
2
Story
2
Bed
2.5
Bath
0
Car
View All

Other Plans By This Designer

Plan Collection
Plan Collection
Plan Collection
Plan#146-2806
Starting at$980
1933
Sq Ft
2
Story
3
Bed
2
Bath
0
Car
Plan Collection
Plan Collection
Plan Collection
Plan#146-2810
Starting at$1285
3594
Sq Ft
2
Story
4
Bed
3.5
Bath
2
Car
Plan Collection
Plan Collection
Plan Collection
Plan#146-1917
Starting at$1120
2525
Sq Ft
2
Story
4
Bed
2.5
Bath
3
Car