Front view of Duplex/Multi-Unit home (ThePlanCollection: House Plan #146-2464)

Images/Plans copyrighted by designer. Photos may reflect homeowner modifications.

About House Plan #146-2464

Sq Ft
1138
Sq Ft
Bedrooms
1
Bedrooms
Bathroom
2
Baths
Half Baths
0
Half Baths
Bedrooms
0
Cars
Bedrooms
2
Stories
Bedrooms
65' 0'
Width
Bedrooms
58
Depth
Starting at$1645.00What's included
STEP 1Bedrooms
STEP 2Bedrooms
STEP 3Bedrooms

Subtotal:$0
Plan Collection

How much will it cost to build?

Estimate your costs based on your location and materials.

Free Cost Instant Estimator

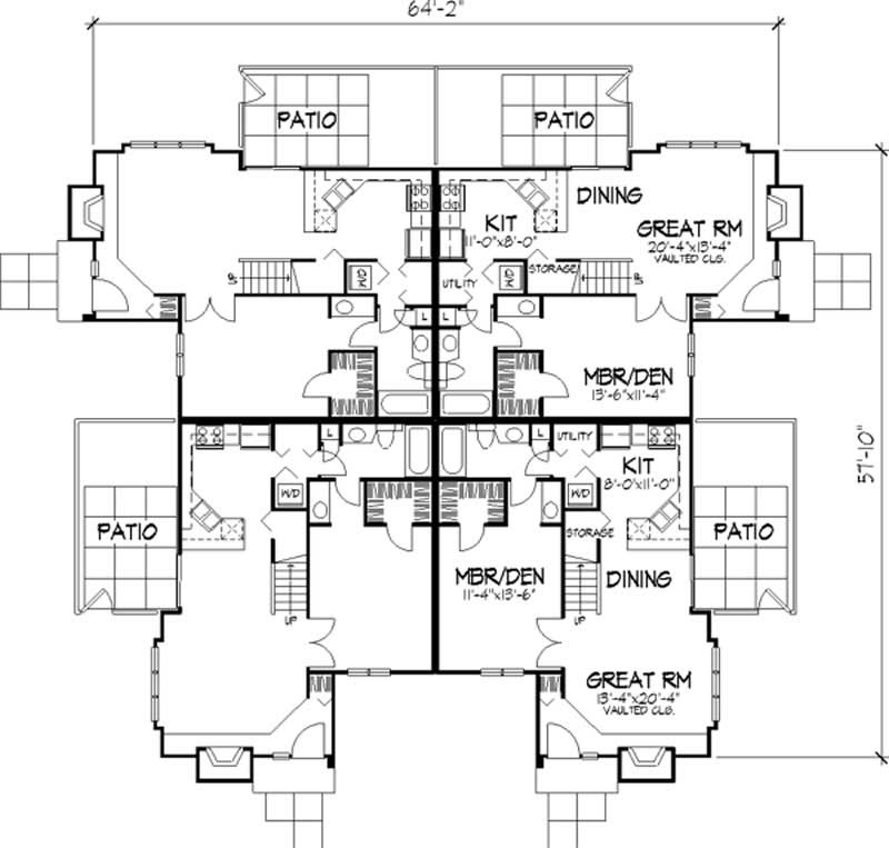
Floor Plans

Main Level
Main Level
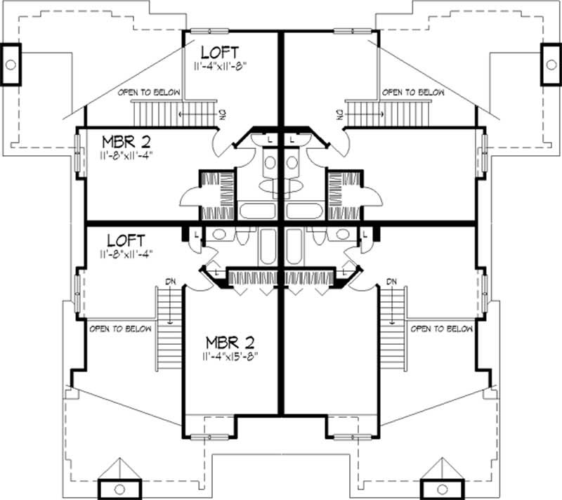
Upper Level
Upper Level
Plan Collection

Can I modify this plan?

Yes! This plan can be customized—contact us for a free quote.

House Plan Description

This pinwheel cluster places a unit on each corner for privacy and elevation interest. Each home contains an upper-floor bedroom suite and loft. The main-floor plans all feature a vaulted Great Room, a dining room and patio access. The kitchens are appealing and efficient, with countertops open to the Great Room.

Home Details

Summary
Plan #:146-2464
Starting at:$1645.00
Floors:2
Bedrooms:1
Full Baths:2
Half Baths:0
Garage:
Square Footage
Heated Area:1138 Sq. Ft.
First Floor:717 Sq. Ft.
Second Floor:421 Sq. Ft.
Unheated Area:
Dimensions
Ridge Height:28-0' 0''
Architectural Styles
Exterior Wall Material
StuccoWood Siding
Roofing Type
Gable
Special Feature
Dining Room
Fireplaces
One Fireplace
Exterior Wall Framing
2x4

What’s Included

Most plan sets include the following:

What’s Not Included

These items are  NOT included:

icon text-secondary-400 includedArchitectural or Engineering Stamp - handled locally if required.

icon text-secondary-400 includedSite Plan - handled locally when required.

icon text-secondary-400 includedMechanical Drawings (location of heating and air equipment and ductwork) - your subcontractors handle this.

icon text-secondary-400 includedPlumbing Drawings (drawings showing the actual plumbing pipe sizes and locations) - your subcontractors handle this.

icon text-secondary-400 includedEnergy calculations - handled locally when required.

Related House Plans

Plan Collection
Plan Collection
Plan Collection
Plan#146-2034
Starting at$1645
1001
Sq Ft
2
Story
1
Bed
2
Bath
0
Car
Plan Collection
Plan Collection
Plan Collection
Plan#146-2125
Starting at$1645
1180
Sq Ft
2
Story
1
Bed
2
Bath
1
Car
Plan Collection
Plan Collection
Plan Collection
Plan#146-2966
Starting at$885
1194
Sq Ft
2
Story
1
Bed
2
Bath
0
Car
View All

Other Plans By This Designer

Plan Collection
Plan Collection
Plan Collection
Plan#146-2806
Starting at$980
1933
Sq Ft
2
Story
3
Bed
2
Bath
0
Car
Plan Collection
Plan Collection
Plan Collection
Plan#146-2810
Starting at$1285
3594
Sq Ft
2
Story
4
Bed
3.5
Bath
2
Car
Plan Collection
Plan Collection
Plan Collection
Plan#146-1917
Starting at$1120
2525
Sq Ft
2
Story
4
Bed
2.5
Bath
3
Car