5-Bedroom, 2936 Sq Ft European Plan with Kitchen Island

Main image for house plan # 2161

Images/Plans copyrighted by designer. Photos may reflect homeowner modifications.

About House Plan #102-1037

Sq Ft
2936
Sq Ft
Bedrooms
5
Bedrooms
Bathroom
4
Baths
Half Baths
0
Half Baths
Bedrooms
2
Cars
Bedrooms
2
Stories
Bedrooms
57' 5'
Width
Bedrooms
44
Depth
Starting at$1300.00What's included
STEP 1Bedrooms
STEP 2Bedrooms
STEP 3Bedrooms

Subtotal:$0
Plan Collection

How much will it cost to build?

Estimate your costs based on your location and materials.

Free Cost Instant Estimator

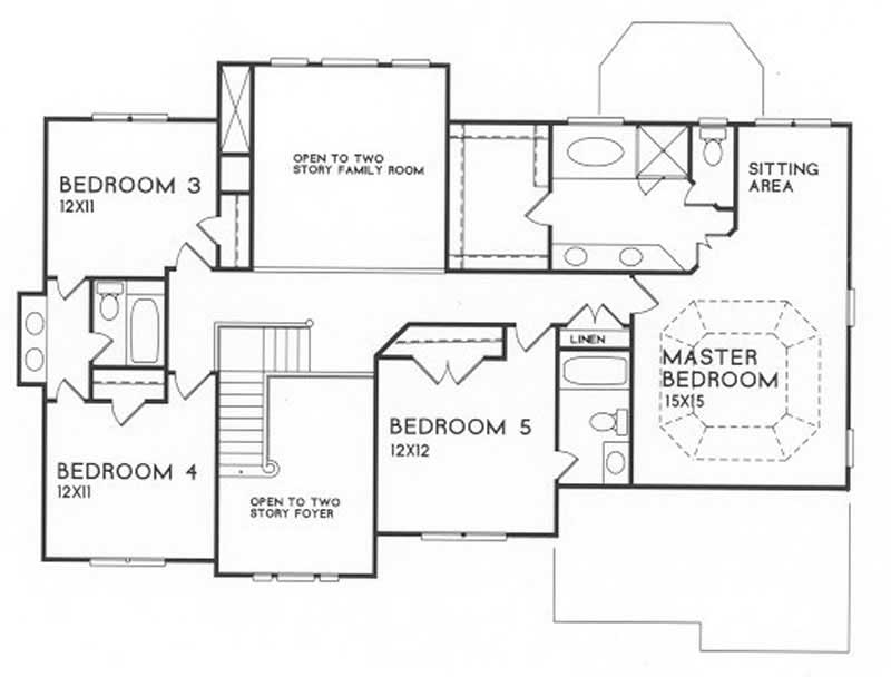
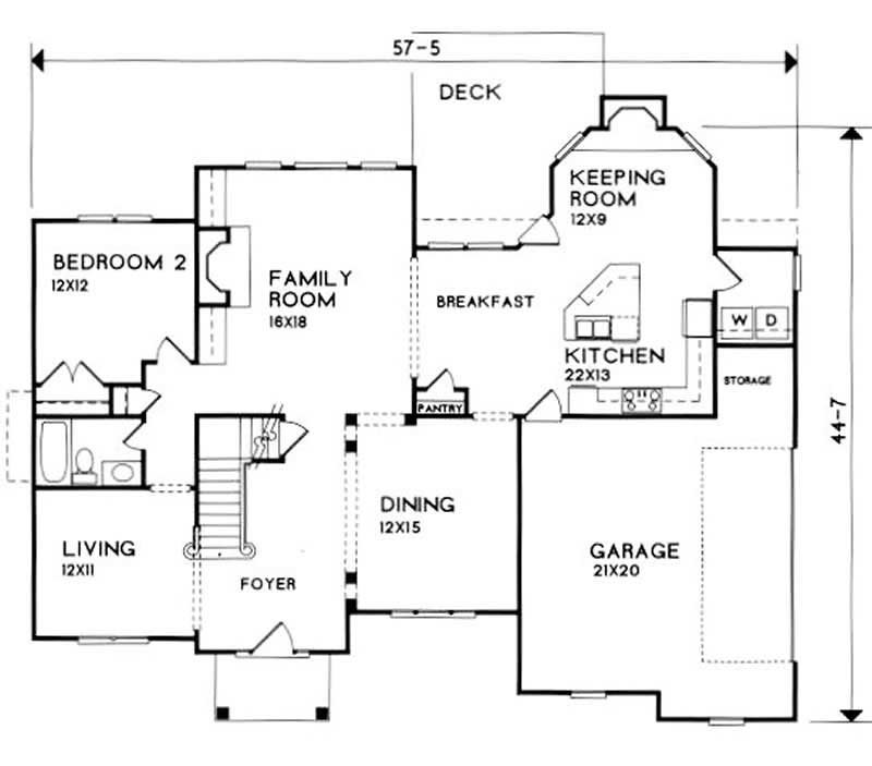
Floor Plans

Main Floor Plan
Main Floor Plan
Upper Level Floor Plan
Upper Level Floor Plan
Plan Collection

Can I modify this plan?

Yes! This plan can be customized—contact us for a free quote.

House Plan Description

This home is a two-level home plan with 4 bedrooms, 4 baths, two-story foyer and family room, main level laundry room, kitchen with a breakfast area and spacious keeping room. Walk-in pantry, formal dining room. Upstairs linen room, large master bedroom with a sitting area.

Home Details

Summary
Plan #:102-1037
Starting at:$1300.00
Floors:2
Bedrooms:5
Full Baths:4
Half Baths:0
Garage:
Square Footage
Heated Area:2936 Sq. Ft.
First Floor:1570 Sq. Ft.
Second Floor:1366 Sq. Ft.
Unheated Area:
Garage:21 Sq. Ft.
Dimensions
Width:57' 5''
Depth:44' 7''
Architectural Styles
Exterior Wall Material
Brick
Roofing Type
Gable
Ceiling Height
8 Foot Ceiling
Special Feature
Dining RoomFamily Room
Garage Type
Attached Garage
Kitchen Features
Walk-in Pantry

What’s Included

Most plan sets include the following:

icon text-secondary-400 includedArchitectural or Engineering Stamp - handled locally if required.

icon text-secondary-400 includedSite Plan - handled locally when required.

icon text-secondary-400 includedMechanical Drawings (location of heating and air equipment and ductwork) - your subcontractors handle this.

icon text-secondary-400 includedPlumbing Drawings (drawings showing the actual plumbing pipe sizes and locations) - your subcontractors handle this.

icon text-secondary-400 includedEnergy calculations - handled locally when required.

What’s Not Included

These items are  NOT included:

icon text-secondary-400 includedArchitectural or Engineering Stamp - handled locally if required.

icon text-secondary-400 includedSite Plan - handled locally when required.

icon text-secondary-400 includedMechanical Drawings (location of heating and air equipment and ductwork) - your subcontractors handle this.

icon text-secondary-400 includedPlumbing Drawings (drawings showing the actual plumbing pipe sizes and locations) - your subcontractors handle this.

icon text-secondary-400 includedEnergy calculations - handled locally when required.

Related House Plans

Plan Collection
Plan Collection
Plan Collection
Plan#153-1127
Starting at$1550
3601
Sq Ft
2
Story
5
Bed
4
Bath
3
Car
Plan Collection
Plan Collection
Plan Collection
Plan#198-1020
Starting at$1195
3054
Sq Ft
2
Story
5
Bed
4
Bath
2
Car
Plan Collection
Plan Collection
Plan Collection
Plan#106-1176
Starting at$1695
3073
Sq Ft
2
Story
5
Bed
4
Bath
3
Car
View All

Other Plans By This Designer

Plan Collection
Plan Collection
Plan Collection
Plan#102-1018
Starting at$950
1658
Sq Ft
2
Story
3
Bed
2.5
Bath
2
Car
Plan Collection
Plan Collection
Plan Collection
Plan#102-1041
Starting at$950
1865
Sq Ft
2
Story
4
Bed
3
Bath
2
Car
Plan Collection
Plan Collection
Plan Collection
Plan#102-1030
Starting at$1500
3445
Sq Ft
2
Story
4
Bed
3.5
Bath
2
Car