Front view of Duplex/Multi-Unit home (ThePlanCollection: House Plan #146-1510)

Images/Plans copyrighted by designer. Photos may reflect homeowner modifications.

About House Plan #146-1510

Sq Ft
1140
Sq Ft
Bedrooms
1
Bedrooms
Bathroom
2
Baths
Half Baths
0
Half Baths
Bedrooms
2
Cars
Bedrooms
1
Stories
Bedrooms
127' 0'
Width
Bedrooms
70
Depth
Starting at$885.00What's included
STEP 1Bedrooms
STEP 2Bedrooms
STEP 3Bedrooms

Subtotal:$0
Plan Collection

How much will it cost to build?

Estimate your costs based on your location and materials.

Free Cost Instant Estimator

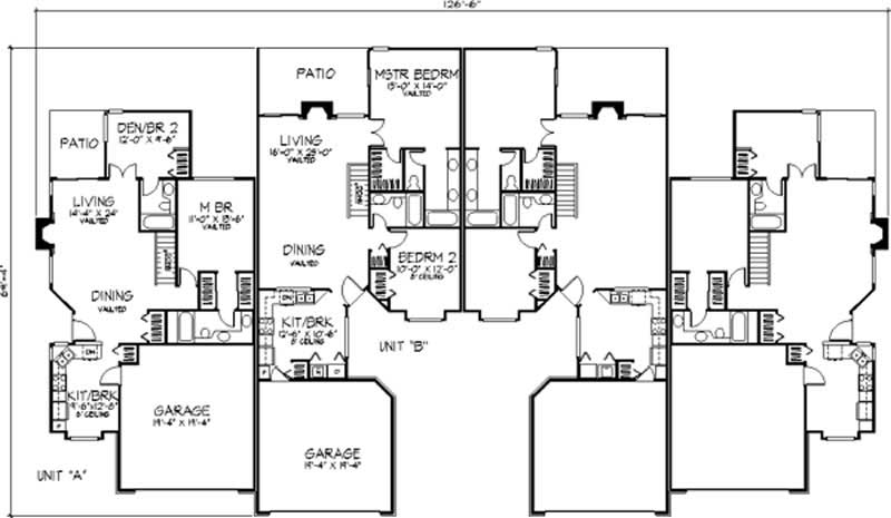
Floor Plans

Floor Plan First Story
Floor Plan First Story
Plan Collection

Can I modify this plan?

Yes! This plan can be customized—contact us for a free quote.

House Plan Description

This four-plex contains two ranch units mirrored around an interior courtyard. Inside, these homes feature vaulted ceilings in both the living and dining areas, exciting fireplaces and sliding glass doors that open to lovely rear patios. The eat-in kitchens all include handy pass-through counters. The master bedrooms boast walk-in closets and private baths.

Home Details

Summary
Plan #:146-1510
Starting at:$885.00
Floors:1
Bedrooms:1
Full Baths:2
Half Baths:0
Garage:
Square Footage
Heated Area:1140 Sq. Ft.
First Floor:1140 Sq. Ft.
Unheated Area:
Dimensions
Ridge Height:21' 0''
Architectural Styles
Exterior Wall Material
BrickWood Siding
Roofing Type
Gable
Roofing Material
Asphalt Shingles
Special Feature
FireplaceDining RoomHome OfficeMain Level Laundry
Garage Type
Attached GarageFront Entry
Fireplaces
One Fireplace
Exterior Wall Framing
2x4
Building Lot Type
Flat Site
Porches and Exterior Features
Courtyard
Master Suite Features
Main Floor Master

What’s Included

Most plan sets include the following:

What’s Not Included

These items are  NOT included:

icon text-secondary-400 includedArchitectural or Engineering Stamp - handled locally if required.

icon text-secondary-400 includedSite Plan - handled locally when required.

icon text-secondary-400 includedMechanical Drawings (location of heating and air equipment and ductwork) - your subcontractors handle this.

icon text-secondary-400 includedPlumbing Drawings (drawings showing the actual plumbing pipe sizes and locations) - your subcontractors handle this.

icon text-secondary-400 includedEnergy calculations - handled locally when required.

Other Plans By This Designer

Plan Collection
Plan Collection
Plan Collection
Plan#146-2806
Starting at$980
1933
Sq Ft
2
Story
3
Bed
2
Bath
0
Car
Plan Collection
Plan Collection
Plan Collection
Plan#146-2810
Starting at$1285
3594
Sq Ft
2
Story
4
Bed
3.5
Bath
2
Car
Plan Collection
Plan Collection
Plan Collection
Plan#146-1917
Starting at$1120
2525
Sq Ft
2
Story
4
Bed
2.5
Bath
3
Car