3-Bedroom, 2985 Sq Ft Country Plan with Master Bathroom

Front view of Country home (ThePlanCollection: House Plan #146-1430)

Images/Plans copyrighted by designer. Photos may reflect homeowner modifications.

About House Plan #146-1430

Sq Ft
2985
Sq Ft
Bedrooms
3
Bedrooms
Bathroom
3
Baths
Half Baths
0
Half Baths
Bedrooms
3
Cars
Bedrooms
2
Stories
Bedrooms
67' 0'
Width
Bedrooms
57
Depth
Starting at$1120.00What's included
STEP 1Bedrooms
STEP 2Bedrooms
STEP 3Bedrooms

Subtotal:$0
Plan Collection

How much will it cost to build?

Estimate your costs based on your location and materials.

Free Cost Instant Estimator

Floor Plans

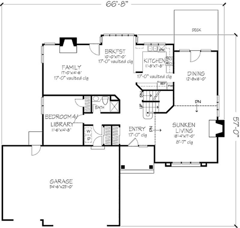
Floor Plan First Story
Floor Plan First Story
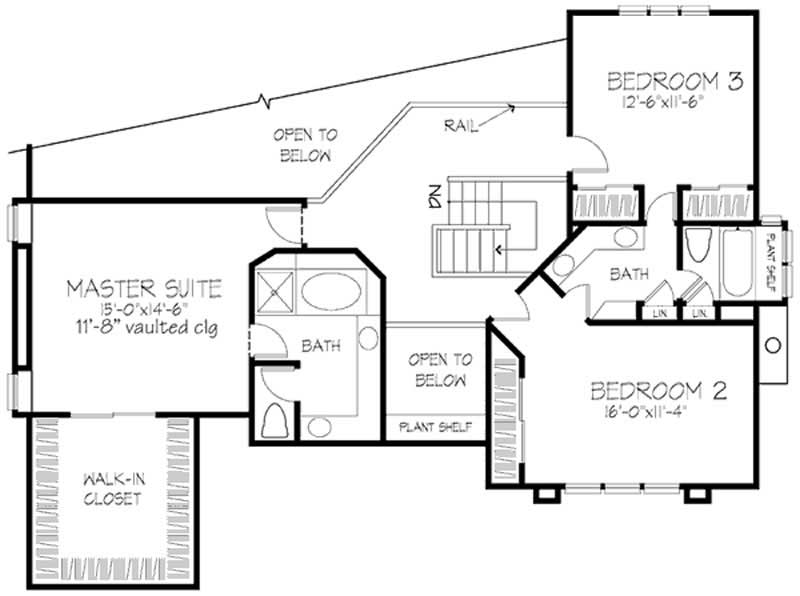
Floor Plan Second Story
Floor Plan Second Story
Plan Collection

Can I modify this plan?

Yes! This plan can be customized—contact us for a free quote.

House Plan Description

Within a soaring composition of gable rooflines and a grand, two-story front hall, this home characterizes romantic drama. A cozy fireplace adorns the sumptuous sunken living room, which opens to the formal dining room. The kitchen looks into an informal breakfast area that spills into the vaulted family room, which showcases a second fireplace. A huge walk-in closet, a private bath and a vaulted ceiling compose the upper-floor master suite. Two good-sized secondary bedrooms and a full bath rest nearby.

Home Details

Summary
Plan #:146-1430
Starting at:$1120.00
Floors:2
Bedrooms:3
Full Baths:3
Half Baths:0
Garage:
Square Footage
Heated Area:2985 Sq. Ft.
First Floor:1695 Sq. Ft.
Second Floor:1290 Sq. Ft.
Unheated Area:
Dimensions
Ridge Height:28' 0''
Architectural Styles
Exterior Wall Material
BrickWood Siding
Roofing Type
Gable
Roofing Material
Asphalt Shingles
Special Feature
FireplaceDining RoomMud RoomFamily RoomMain Level LaundryLibrarySplit BathroomVaulted Ceilings
Garage Type
Attached GarageFront Entry
Fireplaces
Two Fireplaces
Exterior Wall Framing
2x4
Building Lot Type
Flat Site
Kitchen Features
Nook/Breakfast AreaWalk-in PantryPeninsula/Eating BarEat-In Kitchen
Porches and Exterior Features
Covered Front PorchSundeck
Master Suite Features
Master BathroomWalk In Closet

What’s Included

Most plan sets include the following:

What’s Not Included

These items are  NOT included:

icon text-secondary-400 includedArchitectural or Engineering Stamp - handled locally if required.

icon text-secondary-400 includedSite Plan - handled locally when required.

icon text-secondary-400 includedMechanical Drawings (location of heating and air equipment and ductwork) - your subcontractors handle this.

icon text-secondary-400 includedPlumbing Drawings (drawings showing the actual plumbing pipe sizes and locations) - your subcontractors handle this.

icon text-secondary-400 includedEnergy calculations - handled locally when required.

Related House Plans

Plan Collection
Plan Collection
Plan Collection
Plan#117-1103
Starting at$1345
2847
Sq Ft
2
Story
3
Bed
3
Bath
3
Car
Plan Collection
Plan Collection
Plan Collection
Plan#106-1324
Starting at$1695
2484
Sq Ft
2
Story
3
Bed
3.5
Bath
3
Car
Plan Collection
Plan Collection
Plan Collection
Plan#117-1124
Starting at$1095
2396
Sq Ft
2
Story
3
Bed
3
Bath
2
Car
View All

Other Plans By This Designer

Plan Collection
Plan Collection
Plan Collection
Plan#146-2806
Starting at$980
1933
Sq Ft
2
Story
3
Bed
2
Bath
0
Car
Plan Collection
Plan Collection
Plan Collection
Plan#146-2810
Starting at$1285
3594
Sq Ft
2
Story
4
Bed
3.5
Bath
2
Car
Plan Collection
Plan Collection
Plan Collection
Plan#146-1917
Starting at$1120
2525
Sq Ft
2
Story
4
Bed
2.5
Bath
3
Car