3-Bedroom, 2309 Sq Ft Cape Cod Plan with Kitchen Island

Front view of Rustic home (ThePlanCollection: House Plan #146-1381)

Images/Plans copyrighted by designer. Photos may reflect homeowner modifications.

About House Plan #146-1381

Sq Ft
2309
Sq Ft
Bedrooms
3
Bedrooms
Bathroom
2
Baths
Half Baths
1
Half Baths
Bedrooms
2
Cars
Bedrooms
2
Stories
Bedrooms
53' 0'
Width
Bedrooms
48
Depth
Starting at$1015.00What's included
STEP 1Bedrooms
STEP 2Bedrooms
STEP 3Bedrooms

Subtotal:$0
Plan Collection

How much will it cost to build?

Estimate your costs based on your location and materials.

Free Cost Instant Estimator

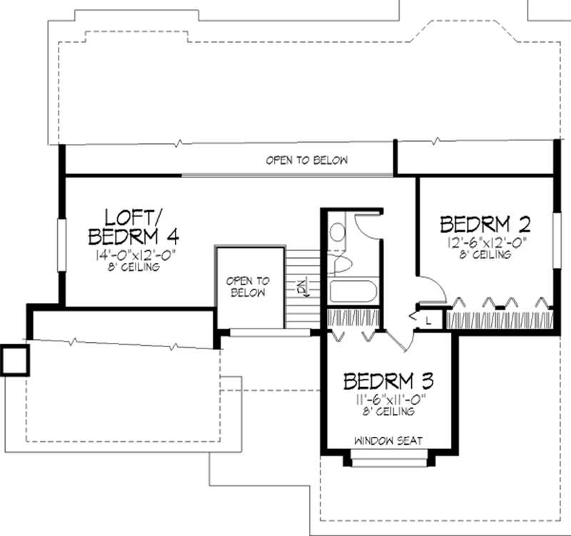
Floor Plans

Floor Plan First Story
Floor Plan First Story
Floor Plan Second Story
Floor Plan Second Story
Plan Collection

Can I modify this plan?

Yes! This plan can be customized—contact us for a free quote.

House Plan Description

This European-style home has a lovely stone exterior that frames a gorgeous window arrangement, giving this home a peaceful, comfortable look. Inside, a vaulted ceiling, a mood-enhancing fireplace and an elegant arch add a stylish flair to the living room. Between the kitchen and the family room, a neat peninsula serving counter holds snacks and popcorn when guests come by to watch a movie.

Home Details

Summary
Plan #:146-1381
Starting at:$1015.00
Floors:2
Bedrooms:3
Full Baths:2
Half Baths:1
Garage:
Square Footage
Heated Area:2309 Sq. Ft.
First Floor:1535 Sq. Ft.
Second Floor:774 Sq. Ft.
Unheated Area:
Dimensions
Ridge Height:25' 0''
Architectural Styles
Exterior Wall Material
Rock/StoneWood Siding
Roofing Type
Hip
Roofing Material
Asphalt Shingles
Special Feature
FireplaceDining RoomMud RoomFamily RoomMain Level LaundryLoftSplit BathroomVaulted CeilingsBalcony
Garage Type
Attached GarageFront Entry
Fireplaces
Two Fireplaces
Building Lot Type
Flat Site
Kitchen Features
Nook/Breakfast AreaWalk-in PantryPeninsula/Eating BarEat-In Kitchen
Porches and Exterior Features
Covered Front PorchSundeck
Master Suite Features
Main Floor MasterMaster BathroomWalk In ClosetSitting Area

What’s Included

Most plan sets include the following:

What’s Not Included

These items are  NOT included:

icon text-secondary-400 includedArchitectural or Engineering Stamp - handled locally if required.

icon text-secondary-400 includedSite Plan - handled locally when required.

icon text-secondary-400 includedMechanical Drawings (location of heating and air equipment and ductwork) - your subcontractors handle this.

icon text-secondary-400 includedPlumbing Drawings (drawings showing the actual plumbing pipe sizes and locations) - your subcontractors handle this.

icon text-secondary-400 includedEnergy calculations - handled locally when required.

Related House Plans

Plan Collection
Plan Collection
Plan Collection
Plan#126-1297
Starting at$1715
2257
Sq Ft
2
Story
3
Bed
2.5
Bath
2
Car
Plan Collection
Plan Collection
Plan Collection
Plan#198-1006
Starting at$2395
2587
Sq Ft
2
Story
3
Bed
2.5
Bath
3
Car
Plan Collection
Plan Collection
Plan Collection
Plan#117-1030
Starting at$1095
2112
Sq Ft
2
Story
3
Bed
2.5
Bath
2
Car
View All

Other Plans By This Designer

Plan Collection
Plan Collection
Plan Collection
Plan#146-2806
Starting at$980
1933
Sq Ft
2
Story
3
Bed
2
Bath
0
Car
Plan Collection
Plan Collection
Plan Collection
Plan#146-2810
Starting at$1285
3594
Sq Ft
2
Story
4
Bed
3.5
Bath
2
Car
Plan Collection
Plan Collection
Plan Collection
Plan#146-1917
Starting at$1120
2525
Sq Ft
2
Story
4
Bed
2.5
Bath
3
Car