5-Bedroom, 4171 Sq Ft Country Plan with Vaulted Ceilings

Country home (ThePlanCollection: Plan #165-1051)

Images/Plans copyrighted by designer. Photos may reflect homeowner modifications.

About House Plan #165-1051

Sq Ft
4171
Sq Ft
Bedrooms
5
Bedrooms
Bathroom
3
Baths
Half Baths
1
Half Baths
Bedrooms
4
Cars
Bedrooms
2
Stories
Bedrooms
99' 0'
Width
Bedrooms
64
Depth
Starting at$2450.00What's included
STEP 1Bedrooms
STEP 2Bedrooms
STEP 3Bedrooms

Subtotal:$0
Plan Collection

How much will it cost to build?

Estimate your costs based on your location and materials.

Free Cost Instant Estimator

Floor Plans

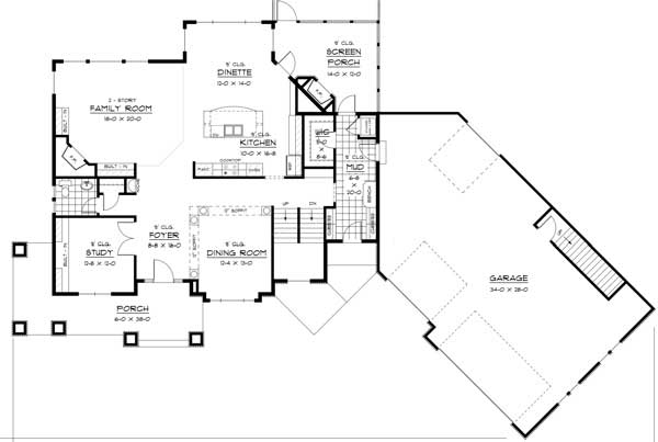
Floor Plan First Story
Floor Plan First Story
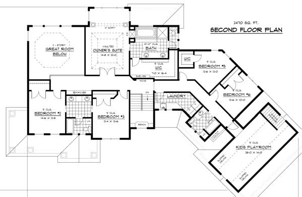
Floor Plan Second Story
Floor Plan Second Story
Plan Collection

Can I modify this plan?

Yes! This plan can be customized—contact us for a free quote.

Additional Notes from Designer

PLEASE NOTE: Materials Lists are based on the STOCK plan ONLY without modifications! Custom materials lists are available if you modify a plan. Please ask for a quote.

House Plan Description

Clad in cedar shakes and stone, this attractive home offers amazing places for the young—and the young-at-heart—to play. Enjoy a quiet game of chess on the inviting front porch or in the rear screen porch, where a fireplace keeps chilly evenings at bay. Gather together for game night in the spacious two-story family room, which also boasts an eye-catching corner fireplace. Upstairs, a spacious owner's suite is crowned by an attractive tray ceiling, while columns introduce a quiet sitting area. At the opposite side of the upper floor, a kids' playroom is the ideal space...

Home Details

Summary
Plan #:165-1051
Starting at:$2450.00
Floors:2
Bedrooms:5
Full Baths:3
Half Baths:1
Garage:
Square Footage
Heated Area:4171 Sq. Ft.
First Floor:1701 Sq. Ft.
Second Floor:2470 Sq. Ft.
Unheated Area:
Dimensions
Architectural Styles
Exterior Wall Material
BrickShakes
Roofing Type
Hip
Roofing Material
Asphalt Shingles
Roof Pitch
8/12
Ceiling Height
9 Foot Ceiling
Special Feature
FireplaceDining RoomHome OfficeMud RoomFamily RoomGame RoomMain Level LaundryLibraryColor PhotosSplit BathroomVaulted CeilingsBalconySecond Level LaundryOpen Floor PlanInterior Photos
Garage Type
Attached GarageCourtyard Entry
Fireplaces
Three Fireplaces
Exterior Wall Framing
2x6
Building Lot Type
Down Site
Kitchen Features
Kitchen IslandNook/Breakfast AreaPeninsula/Eating BarEat-In Kitchen
Porches and Exterior Features
CourtyardCovered Front PorchScreened Porch/Sunroom
Master Suite Features
Master BathroomWalk In ClosetSitting AreaSecond Floor Master

What’s Included

Most plan sets include the following:

icon text-secondary-400 includedFoundation plan

icon text-secondary-400 includedFloor plan(s)

icon text-secondary-400 includedExterior elevations

icon text-secondary-400 includedBuilding cross sections

icon text-secondary-400 includedRoof plan

icon text-secondary-400 includedNotes & details

What’s Not Included

These items are  NOT included:

icon text-secondary-400 includedArchitectural or Engineering Stamp - handled locally if required.

icon text-secondary-400 includedSite Plan - handled locally when required.

icon text-secondary-400 includedMechanical Drawings (location of heating and air equipment and ductwork) - your subcontractors handle this.

icon text-secondary-400 includedPlumbing Drawings (drawings showing the actual plumbing pipe sizes and locations) - your subcontractors handle this.

icon text-secondary-400 includedEnergy calculations - handled locally when required.

Related House Plans

Plan Collection
Plan Collection
Plan Collection
Plan#161-1003
Starting at$4200
5164
Sq Ft
2
Story
5
Bed
3.5
Bath
3
Car
Plan Collection
Plan Collection
Plan Collection
Plan#189-1013
Starting at$1595
3263
Sq Ft
2
Story
5
Bed
3.5
Bath
2
Car
Plan Collection
Plan Collection
Plan Collection
Plan#119-1221
Starting at$1645
3505
Sq Ft
2
Story
5
Bed
3
Bath
3
Car
View All

Other Plans By This Designer

Plan Collection
Plan Collection
Plan Collection
Plan#165-1077
Starting at$2450
6690
Sq Ft
1
Story
5
Bed
5
Bath
4
Car
Plan Collection
Plan Collection
Plan Collection
Plan#165-1186
Starting at$2050
2889
Sq Ft
2
Story
4
Bed
3.5
Bath
2
Car
Plan Collection
Plan Collection
Plan Collection
Plan#165-1168
Starting at$2050
2456
Sq Ft
2
Story
3
Bed
2.5
Bath
2
Car