2-Bedroom, 1431 Sq Ft European Plan with Kitchen Island

Front view of European home (ThePlanCollection: House Plan #146-2539)

Images/Plans copyrighted by designer. Photos may reflect homeowner modifications.

About House Plan #146-2539

Sq Ft
1431
Sq Ft
Bedrooms
2
Bedrooms
Bathroom
2
Baths
Half Baths
0
Half Baths
Bedrooms
2
Cars
Bedrooms
1
Stories
Bedrooms
52' 0'
Width
Bedrooms
44
Depth
Starting at$885.00What's included
STEP 1Bedrooms
STEP 2Bedrooms
STEP 3Bedrooms

Subtotal:$0
Plan Collection

How much will it cost to build?

Estimate your costs based on your location and materials.

Free Cost Instant Estimator

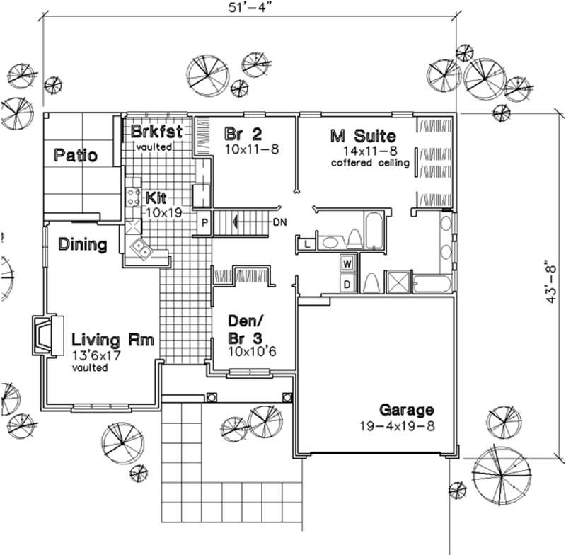
Floor Plans

Floor Plan First Story
Floor Plan First Story
Plan Collection

Can I modify this plan?

Yes! This plan can be customized—contact us for a free quote.

House Plan Description

This beautiful one-story's charming looks, efficient floor plan and elegant amenities make it a great starter home. Half-round windows, decorative corner quoins and a covered front porch add character to the distinctive exterior. Past the double-door entry, the foyer flows into the vaulted living room, which boasts a handsome fireplace and a ceiling that slopes to nearly 14 feet. The adjoining formal dining room is brightened by French doors to a covered patio. A convenient pass-through provides service from the kitchen, which enjoys a 10-ft. vaulted ceiling and a sunny breakfast nook with...

Home Details

Summary
Plan #:146-2539
Starting at:$885.00
Floors:1
Bedrooms:2
Full Baths:2
Half Baths:0
Garage:
Square Footage
Heated Area:1431 Sq. Ft.
First Floor:1431 Sq. Ft.
Unheated Area:
Dimensions
Ridge Height:17' 0''
Architectural Styles
Exterior Wall Material
BrickWood Siding
Roofing Type
Hip
Roofing Material
Asphalt Shingles
Special Feature
FireplaceDining RoomMud RoomFamily RoomMain Level LaundryDenVaulted Ceilings
Garage Type
Attached GarageFront Entry
Fireplaces
One Fireplace
Exterior Wall Framing
2x6
Building Lot Type
Flat Site
Kitchen Features
Nook/Breakfast AreaEat-In Kitchen
Porches and Exterior Features
CourtyardCovered Front Porch
Master Suite Features
Main Floor MasterMaster BathroomWalk In Closet

What’s Included

Most plan sets include the following:

What’s Not Included

These items are  NOT included:

icon text-secondary-400 includedArchitectural or Engineering Stamp - handled locally if required.

icon text-secondary-400 includedSite Plan - handled locally when required.

icon text-secondary-400 includedMechanical Drawings (location of heating and air equipment and ductwork) - your subcontractors handle this.

icon text-secondary-400 includedPlumbing Drawings (drawings showing the actual plumbing pipe sizes and locations) - your subcontractors handle this.

icon text-secondary-400 includedEnergy calculations - handled locally when required.

Related House Plans

Plan Collection
Plan Collection
Plan Collection
Plan#123-1071
Starting at$850
1292
Sq Ft
1
Story
2
Bed
2
Bath
0
Car
Plan Collection
Plan Collection
Plan Collection
Plan#132-1697
Starting at$1145
1176
Sq Ft
1
Story
2
Bed
2
Bath
0
Car
Plan Collection
Plan Collection
Plan Collection
Plan#136-1028
Starting at$1350
1092
Sq Ft
1
Story
2
Bed
2
Bath
0
Car
View All

Other Plans By This Designer

Plan Collection
Plan Collection
Plan Collection
Plan#146-2806
Starting at$980
1933
Sq Ft
2
Story
3
Bed
2
Bath
0
Car
Plan Collection
Plan Collection
Plan Collection
Plan#146-2810
Starting at$1285
3594
Sq Ft
2
Story
4
Bed
3.5
Bath
2
Car
Plan Collection
Plan Collection
Plan Collection
Plan#146-1917
Starting at$1120
2525
Sq Ft
2
Story
4
Bed
2.5
Bath
3
Car