4-Bedroom, 6331 Sq Ft French Plan with Kitchen Island

Front view of French home (ThePlanCollection: House Plan #170-1692)

Images/Plans copyrighted by designer. Photos may reflect homeowner modifications.

About House Plan #170-1692

Sq Ft
6331
Sq Ft
Bedrooms
4
Bedrooms
Bathroom
3
Baths
Half Baths
1
Half Baths
Bedrooms
4
Cars
Bedrooms
2
Stories
Bedrooms
68' 0'
Width
Bedrooms
127
Depth
Starting at$2785.00What's included
STEP 1Bedrooms
STEP 2Bedrooms
STEP 3Bedrooms

Subtotal:$0
Plan Collection

How much will it cost to build?

Estimate your costs based on your location and materials.

Free Cost Instant Estimator

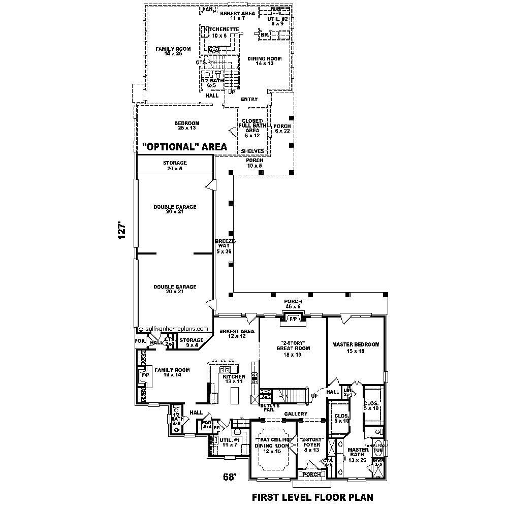
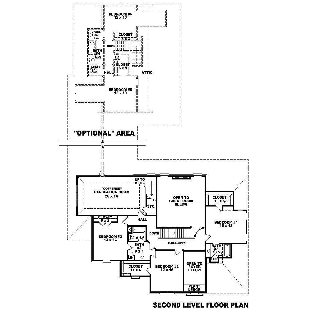
Floor Plans

Floor Plan First Story
Floor Plan First Story
Floor Plan Second Story
Floor Plan Second Story
Plan Collection

Can I modify this plan?

Yes! This plan can be customized—contact us for a free quote.

Additional Notes from Designer

PLEASE NOTE: The designer's office will be closed from 10/21/2022 to 11/1/2022. All orders and modification requests for this designer will be fulfilled when the designer resumes office on 11/2/2022. Some plans may take 2-3 weeks to receive! Additionally, not ALL plans from this designer are available in CAD or PDF, some additional charges may apply. Contact us with any questions or concerns BEFORE ordering! Thank you!

House Plan Description

This is a huge French plan that has a cool layered effect on the outside. There is an option of adding a lot of space behind the garages that would cover both floors.

Home Details

Summary
Plan #:170-1692
Starting at:$2785.00
Floors:2
Bedrooms:4
Full Baths:3
Half Baths:1
Garage:
Square Footage
Heated Area:6331 Sq. Ft.
First Floor:2474 Sq. Ft.
Second Floor:1588 Sq. Ft.
Unheated Area:
Garage:1053 Sq. Ft.
Dimensions
Ridge Height:34'0"' 0''
Architectural Styles
Exterior Wall Material
Brick
Roofing Type
Hip
Roof Pitch
12/128/12
Ceiling Height
10 Foot Ceiling9 Foot Ceiling
Special Feature
FireplaceDining RoomGame RoomColor PhotosStorageBalcony
Garage Type
Side Entry
Fireplaces
Two Fireplaces
Exterior Wall Framing
2x4
Building Lot Type
Flat Site
Kitchen Features
Kitchen IslandNook/Breakfast AreaWalk-in PantryPeninsula/Eating Bar
Porches and Exterior Features
BreezewayCovered Rear Porch
Master Suite Features
Main Floor MasterMaster BathroomWalk In Closet

What’s Included

Most plan sets include the following:

icon text-secondary-400 includedFoundation

icon text-secondary-400 includedFloor Plans

icon text-secondary-400 includedFraming

icon text-secondary-400 includedRoof

icon text-secondary-400 includedCabinet

icon text-secondary-400 includedStair Detail

icon text-secondary-400 includedElevation

icon text-secondary-400 includedElectrical layout

What’s Not Included

These items are  NOT included:

icon text-secondary-400 includedArchitectural or Engineering Stamp - handled locally if required.

icon text-secondary-400 includedSite Plan - handled locally when required.

icon text-secondary-400 includedMechanical Drawings (location of heating and air equipment and duct work) - your subcontractors handle this.

icon text-secondary-400 includedPlumbing Drawings (drawings showing the actual plumbing pipe sizes and locations) - your subcontractors handle this.

icon text-secondary-400 includedEnergy calculations - handled locally when required.

Related House Plans

Plan Collection
Plan Collection
Plan Collection
Plan#161-1000
Starting at$3400
7563
Sq Ft
2
Story
4
Bed
3.5
Bath
4
Car
Plan Collection
Plan Collection
Plan Collection
Plan#134-1326
Starting at$0
4955
Sq Ft
2
Story
4
Bed
3.5
Bath
4
Car
Plan Collection
Plan Collection
Plan Collection
Plan#161-1038
Starting at$2400
5023
Sq Ft
2
Story
4
Bed
3.5
Bath
3
Car
View All

Other Plans By This Designer

Plan Collection
Plan Collection
Plan Collection
Plan#170-1006
Starting at$1920
5625
Sq Ft
2
Story
7
Bed
4
Bath
3
Car
Plan Collection
Plan Collection
Plan Collection
Plan#170-1701
Starting at$770
1057
Sq Ft
1
Story
2
Bed
2
Bath
0
Car
Plan Collection
Plan Collection
Plan Collection
Plan#170-2772
Starting at$1105
2386
Sq Ft
2
Story
3
Bed
2
Bath
0
Car