2-Bedroom, 2666 Sq Ft Country Plan with Sundeck

Front view of Country home (ThePlanCollection: House Plan #170-1643)

Images/Plans copyrighted by designer. Photos may reflect homeowner modifications.

About House Plan #170-1643

Sq Ft
2666
Sq Ft
Bedrooms
2
Bedrooms
Bathroom
2
Baths
Half Baths
1
Half Baths
Bedrooms
2
Cars
Bedrooms
1
Stories
Bedrooms
93' 0'
Width
Bedrooms
68
Depth
Starting at$1250.00What's included
STEP 1Bedrooms
STEP 2Bedrooms
STEP 3Bedrooms

Subtotal:$0
Plan Collection

How much will it cost to build?

Estimate your costs based on your location and materials.

Free Cost Instant Estimator

Floor Plans

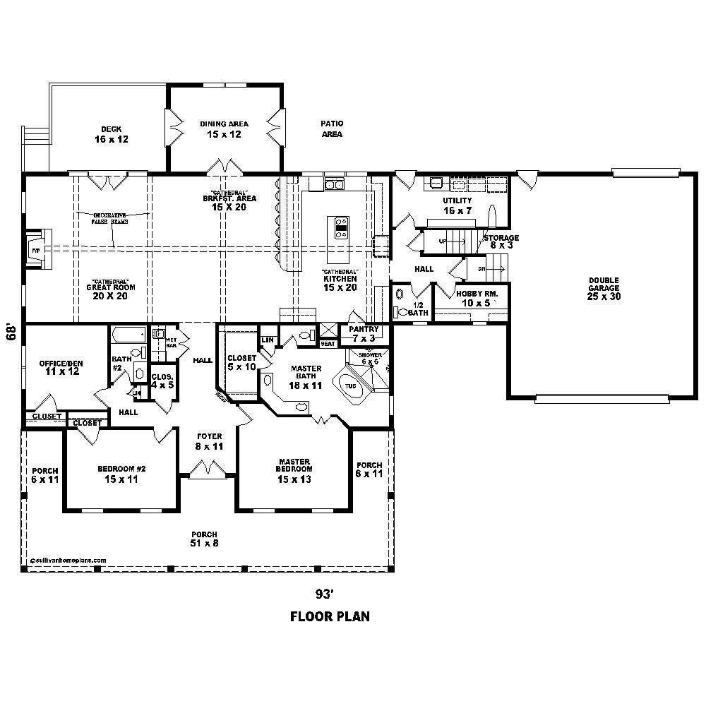
Floor Plan First Story
Floor Plan First Story
Plan Collection

Can I modify this plan?

Yes! This plan can be customized—contact us for a free quote.

Additional Notes from Designer

PLEASE NOTE: The designer's office will be closed from 10/21/2022 to 11/1/2022. All orders and modification requests for this designer will be fulfilled when the designer resumes office on 11/2/2022. Some plans may take 2-3 weeks to receive! Additionally, not ALL plans from this designer are available in CAD or PDF, some additional charges may apply. Contact us with any questions or concerns BEFORE ordering! Thank you!

House Plan Description

There is the classic Country wraparound porch and a unique roof design. There are two bedrooms and a large great room in this plan.

Home Details

Summary
Plan #:170-1643
Starting at:$1250.00
Floors:1
Bedrooms:2
Full Baths:2
Half Baths:1
Garage:
Square Footage
Heated Area:2666 Sq. Ft.
First Floor:2666 Sq. Ft.
Unheated Area:
Garage:863 Sq. Ft.
Dimensions
Ridge Height:23'0"' 0''
Architectural Styles
Exterior Wall Material
Wood Siding
Roofing Type
Gable
Roof Pitch
6/1214/12
Ceiling Height
9 Foot Ceiling
Special Feature
FireplaceDining RoomHome OfficeMain Level LaundryStorageDen
Garage Type
Front Entry
Fireplaces
One Fireplace
Exterior Wall Framing
2x4
Building Lot Type
Flat Site
Kitchen Features
Kitchen IslandPeninsula/Eating Bar
Porches and Exterior Features
Wrap Around PorchSundeck
Master Suite Features
Main Floor MasterMaster BathroomWalk In Closet

What’s Included

Most plan sets include the following:

icon text-secondary-400 includedFoundation

icon text-secondary-400 includedFloor Plans

icon text-secondary-400 includedFraming

icon text-secondary-400 includedRoof

icon text-secondary-400 includedCabinet

icon text-secondary-400 includedStair Detail

icon text-secondary-400 includedElevation

icon text-secondary-400 includedElectrical layout

What’s Not Included

These items are  NOT included:

icon text-secondary-400 includedArchitectural or Engineering Stamp - handled locally if required.

icon text-secondary-400 includedSite Plan - handled locally when required.

icon text-secondary-400 includedMechanical Drawings (location of heating and air equipment and duct work) - your subcontractors handle this.

icon text-secondary-400 includedPlumbing Drawings (drawings showing the actual plumbing pipe sizes and locations) - your subcontractors handle this.

icon text-secondary-400 includedEnergy calculations - handled locally when required.

Related House Plans

Plan Collection
Plan Collection
Plan Collection
Plan#194-1010
Starting at$1395
2605
Sq Ft
1
Story
2
Bed
2.5
Bath
3
Car
Plan Collection
Plan Collection
Plan Collection
Plan#161-1042
Starting at$2200
3321
Sq Ft
1
Story
2
Bed
2.5
Bath
3
Car
Plan Collection
Plan Collection
Plan Collection
Plan#161-1097
Starting at$1750
2422
Sq Ft
1
Story
2
Bed
2.5
Bath
3
Car
View All

Other Plans By This Designer

Plan Collection
Plan Collection
Plan Collection
Plan#170-1006
Starting at$1920
5625
Sq Ft
2
Story
7
Bed
4
Bath
3
Car
Plan Collection
Plan Collection
Plan Collection
Plan#170-1701
Starting at$770
1057
Sq Ft
1
Story
2
Bed
2
Bath
0
Car
Plan Collection
Plan Collection
Plan Collection
Plan#170-2772
Starting at$1105
2386
Sq Ft
2
Story
3
Bed
2
Bath
0
Car