Estimate your costs based on your location and materials.
Yes! This plan can be customized—contact us for a free quote.
Yes! This plan can be customized—contact us for a free quote.
Please Note! This designer does NOT ship paper copies to Canada. Please order your plans in electronic format (PDF or CAD)! USDA Approval is available for this plan. If interested, submit a modification request for a free quote. What is USDA Approval? Certification that a particular house plan meets the housing requirements of the US Department of Agriculture's Rural Housing Service. This is one of the requirements if you intend to apply for a loan through the Rural Housing Service.
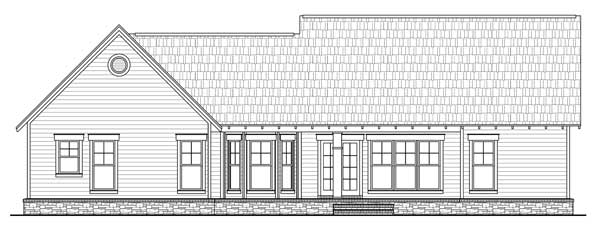
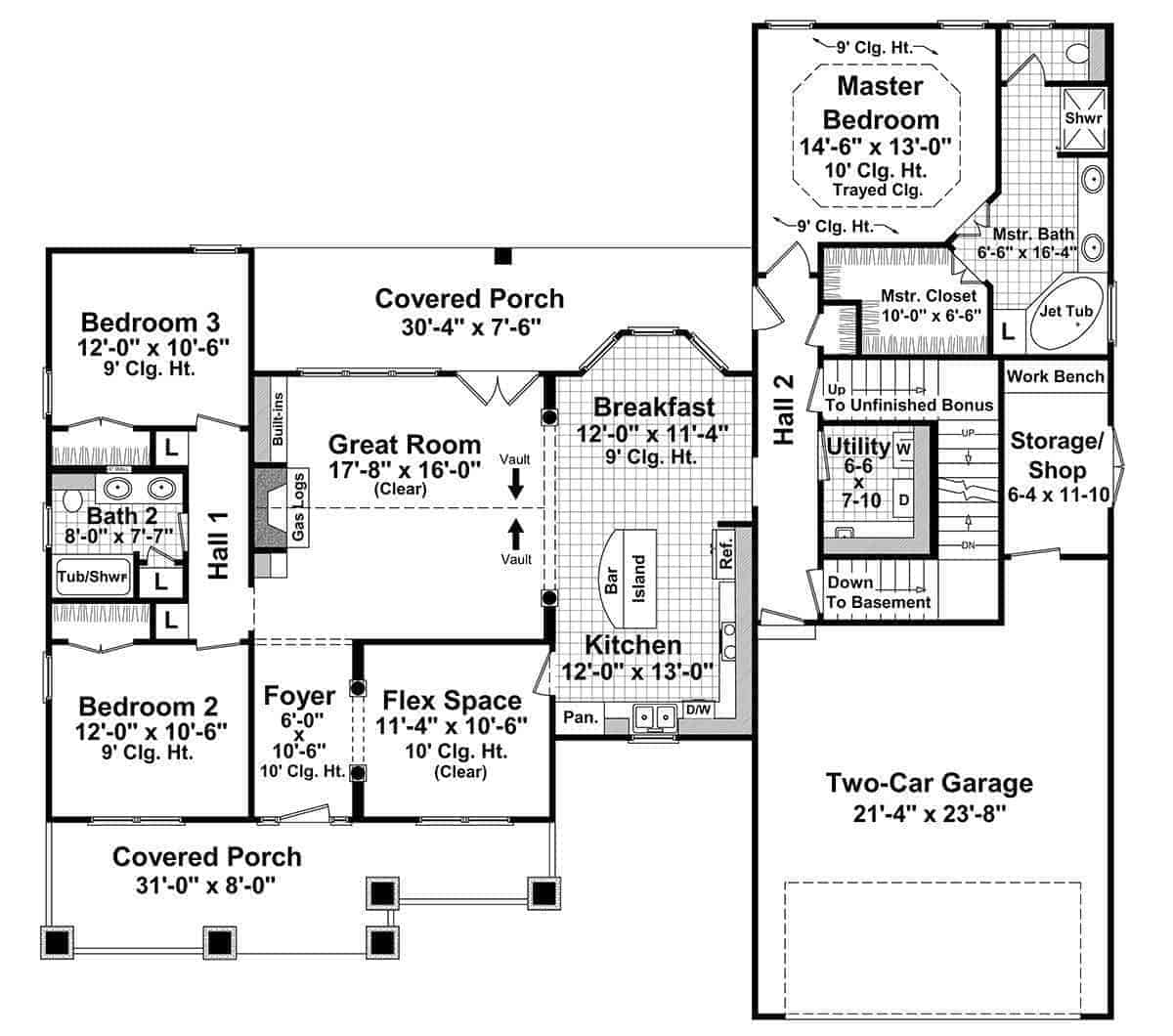
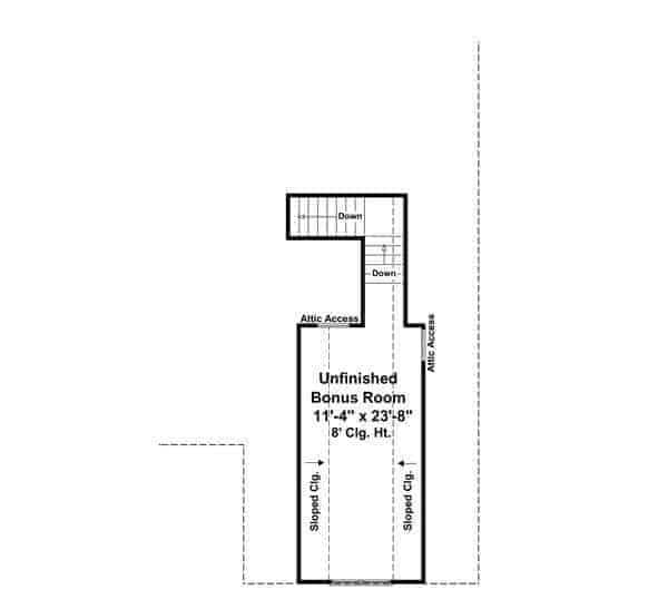
This stylish Craftsman-inspired house plan features a fantastic open, one-story floor plan with three bedrooms and two bathrooms. Enter into the home from the sizable front porch and be greeted by the high-ceilinged foyer. The foyer opens into the great room with wonderfully vaulted ceilings, practical gas fireplace, and access to the covered rear porch. The great room is open to both the kitchen and large breakfast nook. The kitchen features a great L-shape layout with a generous island with attached bar. Right off the kitchen is the hallway leading to the garage and split master...
Estimate your costs based on your location and materials.
All sales of house plans, modifications, and other products found on this site are final. No refunds or exchanges can be given once your order has begun the fulfillment process. Please see our Policies for additional information.
All plans offered on ThePlanCollection.com are designed to conform to the local building codes when and where the original plan was drawn.
The homes as shown in photographs and renderings may differ from the actual blueprints. For more detailed information, please review the floor plan images herein carefully.
Estimate your costs based on your location and materials.