4-Bedroom, 2111 Sq Ft Contemporary Plan with Walk-in Pantry

This image shows the front elevation of these Contemporary Ranch Home Plans.

Images/Plans copyrighted by designer. Photos may reflect homeowner modifications.

About House Plan #110-1027

Sq Ft
2111
Sq Ft
Bedrooms
4
Bedrooms
Bathroom
2
Baths
Half Baths
0
Half Baths
Bedrooms
2
Cars
Bedrooms
1
Stories
Bedrooms
91' 0'
Width
Bedrooms
34
Depth
Starting at$825.00What's included
STEP 1Bedrooms
STEP 2Bedrooms
STEP 3Bedrooms

Subtotal:$0
Plan Collection

How much will it cost to build?

Estimate your costs based on your location and materials.

Free Cost Instant Estimator

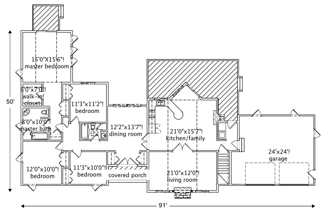
Floor Plans

Floor Plan First Story
Floor Plan First Story
Plan Collection

Can I modify this plan?

Yes! This plan can be customized—contact us for a free quote.

House Plan Description

This set of Contemporary Ranch Houseplans is unique because you enter directly into the dining room. How interesting!

Home Details

Summary
Plan #:110-1027
Starting at:$825.00
Floors:1
Bedrooms:4
Full Baths:2
Half Baths:0
Garage:
Square Footage
Heated Area:2111 Sq. Ft.
First Floor:2111 Sq. Ft.
Unheated Area:
Dimensions
Ridge Height:17' 0''
Architectural Styles
Exterior Wall Material
Wood Siding
Roofing Type
Gable
Roofing Material
Asphalt Shingles
Roof Pitch
7/12
Ceiling Height
8 Foot Ceiling
Special Feature
FireplaceMud RoomFamily RoomMain Level LaundrySplit BathroomVaulted Ceilings
Garage Type
Attached GarageFront Entry
Fireplaces
Two Fireplaces
Exterior Wall Framing
2x6
Kitchen Features
Nook/Breakfast AreaPeninsula/Eating BarEat-In Kitchen
Porches and Exterior Features
Covered Front PorchCovered Rear PorchSundeck
Master Suite Features
Main Floor MasterMaster BathroomWalk In ClosetSitting AreaPrivate Deck

What’s Included

Most plan sets include the following:

icon text-secondary-400 includedELEVATIONS:The front, rear, and side elevations of the house as drawn. Shows placement of doors & windows on exterior of the house, as well as roof pitches, ridge heights, and locations of chimney, exterior vents, etc. The elevations show the positioning of the final grade of the lot, exterior finishes, and other details that are necessary to give the home exterior architectural styling.

icon text-secondary-400 includedMAIN FLOOR PLAN: Showing all dimensions, window and door locations, laminated beams, columns, floor materials, ceiling heights, fireplace size, and specifications. Includes window sizes.

icon text-secondary-400 includedUPPER FLOOR PLAN (if applicable): Same details as the main floor plan.

icon text-secondary-400 includedSECTIONS AND INTERIOR DETAILS:Explain certain special conditions more appropriately. A cross section is basically a view of the home (or parts of the home) if it were sliced down the center. These details can be helpful for the contractor.

icon text-secondary-400 includedFOUNDATION PLAN: Dimensioned plan detailing the location and size of footings, slabs, reinforcing steel, and other structural elements that are required to support the load of the upper floors.

What’s Not Included

These items are  NOT included:

icon text-secondary-400 includedArchitectural or Engineering Stamp - handled locally if required.

icon text-secondary-400 includedFraming plans.

icon text-secondary-400 includedElectrical layout.

icon text-secondary-400 includedSite Plan - handled locally when required.

icon text-secondary-400 includedMechanical Drawings (location of heating and air equipment and ductwork) - your subcontractors handle this.

icon text-secondary-400 includedPlumbing Drawings (drawings showing the actual plumbing pipe sizes and locations) - your subcontractors handle this.

icon text-secondary-400 includedEnergy calculations - handled locally when required.

Related House Plans

Plan Collection
Plan Collection
Plan Collection
Plan#142-1204
Starting at$1345
2373
Sq Ft
1
Story
4
Bed
2.5
Bath
2
Car
Plan Collection
Plan Collection
Plan Collection
Plan#142-1078
Starting at$1295
1798
Sq Ft
1
Story
4
Bed
2
Bath
2
Car
Plan Collection
Plan Collection
Plan Collection
Plan#141-1107
Starting at$1530
2199
Sq Ft
1
Story
4
Bed
2.5
Bath
2
Car
View All

Other Plans By This Designer

Plan Collection
Plan Collection
Plan Collection
Plan#110-1102
Starting at$840
2459
Sq Ft
2
Story
3
Bed
3
Bath
2
Car
Plan Collection
Plan Collection
Plan Collection
Plan#110-1151
Starting at$500
419
Sq Ft
2
Story
0
Bed
1
Bath
2
Car
Plan Collection
Plan Collection
Plan Collection
Plan#110-1131
Starting at$500
200
Sq Ft
2
Story
0
Bed
0
Bath
2
Car