4-Bedroom, 3045 Sq Ft Country Plan with Nook/Breakfast Area

This is the front elevation for these Country House Plans.

Images/Plans copyrighted by designer. Photos may reflect homeowner modifications.

About House Plan #140-1033

Sq Ft
3045
Sq Ft
Bedrooms
4
Bedrooms
Bathroom
4
Baths
Half Baths
1
Half Baths
Bedrooms
3
Cars
Bedrooms
2
Stories
Bedrooms
75' 0'
Width
Bedrooms
98
Depth
Starting at$1045.00What's included
STEP 1Bedrooms
STEP 2Bedrooms
STEP 3Bedrooms

Subtotal:$0
Plan Collection

How much will it cost to build?

Estimate your costs based on your location and materials.

Free Cost Instant Estimator

Floor Plans

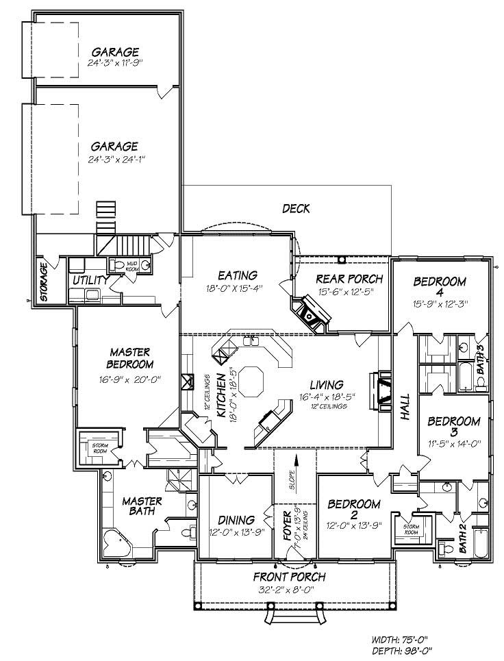
Floor Plan First Story
Floor Plan First Story
Floor Plan Bonus Room
Floor Plan Bonus Room
Plan Collection

Can I modify this plan?

Yes! This plan can be customized—contact us for a free quote.

Additional Notes from Designer

Please Note that the designer's office will be closed from December 22 to January 3 inclusively. All inquiries and orders will be processed when the designer resumes office hours on January 4th, 2023.

House Plan Description

HPD-B2046 is one of those classy designs that always gets a second glance. This is a great example of what Country Homeplans should be.

Home Details

Summary
Plan #:140-1033
Starting at:$1045.00
Floors:2
Bedrooms:4
Full Baths:4
Half Baths:1
Garage:
Square Footage
Heated Area:3045 Sq. Ft.
First Floor:3045 Sq. Ft.
Unheated Area:
Bonus Room:597 Sq. Ft.
Dimensions
Architectural Styles
Exterior Wall Material
Brick
Roofing Type
Gable
Roofing Material
Asphalt Shingles
Roof Pitch
12/128/12
Ceiling Height
10 Foot Ceiling
Special Feature
FireplaceDining RoomMud RoomBonus RoomMain Level LaundrySplit BathroomStorageVaulted Ceilings
Garage Type
Attached GarageSide Entry
Fireplaces
Two Fireplaces
Building Lot Type
Flat Site
Kitchen Features
Kitchen IslandNook/Breakfast AreaWalk-in PantryPeninsula/Eating BarEat-In Kitchen
Porches and Exterior Features
Covered Front PorchCovered Rear PorchSundeck
Master Suite Features
Main Floor MasterMaster BathroomWalk In Closet

What’s Included

Most plan sets include the following:

icon text-secondary-400 includedFLOOR PLAN: Showing all dimensions, window and door locations, laminated beams, columns, floor materials, ceiling heights, fireplace size, and specifications.

icon text-secondary-400 includedGENERAL NOTES

icon text-secondary-400 includedFOUNDATION PLAN: Dimensioned plan detailing the location and size of footings, slabs, reinforcing steel, and other structural elements that are required to support the load of the upper floors.

icon text-secondary-400 includedFRONT, REAR, AND SIDE ELEVATIONS:The front, rear, and side elevations of the house as drawn. Shows placement of doors & windows on exterior of house, as well as roof pitches, ridge heights, and locations of chimney, exterior vents, etc. The elevations show the positioning of the final grade of the lot, exterior finishes, and other details that are necessary to give the home exterior architectural styling.

icon text-secondary-400 includedCROSS SECTIONS AND INTERIOR DETAILS:Explain certain special conditions more appropriately. A cross section is basically a view of the home (or parts of the home) if it were sliced down the center. These details can be helpful for the contractor.

What’s Not Included

These items are  NOT included:

icon text-secondary-400 includedArchitectural or Engineering Stamp - handled locally if required.

icon text-secondary-400 includedSite Plan - handled locally when required.

icon text-secondary-400 includedMechanical Drawings (location of heating and air equipment and ductwork) - your subcontractors handle this.

icon text-secondary-400 includedPlumbing Drawings (drawings showing the actual plumbing pipe sizes and locations) - your subcontractors handle this.

icon text-secondary-400 includedEnergy calculations - handled locally when required.

icon text-secondary-400 includedWindow Specifications to e provided by Manufacturer

Related House Plans

Plan Collection
Plan Collection
Plan Collection
Plan#153-1491
Starting at$1350
3568
Sq Ft
2
Story
4
Bed
4.5
Bath
2
Car
Plan Collection
Plan Collection
Plan Collection
Plan#141-1092
Starting at$1795
3000
Sq Ft
2
Story
4
Bed
4
Bath
3
Car
Plan Collection
Plan Collection
Plan Collection
Plan#163-1048
Starting at$1335
3231
Sq Ft
2
Story
4
Bed
4
Bath
2
Car
View All

Other Plans By This Designer

Plan Collection
Plan Collection
Plan Collection
Plan#140-1086
Starting at$845
1768
Sq Ft
1
Story
3
Bed
2
Bath
2
Car
Plan Collection
Plan Collection
Plan Collection
Plan#140-1120
Starting at$945
2292
Sq Ft
1
Story
4
Bed
3
Bath
2
Car
Plan Collection
Plan Collection
Plan Collection
Plan#140-1114
Starting at$945
2694
Sq Ft
1
Story
4
Bed
3
Bath
2
Car