4-Bedroom, 2480 Sq Ft Traditional Plan with Outdoor Kitchen

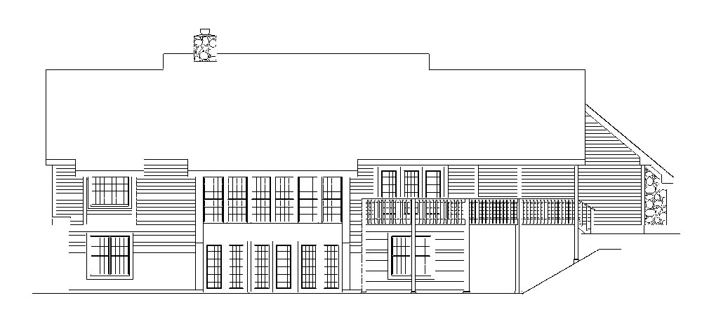
Front elevation of Traditional home (ThePlanCollection: House Plan #138-1035)

Images/Plans copyrighted by designer. Photos may reflect homeowner modifications.

About House Plan #138-1035

Sq Ft
2480
Sq Ft
Bedrooms
4
Bedrooms
Bathroom
2
Baths
Half Baths
1
Half Baths
Bedrooms
2
Cars
Bedrooms
1
Stories
Bedrooms
77' 0'
Width
Bedrooms
37
Depth
Starting at$1150.00What's included
STEP 1Bedrooms
STEP 2Bedrooms
STEP 3Bedrooms

Subtotal:$0
Plan Collection

How much will it cost to build?

Estimate your costs based on your location and materials.

Free Cost Instant Estimator

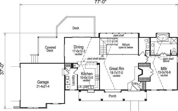
Floor Plans

Floor Plan Main Level
Floor Plan Main Level
Lower Level
Lower Level
Plan Collection

Can I modify this plan?

Yes! This plan can be customized—contact us for a free quote.

Additional Notes from Designer

PLEASE NOTE: Not all plans from this designer can be modified! Please check before sending in a mod request. Thank you!

House Plan Description

<p>This lovely Traditional style home with Country influences (House Plan #138-1035) has 2480 square feet of living space. The 1-story floor plan includes 4 bedrooms.</p>

Home Details

Summary
Plan #:138-1035
Starting at:$1150.00
Floors:1
Bedrooms:4
Full Baths:2
Half Baths:1
Garage:
Square Footage
Heated Area:2480 Sq. Ft.
Basement:988 Sq. Ft.
First Floor:1492 Sq. Ft.
Unheated Area:
Dimensions
Architectural Styles
Exterior Wall Material
Vinyl SidingRock/StoneWood Siding
Roofing Type
GableGable/Dormer
Roofing Material
Tiles
Special Feature
Dining RoomFamily RoomMain Level LaundryVaulted CeilingsOpen Floor Plan
Garage Type
Attached GarageSide Entry
Exterior Wall Framing
2x4
Building Lot Type
Down Site
Kitchen Features
Walk-in PantryPeninsula/Eating BarEat-In Kitchen
Porches and Exterior Features
Covered Front PorchCovered Rear PorchSundeck
Master Suite Features
Main Floor MasterSplit Master Bedroom

What’s Included

Most plan sets include the following:

icon text-secondary-400 includedCover sheet

icon text-secondary-400 includedFoundation plan

icon text-secondary-400 includedFloor plans

icon text-secondary-400 includedExterior elevations

icon text-secondary-400 includedRoof plan

icon text-secondary-400 includedDetails Sheet

icon text-secondary-400 includedSections

icon text-secondary-400 includedInterior elevations

What’s Not Included

These items are  NOT included:

icon text-secondary-400 includedArchitectural or Engineering Stamp - handled locally if required.

icon text-secondary-400 includedSite Plan - handled locally when required.

icon text-secondary-400 includedMechanical Drawings (location of heating and air equipment and ductwork) - your subcontractors handle this.

icon text-secondary-400 includedPlumbing Drawings (drawings showing the actual plumbing pipe sizes and locations) - your subcontractors handle this.

icon text-secondary-400 includedEnergy calculations - handled locally when required.

Related House Plans

Plan Collection
Plan Collection
Plan Collection
Plan#142-1170
Starting at$1395
2641
Sq Ft
1
Story
4
Bed
2.5
Bath
2
Car
Plan Collection
Plan Collection
Plan Collection
Plan#142-1204
Starting at$1345
2373
Sq Ft
1
Story
4
Bed
2.5
Bath
2
Car
Plan Collection
Plan Collection
Plan Collection
Plan#141-1148
Starting at$1570
2200
Sq Ft
1
Story
4
Bed
2.5
Bath
2
Car
View All

Other Plans By This Designer

Plan Collection
Plan Collection
Plan Collection
Plan#138-1209
Starting at$450
421
Sq Ft
1
Story
1
Bed
1
Bath
1
Car
Plan Collection
Plan Collection
Plan Collection
Plan#138-1314
Starting at$1050
1536
Sq Ft
1
Story
4
Bed
2
Bath
0
Car
Plan Collection
Plan Collection
Plan Collection
Plan#138-1315
Starting at$1050
1536
Sq Ft
1
Story
4
Bed
2
Bath
0
Car