4-Bed, 2420 Sq Ft Southern Country House with Amazing Kitchen

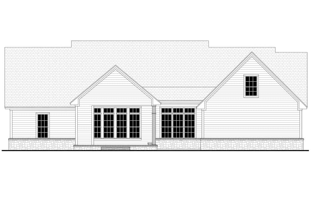
Front elevation of Country home (ThePlanCollection: House Plan #142-1131)

Images/Plans copyrighted by designer. Photos may reflect homeowner modifications.

About House Plan #142-1131

Sq Ft
2420
Sq Ft
Bedrooms
4
Bedrooms
Bathroom
2
Baths
Half Baths
1
Half Baths
Bedrooms
3
Cars
Bedrooms
1.5
Stories
Bedrooms
71' 6'
Width
Bedrooms
78
Depth
Starting at$1345.00What's included
STEP 1Bedrooms
STEP 2Bedrooms
STEP 3Bedrooms

Subtotal:$0
Plan Collection

How much will it cost to build?

Estimate your costs based on your location and materials.

Free Cost Instant Estimator

Floor Plans

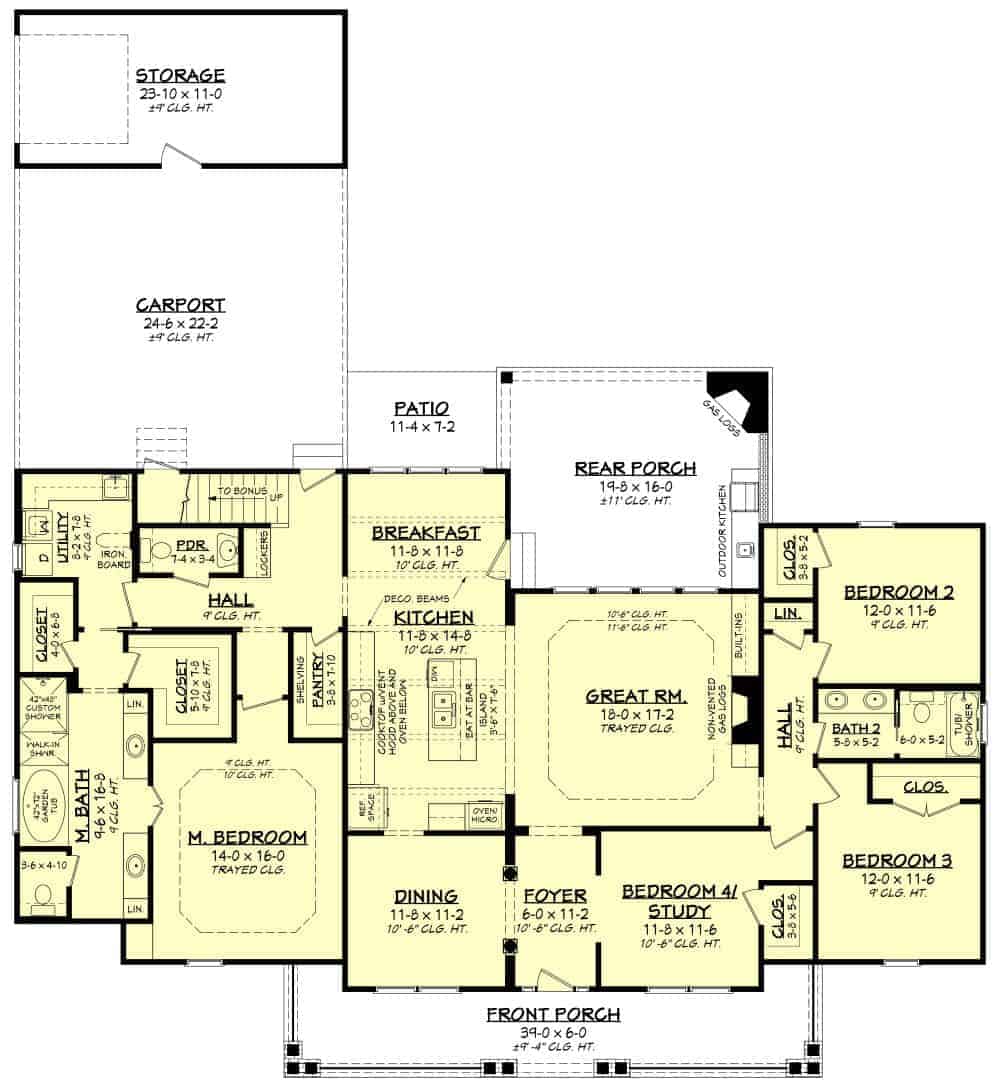
Floor Plan Main Level
Floor Plan Main Level
Basement Option Stair Location
Basement Option Stair Location
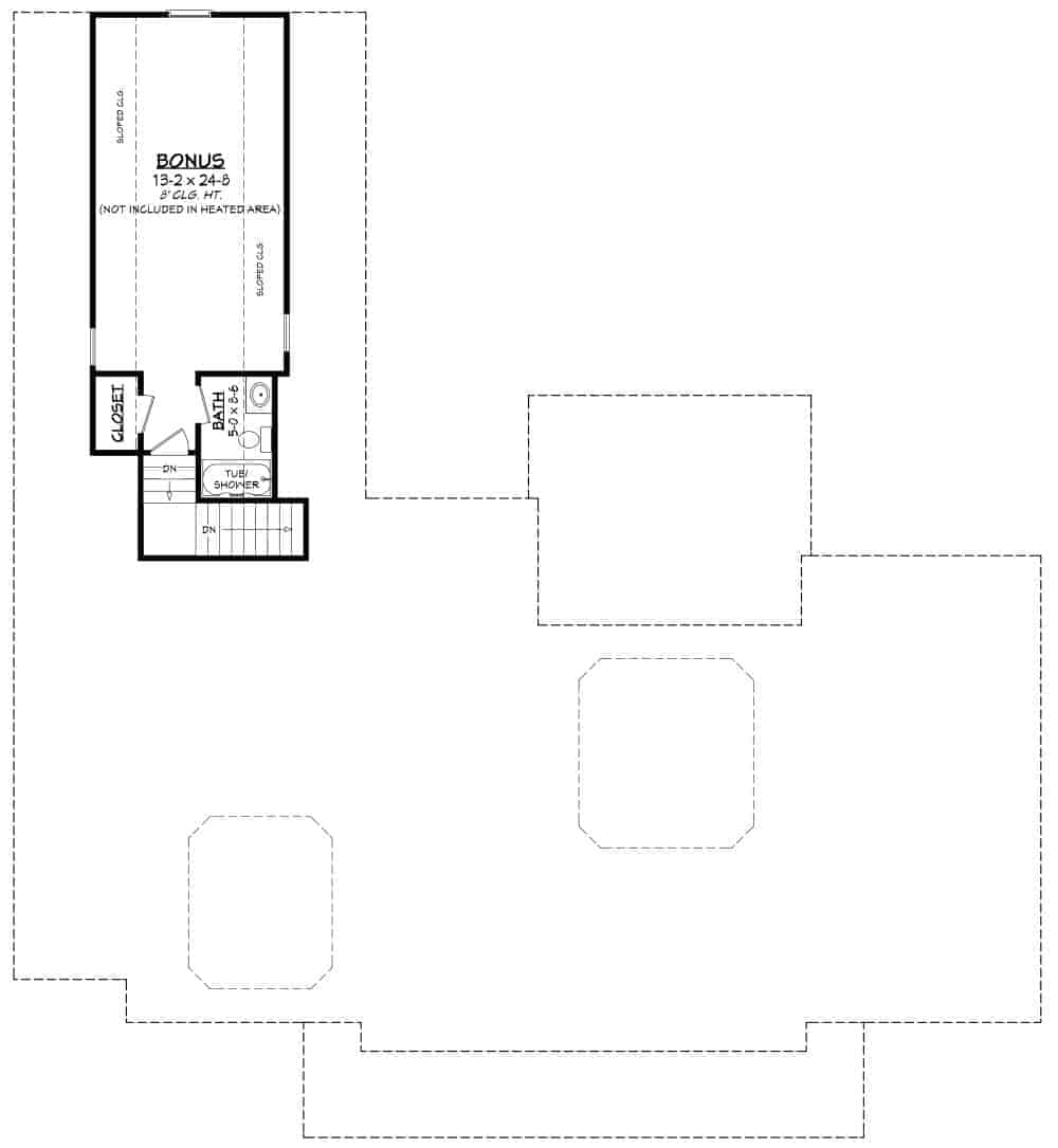
Floor Plan Bonus Room
Floor Plan Bonus Room
Plan Collection

Can I modify this plan?

Yes! This plan can be customized—contact us for a free quote.

Additional Notes from Designer

On some plans, Basement Foundations, Walkout Basement Foundations & 2x6 Conversions could take up to ONE WEEK to produce. Materials Lists could take up to FOUR WEEKS to produce and they will be for the ORIGINAL plan! Any modifications will NOT be reflected on the Materials List. NOTE FROM DESIGNER: If you purchase a CAD, you will automatically receive the unlimited build license - no need to purchase separately!

Please note: The total square footage of this plan is 4245. With the basement option, the depth of the house increases to 82' 4" and total heated square feet increases to 2473.

House Plan Description

This plan is Southern comfort at its best! 

This magnificent home has such great curb appeal. The front porch is perfect for sitting out enjoying long days. Inside, the floor plan offers 4 large bedrooms, 2.5 baths, and over 2400 living sq ft. The great room has a stunning fireplace and views to the backyard allowing the home to be consumed with natural lighting. The rear porch offers an outdoor fireplace and optional outdoor kitchen, perfect for get-togethers with family and friends. In the kitchen, a raised bar offers extra seating while lots of cabinets are perfect...

Home Details

Summary
Plan #:142-1131
Starting at:$1345.00
Floors:1.5
Bedrooms:4
Full Baths:2
Half Baths:1
Garage:
Square Footage
Heated Area:2420 Sq. Ft.
First Floor:2420 Sq. Ft.
Unheated Area:
First Floor:278 Sq. Ft.
Bonus Room:440 Sq. Ft.
Garage:551 Sq. Ft.
Porch:556 Sq. Ft.
Dimensions
Width:71' 6''
Depth:78' 4''
Architectural Styles
Exterior Wall Material
Rock/StoneWood Siding
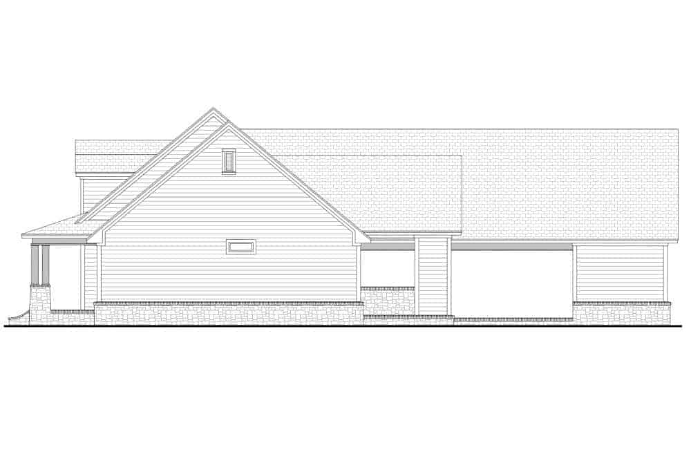
Roofing Type
Gable
Roofing Material
Asphalt Shingles
Roof Pitch
12/1210/12
Ceiling Height
10 Foot Ceiling9 Foot Ceiling8 Foot Ceiling11 Foot Ceiling
Special Feature
FireplaceDining RoomMud RoomBonus RoomMain Level LaundrySplit BathroomStorageOpen Floor Plan
Garage Type
Attached GarageCarport
Fireplaces
Two Fireplaces
Exterior Wall Framing
2x4
Building Lot Type
Flat Site
Kitchen Features
Kitchen IslandNook/Breakfast AreaWalk-in PantryOutdoor KitchenPeninsula/Eating BarSecondary Kitchen
Porches and Exterior Features
Covered Front PorchCovered Rear PorchPatio
Master Suite Features
Main Floor MasterMaster BathroomWalk In ClosetSplit Master Bedroom

What’s Included

Most plan sets include the following:

icon text-secondary-400 includedCover sheet

icon text-secondary-400 includedFoundation plan

icon text-secondary-400 includedDimensional floor plan

icon text-secondary-400 includedExterior views

icon text-secondary-400 includedRoof plan

icon text-secondary-400 includedElectrical layout

icon text-secondary-400 includedWall section(s)

icon text-secondary-400 includedBuilding section(s)

icon text-secondary-400 includedCabinet elevations

What’s Not Included

These items are  NOT included:

icon text-secondary-400 includedArchitectural or Engineering Stamp - handled locally if required.

icon text-secondary-400 includedSite Plan - handled locally when required.

icon text-secondary-400 includedMechanical Drawings (location of heating and air equipment and ductwork) - your subcontractors handle this.

icon text-secondary-400 includedPlumbing Drawings (drawings showing the actual plumbing pipe sizes and locations) - your subcontractors handle this.

icon text-secondary-400 includedEnergy calculations - handled locally when required.

icon text-secondary-400 includedNo Framing

Related House Plans

Plan Collection
Plan Collection
Plan Collection
Plan#153-1940
Starting at$1550
2180
Sq Ft
1.5
Story
4
Bed
2.5
Bath
3
Car
Plan Collection
Plan Collection
Plan Collection
Plan#142-1160
Starting at$1345
2399
Sq Ft
1.5
Story
4
Bed
2.5
Bath
2
Car
Plan Collection
Plan Collection
Plan Collection
Plan#153-1781
Starting at$1200
2470
Sq Ft
1.5
Story
4
Bed
2.5
Bath
2
Car
View All

Other Plans By This Designer

Plan Collection
Plan Collection
Plan Collection
Plan#142-1244
Starting at$1545
3086
Sq Ft
1
Story
4
Bed
3.5
Bath
3
Car
Plan Collection
Plan Collection
Plan Collection
Plan#142-1256
Starting at$1295
1599
Sq Ft
1
Story
3
Bed
2.5
Bath
2
Car
Plan Collection
Plan Collection
Plan Collection
Plan#142-1265
Starting at$1245
1448
Sq Ft
1
Story
2
Bed
2
Bath
1
Car