3-Bedroom, 1963 Sq Ft Country Plan with Main Floor Master

Front elevation of Country home (ThePlanCollection: House Plan #192-1018)

Images/Plans copyrighted by designer. Photos may reflect homeowner modifications.

About House Plan #192-1018

Sq Ft
1963
Sq Ft
Bedrooms
3
Bedrooms
Bathroom
2
Baths
Half Baths
0
Half Baths
Bedrooms
0
Cars
Bedrooms
1
Stories
Bedrooms
63' 2'
Width
Bedrooms
48
Depth
Starting at$625.00What's included
STEP 1Bedrooms
STEP 2Bedrooms
STEP 3Bedrooms

Subtotal:$0
Plan Collection

How much will it cost to build?

Estimate your costs based on your location and materials.

Free Cost Instant Estimator

Floor Plans

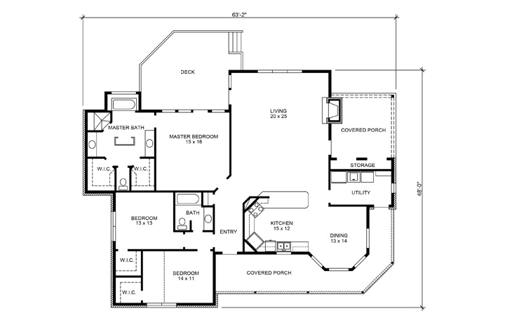
Floor Plan Main Level
Floor Plan Main Level
Plan Collection

Can I modify this plan?

Yes! This plan can be customized—contact us for a free quote.

Additional Notes from Designer

Please Note: The Reproducible Master for this plan is sent to you on bond paper that reproduces well.

House Plan Description

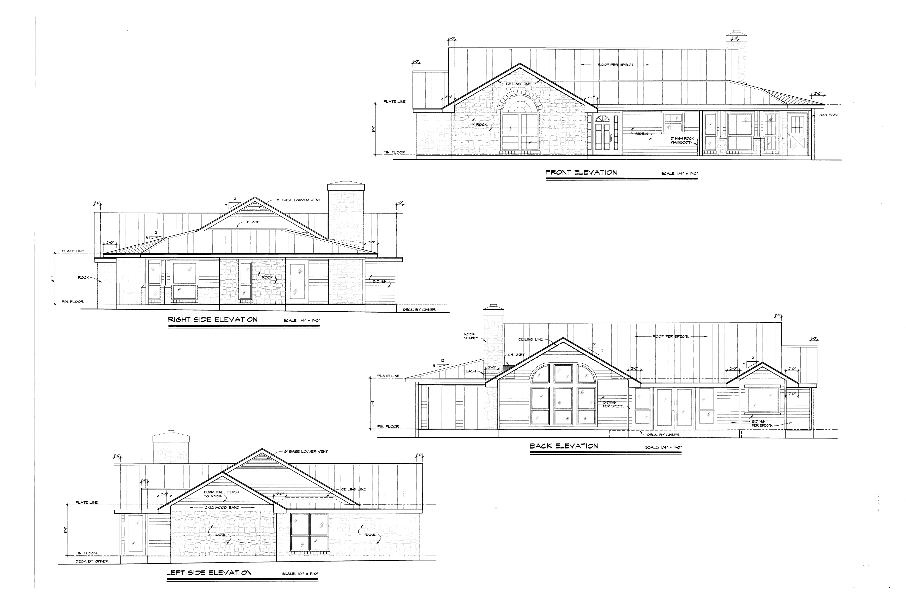
This remarkable country-style ranch home has a rustic and natural vibe to it with its stone exterior, wood siding, and wraparound porch.

  • An open floor plan creates a spacious living area with a ceiling height up to 13' 8". 
  • A set of arched windows bring in plenty of sunshine while the fireplace warms things up in the evening.
  • The kitchen and dining area are well proportioned and an eating bar is ideal for meals on-the-go.
  • THe master suite is impressivem including a large master bedroom with access to the rear deck, a master...

Home Details

Summary
Plan #:192-1018
Starting at:$625.00
Floors:1
Bedrooms:3
Full Baths:2
Half Baths:0
Garage:
Square Footage
Heated Area:1963 Sq. Ft.
First Floor:1963 Sq. Ft.
Unheated Area:
Porch:763 Sq. Ft.
Dimensions
Width:63' 2''
Ridge Height:17' 0''
Architectural Styles
Exterior Wall Material
Vinyl SidingRock/StoneWood Siding
Roofing Type
Gable
Roofing Material
Asphalt Shingles
Ceiling Height
8 Foot Ceiling
Special Feature
FireplaceMain Level LaundryStorageOpen Floor Plan
Fireplaces
One Fireplace
Exterior Wall Framing
2x6
Kitchen Features
Peninsula/Eating Bar
Porches and Exterior Features
Wrap Around PorchCovered Rear PorchSundeck
Master Suite Features
Main Floor MasterMaster BathroomWalk In Closet

What’s Included

Most plan sets include the following:

icon text-secondary-400 includedFLOOR PLAN: Showing all dimensions, window and door locations, laminated beams, columns, floor materials, ceiling heights, fireplace size, and specifications.

icon text-secondary-400 includedELECTRICAL LAYOUT:Specifications, notes, schedules, and plan defining the location of panels, service, lighting fixtures, switches, outlets, fans, etc.

icon text-secondary-400 includedFRONT, REAR, AND SIDE ELEVATIONS:The front, rear, and side elevations of the house as drawn. Shows placement of doors & windows on exterior of house, as well as roof pitches, ridge heights, and locations of chimney, exterior vents, etc. The elevations show the positioning of the final grade of the lot, exterior finishes, and other details that are necessary to give the home exterior architectural styling.

What’s Not Included

These items are  NOT included:

icon text-secondary-400 includedArchitectural or Engineering Stamp - handled locally if required.

icon text-secondary-400 includedSite Plan - handled locally when required.

icon text-secondary-400 includedMechanical Drawings (location of heating and air equipment and ductwork) - your subcontractors handle this.

icon text-secondary-400 includedPlumbing Drawings (drawings showing the actual plumbing pipe sizes and locations) - your subcontractors handle this.

icon text-secondary-400 includedEnergy calculations - handled locally when required.

Related House Plans

Plan Collection
Plan Collection
Plan Collection
Plan#117-1092
Starting at$1095
2091
Sq Ft
1
Story
3
Bed
2.5
Bath
2
Car
Plan Collection
Plan Collection
Plan Collection
Plan#106-1276
Starting at$1295
2344
Sq Ft
1
Story
3
Bed
2.5
Bath
2
Car
Plan Collection
Plan Collection
Plan Collection
Plan#141-1243
Starting at$1485
1640
Sq Ft
1
Story
3
Bed
2
Bath
2
Car
View All

Other Plans By This Designer

Plan Collection
Plan Collection
Plan Collection
Plan#192-1001
Starting at$500
1270
Sq Ft
1
Story
2
Bed
2
Bath
0
Car
Plan Collection
Plan Collection
Plan Collection
Plan#192-1030
Starting at$500
2125
Sq Ft
1
Story
3
Bed
2
Bath
0
Car
Plan Collection
Plan Collection
Plan Collection
Plan#192-1061
Starting at$475
672
Sq Ft
1
Story
1
Bed
1
Bath
0
Car