3-Bedroom, 2073 Sq Ft Country Plan with Outdoor Kitchen

Photo-realistic rendering of Country home plan (ThePlanCollection: House Plan #142-1177)

Images/Plans copyrighted by designer. Photos may reflect homeowner modifications.

About House Plan #142-1177

Sq Ft
2073
Sq Ft
Bedrooms
3
Bedrooms
Bathroom
2
Baths
Half Baths
0
Half Baths
Bedrooms
2
Cars
Bedrooms
1
Stories
Bedrooms
66' 6'
Width
Bedrooms
54
Depth
Starting at$1345.00What's included
STEP 1Bedrooms
STEP 2Bedrooms
STEP 3Bedrooms

Subtotal:$0
Plan Collection

How much will it cost to build?

Estimate your costs based on your location and materials.

Free Cost Instant Estimator

Floor Plans

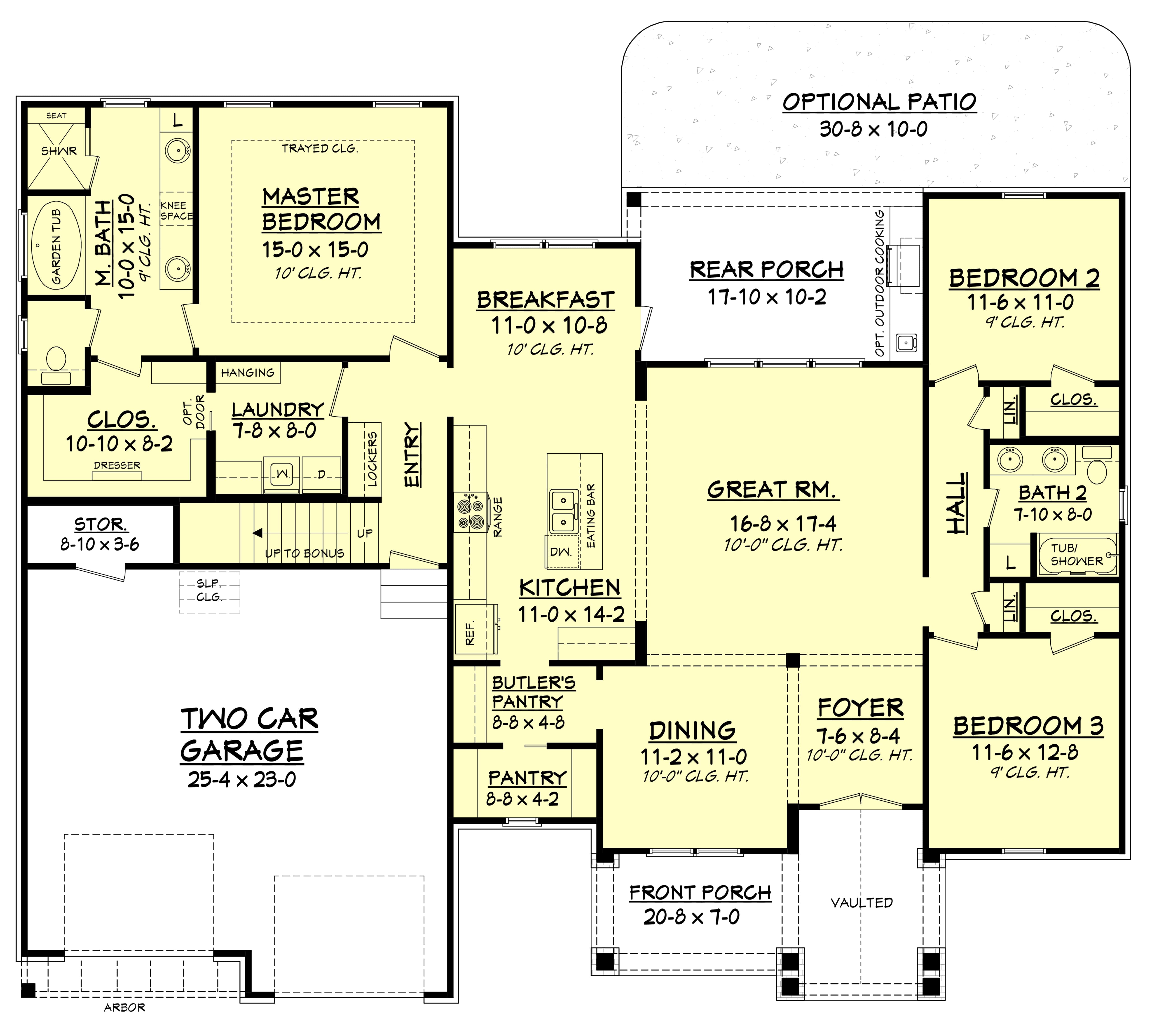
Floor Plan Main Level
Floor Plan Main Level
Floor Plan Basement
Floor Plan Basement
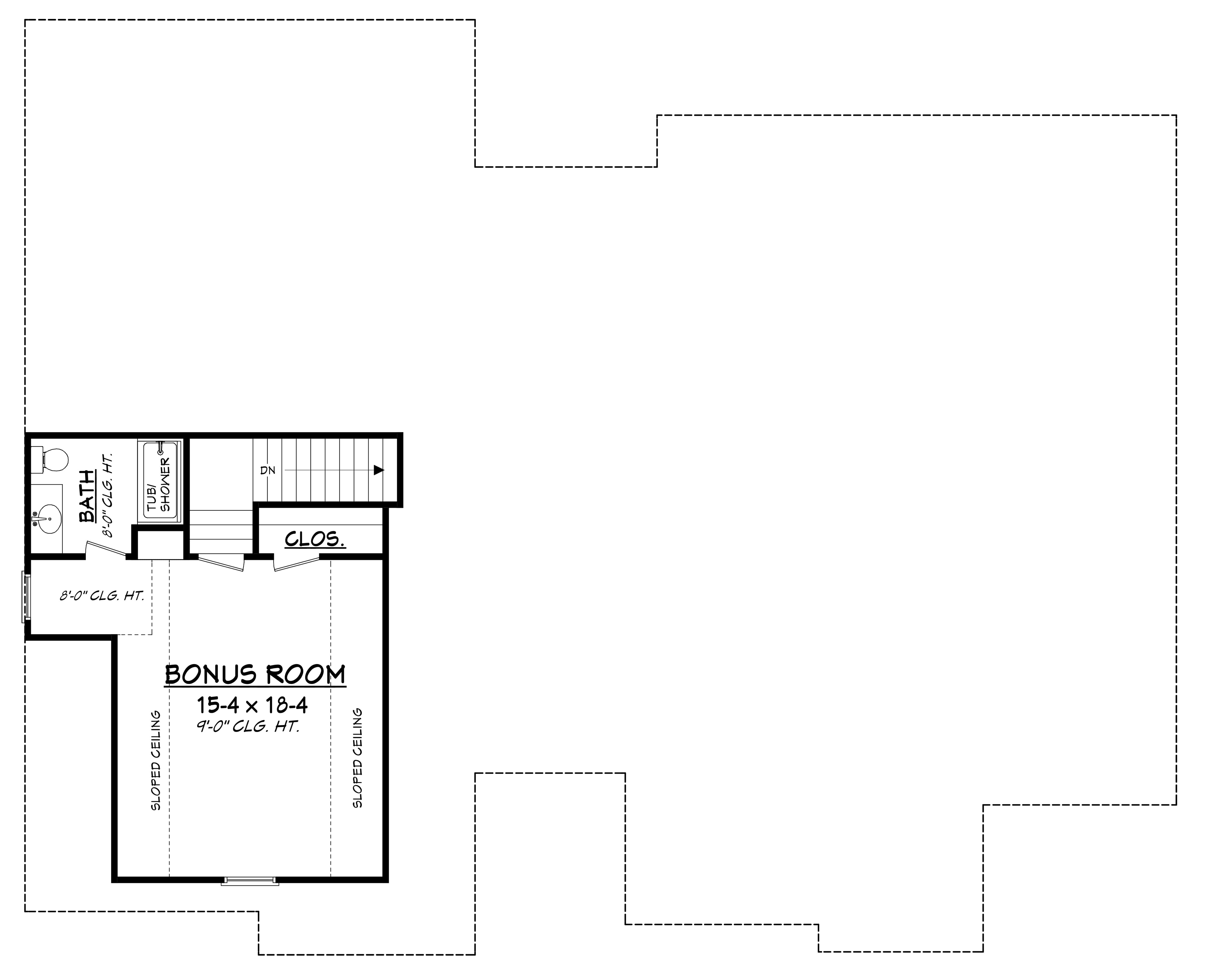
Floor Plan Bonus Room
Floor Plan Bonus Room
Plan Collection

Can I modify this plan?

Yes! This plan can be customized—contact us for a free quote.

Additional Notes from Designer

On some plans, Basement Foundations, Walkout Basement Foundations & 2x6 Conversions could take up to ONE WEEK to produce. Materials Lists could take up to FOUR WEEKS to produce and they will be for the ORIGINAL plan! Any modifications will NOT be reflected on the Materials List. NOTE FROM DESIGNER: If you purchase a CAD, you will automatically receive the unlimited build license - no need to purchase separately!

Please note: The total square footage of this plan is 3525. The depth with the basement option will be adding 4.5 feet.

House Plan Description

With wonderful Craftsman characteristics, this country home surpasses your family’s expectations with overwhelming amenities and stunning features. The curb appeal is awe-inspiring. The wood columns, rock, and stone facade combine for a rustic tastefulness to the home. A vaulted front porch gives an added detail. 

The sizable foyer is the perfect place to take in the brilliance of the home. The open floor plan and high ceilings give the home a bigger feel and a smart layout. The great room has access and perfect views to the rear covered porch and outdoor...

Home Details

Summary
Plan #:142-1177
Starting at:$1345.00
Floors:1
Bedrooms:3
Full Baths:2
Half Baths:0
Garage:
Square Footage
Heated Area:2073 Sq. Ft.
First Floor:2073 Sq. Ft.
Unheated Area:
Bonus Room:430 Sq. Ft.
Garage:633 Sq. Ft.
Porch:354 Sq. Ft.
Dimensions
Width:66' 6''
Architectural Styles
Exterior Wall Material
Aluminum SidingVinyl SidingRock/Stone
Roofing Type
Hip
Roofing Material
Asphalt Shingles
Roof Pitch
12/123/124/129/12
Ceiling Height
10 Foot Ceiling9 Foot Ceiling
Special Feature
Dining RoomMud RoomBonus RoomMain Level LaundryColor PhotosSplit BathroomStorageOpen Floor PlanInterior Photos
Garage Type
Attached GarageFront Entry
Exterior Wall Framing
2x4
Kitchen Features
Kitchen IslandButler's PantryNook/Breakfast AreaWalk-in PantryOutdoor KitchenPeninsula/Eating Bar
Porches and Exterior Features
Covered Front PorchCovered Rear Porch
Master Suite Features
Main Floor MasterMaster BathroomWalk In ClosetSplit Master Bedroom

What’s Included

Most plan sets include the following:

icon text-secondary-400 includedCover sheet

icon text-secondary-400 includedFoundation plan

icon text-secondary-400 includedDimensional floor plan

icon text-secondary-400 includedExterior views

icon text-secondary-400 includedRoof plan

icon text-secondary-400 includedElectrical layout

icon text-secondary-400 includedWall section(s)

icon text-secondary-400 includedBuilding section(s)

icon text-secondary-400 includedCabinet elevations

What’s Not Included

These items are  NOT included:

icon text-secondary-400 includedArchitectural or Engineering Stamp - handled locally if required.

icon text-secondary-400 includedSite Plan - handled locally when required.

icon text-secondary-400 includedMechanical Drawings (location of heating and air equipment and ductwork) - your subcontractors handle this.

icon text-secondary-400 includedPlumbing Drawings (drawings showing the actual plumbing pipe sizes and locations) - your subcontractors handle this.

icon text-secondary-400 includedEnergy calculations - handled locally when required.

icon text-secondary-400 includedNo Framing

Related House Plans

Plan Collection
Plan Collection
Plan Collection
Plan#142-1210
Starting at$1345
2074
Sq Ft
1.5
Story
3
Bed
2
Bath
2
Car
Plan Collection
Plan Collection
Plan Collection
Plan#142-1173
Starting at$1345
2329
Sq Ft
1
Story
4
Bed
2.5
Bath
2
Car
Plan Collection
Plan Collection
Plan Collection
Plan#142-1174
Starting at$1345
2329
Sq Ft
1
Story
4
Bed
2.5
Bath
2
Car
View All

Other Plans By This Designer

Plan Collection
Plan Collection
Plan Collection
Plan#142-1244
Starting at$1545
3086
Sq Ft
1
Story
4
Bed
3.5
Bath
3
Car
Plan Collection
Plan Collection
Plan Collection
Plan#142-1256
Starting at$1295
1599
Sq Ft
1
Story
3
Bed
2.5
Bath
2
Car
Plan Collection
Plan Collection
Plan Collection
Plan#142-1265
Starting at$1245
1448
Sq Ft
1
Story
2
Bed
2
Bath
1
Car