3-Bedroom, 2585 Sq Ft Cottage Plan with Eat-In Kitchen

Front Elevation of this Cottage House (#132-1641) at The Plan Collection.

Images/Plans copyrighted by designer. Photos may reflect homeowner modifications.

About House Plan #132-1641

Sq Ft
2585
Sq Ft
Bedrooms
3
Bedrooms
Bathroom
3
Baths
Half Baths
0
Half Baths
Bedrooms
2
Cars
Bedrooms
1
Stories
Bedrooms
48' 0'
Width
Bedrooms
36
Depth
Starting at$1245.00What's included
STEP 1Bedrooms
STEP 2Bedrooms
STEP 3Bedrooms

Subtotal:$0
Plan Collection

How much will it cost to build?

Estimate your costs based on your location and materials.

Free Cost Instant Estimator

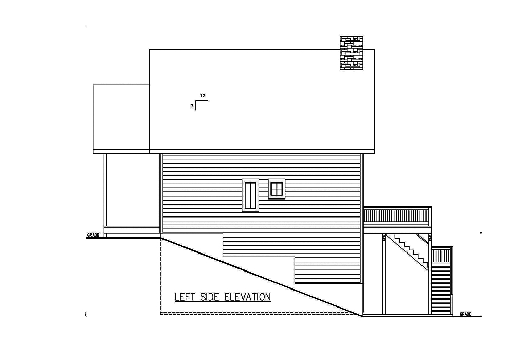
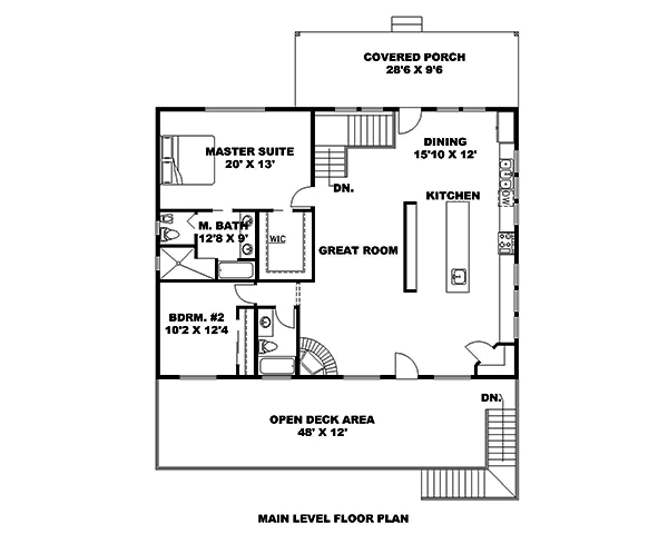
Floor Plans

Floor Plan Main Level
Floor Plan Main Level
Floor Plan Basement
Floor Plan Basement
Plan Collection

Can I modify this plan?

Yes! This plan can be customized—contact us for a free quote.

Additional Notes from Designer

PLEASE NOTE! The CAD - Unlimited package is NOT an unlimited license - it is a license to build up to 5 homes.

House Plan Description

This delightful cottage style home has 2585 square feet of living space. The one-story floor plan includes 3 bedrooms and 3 bathrooms. The exterior of this home has a welcoming covered front porch. Inside, this house design's floor plan includes a well-designed main floor master.

Home Details

Summary
Plan #:132-1641
Starting at:$1245.00
Floors:1
Bedrooms:3
Full Baths:3
Half Baths:0
Garage:
Square Footage
Heated Area:2585 Sq. Ft.
Basement:857 Sq. Ft.
First Floor:1728 Sq. Ft.
Unheated Area:
Garage:871 Sq. Ft.
Dimensions
Architectural Styles
Exterior Wall Material
Vinyl SidingWood Siding
Roofing Type
Gable
Roofing Material
Asphalt Shingles
Roof Pitch
7/12
Ceiling Height
12 Foot Ceiling
Special Feature
FireplaceMud RoomOpen Floor Plan
Garage Type
Under Main Floor Entry
Fireplaces
One Fireplace
Exterior Wall Framing
2x6
Kitchen Features
Kitchen IslandWalk-in PantryPeninsula/Eating Bar
Porches and Exterior Features
Covered Front PorchCovered Rear Porch
Master Suite Features
Main Floor MasterMaster BathroomWalk In Closet

What’s Included

Most plan sets include the following:

icon text-secondary-400 includedExterior elevations: shows the home on all four sides, calls out exterior finishes, rooflines, window and door locations.

icon text-secondary-400 includedFloor plans: includes interior and exterior dimensions, window/door schedule, wall framing details.

icon text-secondary-400 includedFoundation plan: shows footing, stem wall, and slab placement, including all connection details.

icon text-secondary-400 includedFloor and roof framing plans show truss/rafter placements, including all beams/connection details.

icon text-secondary-400 includedCross-sections: cut-through view of the structure from roof to foundation, shows framing, plate heights, insulation, etc.

icon text-secondary-400 includedElectrical layout

icon text-secondary-400 includedGeneral notes/details to cover the entirety of the project

What’s Not Included

These items are  NOT included:

icon text-secondary-400 includedArchitectural or Engineering Stamp - handled locally if required.

icon text-secondary-400 includedSite Plan - handled locally when required.

icon text-secondary-400 includedMechanical Drawings (location of heating and air equipment and ductwork) - your subcontractors handle this.

icon text-secondary-400 includedPlumbing Drawings (drawings showing the actual plumbing pipe sizes and locations) - your subcontractors handle this.

icon text-secondary-400 includedEnergy calculations - handled locally when required.

Related House Plans

Plan Collection
Plan Collection
Plan Collection
Plan#133-1031
Starting at$0
1991
Sq Ft
1
Story
3
Bed
3
Bath
2
Car
Plan Collection
Plan Collection
Plan Collection
Plan#198-1050
Starting at$2195
2184
Sq Ft
1
Story
3
Bed
3
Bath
2
Car
Plan Collection
Plan Collection
Plan Collection
Plan#198-1061
Starting at$1795
1997
Sq Ft
1
Story
3
Bed
3
Bath
2
Car
View All

Other Plans By This Designer

Plan Collection
Plan Collection
Plan Collection
Plan#132-1697
Starting at$1145
1176
Sq Ft
1
Story
2
Bed
2
Bath
0
Car
Plan Collection
Plan Collection
Plan Collection
Plan#132-1313
Starting at$1245
2281
Sq Ft
2
Story
3
Bed
2.5
Bath
0
Car
Plan Collection
Plan Collection
Plan Collection
Plan#132-1107
Starting at$995
689
Sq Ft
1
Story
1
Bed
1
Bath
0
Car