4-Bedroom, 3467 Sq Ft Modern Farmhouse Plan with Second Floor Master

Front elevation of Modern Farmhouse home (ThePlanCollection: House Plan #100-1332)

Images/Plans copyrighted by designer. Photos may reflect homeowner modifications.

About House Plan #100-1332

Sq Ft
3467
Sq Ft
Bedrooms
4
Bedrooms
Bathroom
3
Baths
Half Baths
1
Half Baths
Bedrooms
3
Cars
Bedrooms
2
Stories
Bedrooms
104' 0'
Width
Bedrooms
72
Depth
Starting at$1800.00What's included
STEP 1Bedrooms
STEP 2Bedrooms
STEP 3Bedrooms

Subtotal:$0
Plan Collection

How much will it cost to build?

Estimate your costs based on your location and materials.

Free Cost Instant Estimator

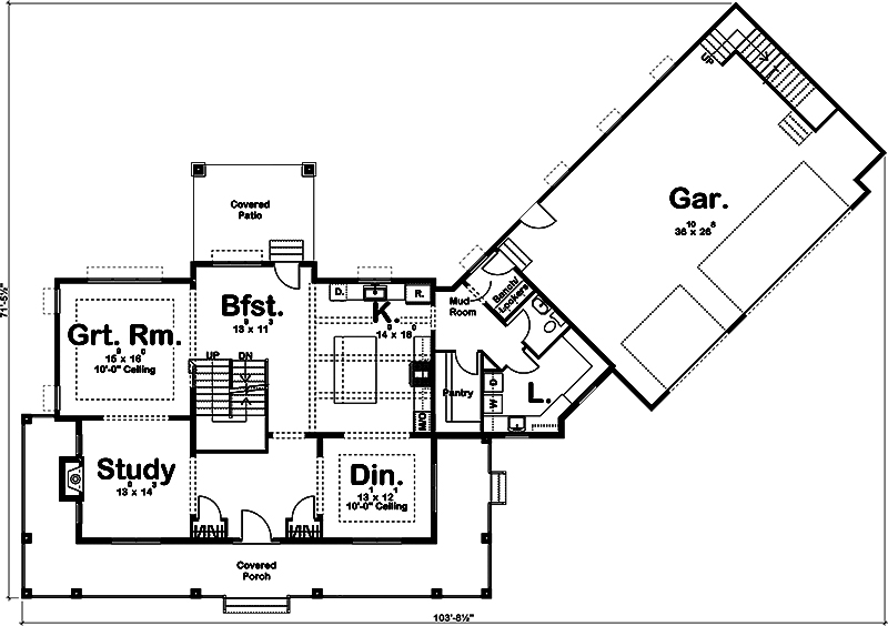
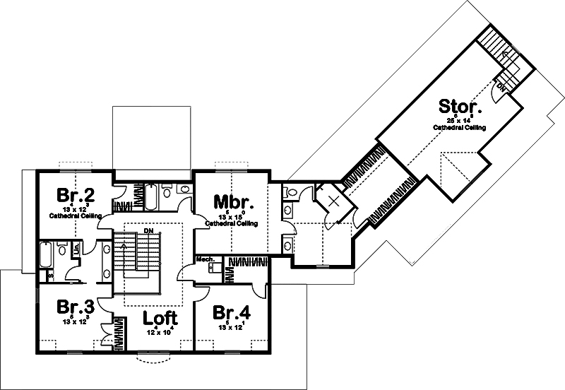
Floor Plans

Floor Plan Main Level
Floor Plan Main Level
Floor Plan Upper Level
Floor Plan Upper Level
Plan Collection

Can I modify this plan?

Yes! This plan can be customized—contact us for a free quote.

Additional Notes from Designer

The CAD File formats are drawn in SoftPlan. PLEASE NOTE: Plans by this designer do NOT come with FRAMING! This designer does not do ICF.

House Plan Description

This impressive Modern Farmhouse style home with Craftsman influences has 3467 square feet of living space. The 2-story floor plan includes 4 bedrooms.

  • Wraparound porch
  • Study with fireplace
  • Oversized kitchen island with an eating bar
  • Cathedral ceiling in the master suite

Home Details

Summary
Plan #:100-1332
Starting at:$1800.00
Floors:2
Bedrooms:4
Full Baths:3
Half Baths:1
Garage:
Square Footage
Heated Area:3467 Sq. Ft.
First Floor:1776 Sq. Ft.
Second Floor:1691 Sq. Ft.
Unheated Area:
Garage:1114 Sq. Ft.
Dimensions
Architectural Styles
Exterior Wall Material
Vinyl SidingWood Siding
Roofing Type
Gable
Roofing Material
Metal
Roof Pitch
12/124/1210/12
Ceiling Height
10 Foot Ceiling8 Foot Ceiling
Special Feature
FireplaceDining RoomMud RoomMain Level LaundryLibraryLoftSplit Bathroom
Garage Type
Attached GarageSide Entry
Fireplaces
One Fireplace
Exterior Wall Framing
2x4
Kitchen Features
Kitchen IslandNook/Breakfast AreaWalk-in PantryPeninsula/Eating BarEat-In Kitchen
Porches and Exterior Features
Wrap Around PorchCovered Rear Patio
Master Suite Features
Master BathroomWalk In ClosetSecond Floor Master

What’s Included

Most plan sets include the following:

icon text-secondary-400 includedCover Sheet: Shows the front elevation and typical notes and requirements.

icon text-secondary-400 includedExterior Elevations: Shows the front, rear and sides of the home including exterior materials, details and measurements

icon text-secondary-400 includedFloor Plans: Shows the placement of walls and the dimensions for rooms, doors, windows, stairways, etc. for each floor.

icon text-secondary-400 includedElectrical Plans: Shows the location of outlets, fixtures and switches. They are shown as a separate sheet to make the floor plans more legible

icon text-secondary-400 includedFoundation Plans: will include a basement, crawlspace or slab depending on what is available for that home plan. (Please refer to the home plan's details sheet to see what foundation options are available for a specific home plan.) The foundation plan details the layout and construction of the foundation.

icon text-secondary-400 includedRoof Plan

icon text-secondary-400 includedTypical wall section

icon text-secondary-400 includedTypical stair section

icon text-secondary-400 includedCabinets are shown on all plans.

What’s Not Included

These items are  NOT included:

icon text-secondary-400 includedArchitectural or Engineering Stamp - handled locally if required.

icon text-secondary-400 includedSite Plan - handled locally when required.

icon text-secondary-400 includedMechanical Drawings (location of heating and air equipment and ductwork) - your subcontractors handle this.

icon text-secondary-400 includedPlumbing Drawings (drawings showing the actual plumbing pipe sizes and locations) - your subcontractors handle this.

icon text-secondary-400 includedEnergy calculations - handled locally when required.

Related House Plans

Plan Collection
Plan Collection
Plan Collection
Plan#116-1080
Starting at$0
3885
Sq Ft
2
Story
4
Bed
3.5
Bath
3
Car
Plan Collection
Plan Collection
Plan Collection
Plan#161-1067
Starting at$2400
3897
Sq Ft
2
Story
4
Bed
3.5
Bath
3
Car
Plan Collection
Plan Collection
Plan Collection
Plan#120-2176
Starting at$1255
3124
Sq Ft
2
Story
4
Bed
3.5
Bath
2
Car
View All

Other Plans By This Designer

Plan Collection
Plan Collection
Plan Collection
Plan#100-1364
Starting at$350
224
Sq Ft
1.5
Story
0
Bed
0
Bath
0
Car
Plan Collection
Plan Collection
Plan Collection
Plan#100-1311
Starting at$1800
2978
Sq Ft
2
Story
6
Bed
2.5
Bath
2
Car
Plan Collection
Plan Collection
Plan Collection
Plan#100-1054
Starting at$1800
1412
Sq Ft
1
Story
3
Bed
1.5
Bath
2
Car