3-Bedroom, 3781 Sq Ft Contemporary Plan with Main Floor Master

Contemporary home (ThePlanCollection: Plan #108-1941)

Images/Plans copyrighted by designer. Photos may reflect homeowner modifications.

About House Plan #108-1941

Sq Ft
3781
Sq Ft
Bedrooms
3
Bedrooms
Bathroom
2
Baths
Half Baths
1
Half Baths
Bedrooms
3
Cars
Bedrooms
2
Stories
Bedrooms
127' 11'
Width
Bedrooms
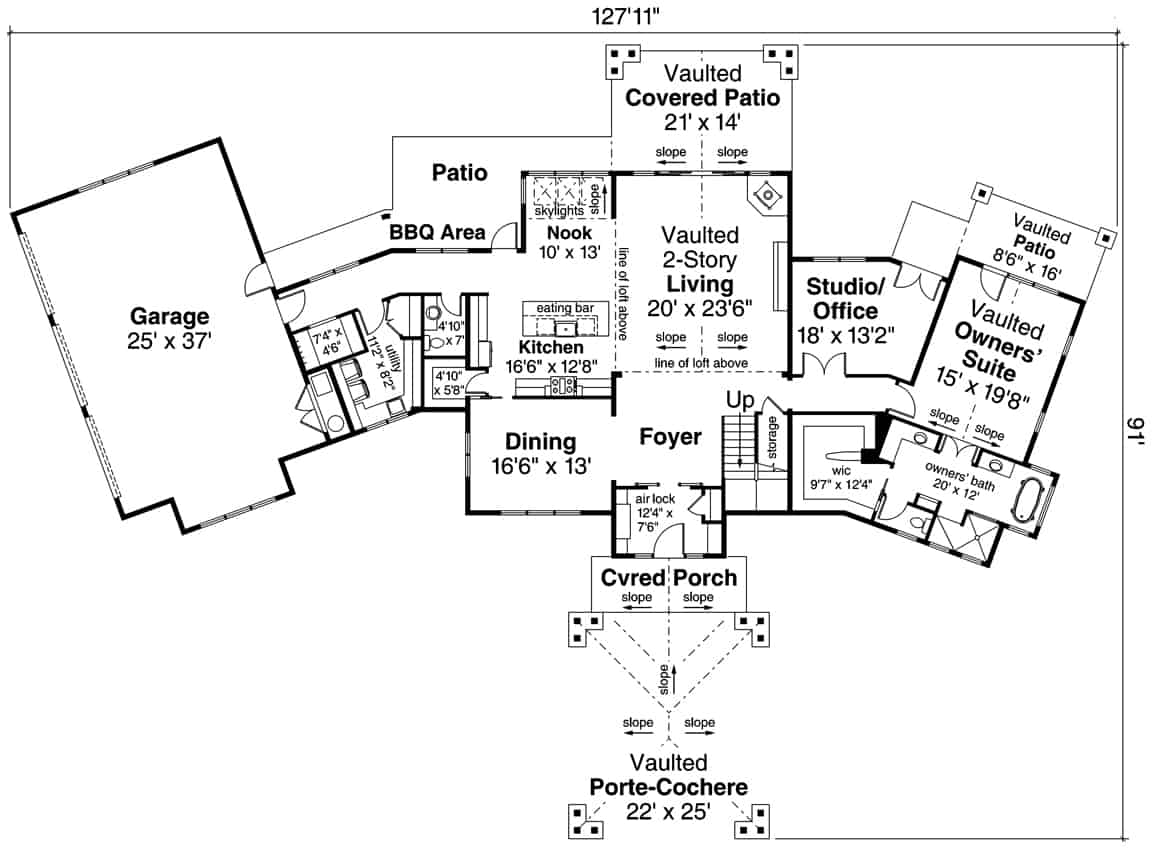
91
Depth
Starting at$2000.00What's included
STEP 1Bedrooms
STEP 2Bedrooms
STEP 3Bedrooms

Subtotal:$0
Plan Collection

How much will it cost to build?

Estimate your costs based on your location and materials.

Free Cost Instant Estimator

Floor Plans

Floor Plan Main Level
Floor Plan Main Level
Floor Plan Upper Level
Floor Plan Upper Level
Plan Collection

Can I modify this plan?

Yes! This plan can be customized—contact us for a free quote.

Additional Notes from Designer

PLEASE NOTE!! For this designer, The PDF that comes with the PRINT Packages (5 set+PDF and 8 set+PDF) is NOT Modifiable - it is for printing ONLY! PLEASE NOTE!! Optional Foundations (foundations that cost extra money) will take 5-10 business days to complete.

House Plan Description

The whimsical play of hip roof levels and combination of natural stone and wood gave this Contemporary-style house its great appeal. It's a house designed specifically for the comfort and convenience of your family. The home with luxurious Transitional attributes has 3781 square feet of living space and includes 3 bedrooms.

Home Details

Summary
Plan #:108-1941
Starting at:$2000.00
Floors:2
Bedrooms:3
Full Baths:2
Half Baths:1
Garage:
Square Footage
Heated Area:3781 Sq. Ft.
First Floor:2842 Sq. Ft.
Second Floor:939 Sq. Ft.
Unheated Area:
Garage:1060 Sq. Ft.
Dimensions
Width:127' 11''
Architectural Styles
Exterior Wall Material
Vinyl SidingRock/StoneWood Siding
Roofing Type
Hip
Roofing Material
Asphalt Shingles
Roof Pitch
4/12
Ceiling Height
9 Foot Ceiling
Special Feature
FireplaceDining RoomHome OfficeFamily RoomGame RoomMain Level LaundrySplit BathroomVaulted CeilingsBalconyOpen Floor Plan
Garage Type
Attached GarageSide Entry
Fireplaces
One Fireplace
Exterior Wall Framing
2x6
Building Lot Type
Corner Lot
Kitchen Features
Kitchen IslandNook/Breakfast AreaWalk-in PantryPeninsula/Eating BarEat-In Kitchen
Porches and Exterior Features
Covered Front PorchCovered Rear Patio
Master Suite Features
Main Floor MasterMaster BathroomWalk In ClosetPrivate DeckSplit Master Bedroom

What’s Included

Most plan sets include the following:

icon text-secondary-400 included Artist’s rendering of the home,

icon text-secondary-400 included Front/Rear/Left and Right Elevations,

icon text-secondary-400 included Main floor plan, Second or Basement floor plans (if applicable),

icon text-secondary-400 included Foundation plan and detail,

icon text-secondary-400 included Floor framing plan,

icon text-secondary-400 included Roof framing plan, supporting details and

icon text-secondary-400 included Electric layout.

What’s Not Included

These items are  NOT included:

icon text-secondary-400 includedArchitectural or Engineering Stamp - handled locally if required.

icon text-secondary-400 includedSite Plan - handled locally when required.

icon text-secondary-400 includedMechanical Drawings (location of heating and air equipment and ductwork) - your subcontractors handle this.

icon text-secondary-400 includedPlumbing Drawings (drawings showing the actual plumbing pipe sizes and locations) - your subcontractors handle this.

icon text-secondary-400 includedEnergy calculations - handled locally when required.

Related House Plans

Plan Collection
Plan Collection
Plan Collection
Plan#161-1076
Starting at$3400
4531
Sq Ft
2
Story
3
Bed
2.5
Bath
4
Car
Plan Collection
Plan Collection
Plan Collection
Plan#153-1808
Starting at$2050
3374
Sq Ft
2
Story
3
Bed
2.5
Bath
3
Car
Plan Collection
Plan Collection
Plan Collection
Plan#117-1117
Starting at$1345
2984
Sq Ft
2
Story
3
Bed
2.5
Bath
3
Car
View All

Other Plans By This Designer

Plan Collection
Plan Collection
Plan Collection
Plan#108-1923
Starting at$1150
2928
Sq Ft
1
Story
4
Bed
3
Bath
2
Car
Plan Collection
Plan Collection
Plan Collection
Plan#108-1538
Starting at$725
1216
Sq Ft
2
Story
2
Bed
2
Bath
0
Car
Plan Collection
Plan Collection
Plan Collection
Plan#108-2031
Starting at$450
1808
Sq Ft
2
Story
2
Bed
1
Bath
2
Car