4-Bedroom, 2880 Sq Ft Cottage Plan with Vaulted Ceilings

Cottage home (ThePlanCollection: Plan #198-1140)

Images/Plans copyrighted by designer. Photos may reflect homeowner modifications.

About House Plan #198-1140

Sq Ft
2880
Sq Ft
Bedrooms
4
Bedrooms
Bathroom
3
Baths
Half Baths
1
Half Baths
Bedrooms
2
Cars
Bedrooms
1.5
Stories
Bedrooms
80' 10'
Width
Bedrooms
5
Depth
Starting at$1245.00What's included
STEP 1Bedrooms
STEP 2Bedrooms
STEP 3Bedrooms

Subtotal:$0
Plan Collection

How much will it cost to build?

Estimate your costs based on your location and materials.

Free Cost Instant Estimator

Floor Plans

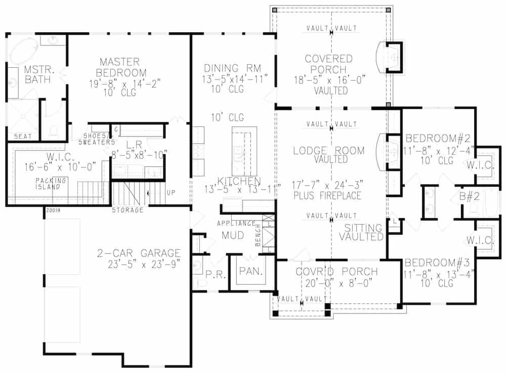
Floor Plan Main Level
Floor Plan Main Level
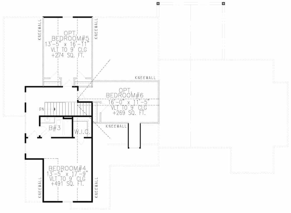
Floor Plan Upper Level
Floor Plan Upper Level
Plan Collection

Can I modify this plan?

Yes! This plan can be customized—contact us for a free quote.

Additional Notes from Designer

NO Material lists.

House Plan Description

Designed with exquisite craftsmanship, refinement, and sophistication, this Contemporary Cottage style home could be just what you're looking for! The majestic covered front entry, multiple forward-facing gables, and multi-pane windows give the home an interesting character. The remarkable 1.5-story floor plan has 2880 square feet of fully conditioned living space and includes 4 bedrooms. It also has an upper level with optional space that can be used by the owner for two additional bedrooms or as future expansion as desired. 

Home Details

Summary
Plan #:198-1140
Starting at:$1245.00
Floors:1.5
Bedrooms:4
Full Baths:3
Half Baths:1
Garage:
Square Footage
Heated Area:2880 Sq. Ft.
First Floor:2389 Sq. Ft.
Second Floor:491 Sq. Ft.
Unheated Area:
Second Floor:543 Sq. Ft.
Garage:595 Sq. Ft.
Dimensions
Width:80' 10''
Architectural Styles
Exterior Wall Material
Vinyl SidingRock/StoneWood Siding
Roofing Type
GableHipGable/Shed Dormer
Roofing Material
Asphalt ShinglesMetal
Ceiling Height
10 Foot Ceiling9 Foot Ceiling
Special Feature
FireplaceDining RoomMud RoomFamily RoomMain Level LaundrySplit BathroomStorageVaulted CeilingsOpen Floor PlanL-Shaped
Garage Type
Attached GarageSide Entry
Fireplaces
Two Fireplaces
Building Lot Type
Corner Lot
Kitchen Features
Kitchen IslandWalk-in PantryPeninsula/Eating Bar
Porches and Exterior Features
Covered Front PorchCovered Rear Porch
Master Suite Features
Main Floor MasterMaster BathroomWalk In ClosetSplit Master Bedroom

What’s Included

Most plan sets include the following:

icon text-secondary-400 includedExterior elevations

icon text-secondary-400 includedFoundation plan

icon text-secondary-400 includedDetailed floor plans

icon text-secondary-400 includedInterior details

icon text-secondary-400 includedRoof plan

icon text-secondary-400 includedCross-section details

icon text-secondary-400 includedElectrical layout

What’s Not Included

These items are  NOT included:

icon text-secondary-400 includedArchitectural or Engineering Stamp - handled locally if required.

icon text-secondary-400 includedSite Plan - handled locally when required.

icon text-secondary-400 includedMechanical Drawings (location of heating and air equipment and ductwork) - your subcontractors handle this.

icon text-secondary-400 includedPlumbing Drawings (drawings showing the actual plumbing pipe sizes and locations) - your subcontractors handle this.

icon text-secondary-400 includedEnergy calculations - handled locally when required.

Related House Plans

Plan Collection
Plan Collection
Plan Collection
Plan#142-1185
Starting at$1395
2742
Sq Ft
1.5
Story
4
Bed
3.5
Bath
2
Car
Plan Collection
Plan Collection
Plan Collection
Plan#161-1001
Starting at$2200
3339
Sq Ft
1.5
Story
4
Bed
3.5
Bath
3
Car
Plan Collection
Plan Collection
Plan Collection
Plan#153-1990
Starting at$1850
3084
Sq Ft
1.5
Story
4
Bed
3.5
Bath
2
Car
View All

Other Plans By This Designer

Plan Collection
Plan Collection
Plan Collection
Plan#198-1053
Starting at$2195
2498
Sq Ft
1.5
Story
3
Bed
3
Bath
3
Car
Plan Collection
Plan Collection
Plan Collection
Plan#198-1054
Starting at$2630
4376
Sq Ft
2
Story
4
Bed
4.5
Bath
3
Car
Plan Collection
Plan Collection
Plan Collection
Plan#198-1060
Starting at$1985
3970
Sq Ft
2
Story
5
Bed
4.5
Bath
2
Car